EasyManua.ls Logo

Broan QTR140 - Installation Planning; Typical Installations; Installation Location

Broan QTR140
8 pages
Print Icon
To Next Page IconTo Next Page
To Next Page IconTo Next Page
To Previous Page IconTo Previous Page
To Previous Page IconTo Previous Page
Loading...
Page 2
MODEL QTR140
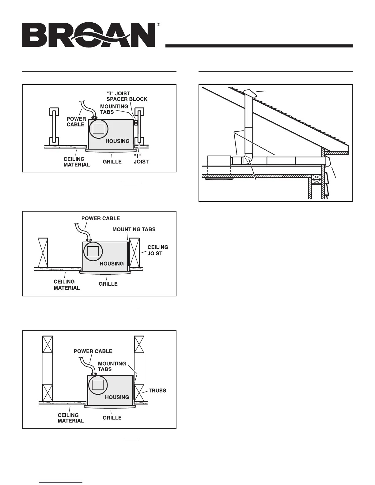
TYPICAL INSTALLATIONS
Housing mounted to I-joists.
Use I-joist spacer block (provided).
Housing mounted to joists.
Housing mounted to truss.
PLAN THE INSTALLATION
ROOF CAP *
6-IN. OR 4-IN.
ROUND
ELBOW *
6-IN. OR 4-IN.
ROUND
DUCT *
WALL
CAP *
* Purchase
separately
The unit will operate most quietly and efciently when located
where the shortest possible duct run and minimum number of
elbows will be needed.
Use a roof cap or wall cap that has a built-in damper to reduce
backdrafts.
Plan to supply the unit with proper line voltage and appropriate
power cable.

Related product manuals