EasyManua.ls Logo

Bronpi hydro series - Page 32

Bronpi hydro series
Print Icon
To Next Page IconTo Next Page
To Next Page IconTo Next Page
To Previous Page IconTo Previous Page
To Previous Page IconTo Previous Page
Loading...
31
1) The document J requires the installer to provide adequate ventilation for combustion if room air is being used for combustion and for
heat dissipation. So the room should always be adequately ventilated unless you wish to specify additional requirements. It would be possible
to specify “in accordance with document J sections 1.” In the Bronpi manual if you wanted to make sure that an installer maintains sufficient
ventilation for the boilers.
So particular to the Bronpi boilers we think the manufacturer’s recommendations should include the following:
2) If the flue is to pass straight through the wall then it must run horizontally and connect with a double skin 90* Tee on the outside. This
horizontal section must not exceed 500mm in length. Do not run the first length of flue at 45* through the wall. Alternatively, the first run may
run from a 90* Tee vertically to a maximum height of 2m before connecting to a double skin insulated flue (but within 450mm of the ceiling)
or exiting the building on a 45* through the wall after rising above the boiler to a height which will allow draught stabilisers and inspection
hatches to be mounted. Any bends should have an analyser port so that an installer can put a gas analyser probe to check flue gases.
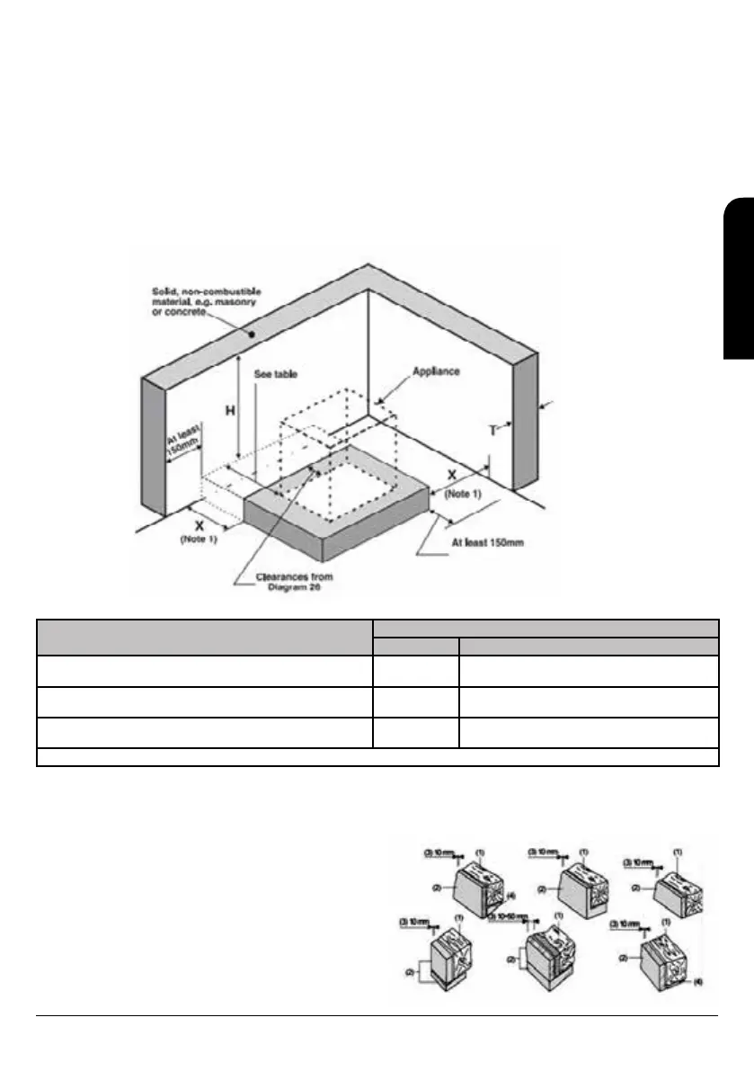
3) Distance to non combustible materials.
The diagram below illustrates that distances to non combustible materials can be reduced to a minimum of 150mm. However, the practical
access required to service and maintain the boilers is not respected in that case so minimum access distances for service to rear and side
should be specified by Bronpi for the practical maintenance of the boilers.
Location of hearth or appliance
Solid, non-combustible material
Thickness (T) Height (H)
Where the hearth abuts a wall and the appliance is not more than
50 mm from the wall
200 mm
A least 30 mm above the appliance and 1.2 m
above the hearth
Where the hearth abuts a wall and the appliance is more than 50
mm but not more than 300 mm from the wall
75 mm
A least 300 mm above the appliance and 1.2 above
the hearth
Where the hearth does not abut a wall and is no more than 150 mm
from the wall (See Note 1)
75 mm A least 1.2 m above the hearth
Note: 1. There is no requirement for protection of the wall where X is more than 150 mm.
Will access from a single side be sufficient for most boilers? Indeed which side, this may vary from models to model.
5.2 BEAMS PROTECTION
In model Alpes Hydro, due to the amount of heat produced by the
device, you have to pay special attention to protect nearby wooden
beams. When you design your fireplace or coating both the proximity
of the beams to the exterior surfaces of the fire, and the heat emitted
from the glass door need to be taken into account. The exterior
faces of combustible beams must not be subjected to temperatures
exceeding 65ºC.
Drawing D9 shows some examples of solution.
1. Beam:
2. Refractory material isolation;
3. Pothole;
4. Metallic protection
D9
INSTALLATION, OPERATING AND SERVICING INSTRUCTIONS HYDRO SERIES RADIOFREQUENCY
EN

Table of Contents

Related product manuals