EasyManua.ls Logo

Brother HL-5040 - Landscape

Brother HL-5040
450 pages
To Next Page IconTo Next Page
To Next Page IconTo Next Page
To Previous Page IconTo Previous Page
To Previous Page IconTo Previous Page
Loading...
2006/05/31
CHAPTER 2 "PCL" - 27
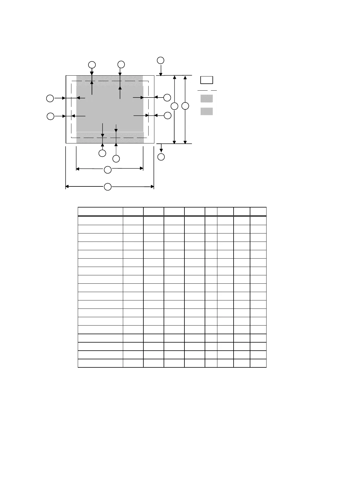
4.2.7. Landscape page dimensions
(DEFAULT VALUES)
A
B
C
D
E
F
G
H
F
G
H
E
G
G
Physical page
Printable area
Logical page
Default HP-GL/2 picture frame
B
Physical page length
D
Maximum logical page length
F
Distance from edge of physical
page to edge of logical page
PAPER SIZE A B C D E F G H
LETTER 3300 2550 3180 2550 60 0 50 150
LEGAL 4200 2550 4080 2550 60 0 50 150
EXECUTIVE 3150 2175 3030 2175 60 0 50 150
A4 3507 2480 3389 2480 59 0 50 150
B5 2952 2078 2834 2078 59 0 50 150
JIS B5 3030 2148 2910 2148 60 0 50 150
B6 2078 1476 1960 1476 59 0 50 150
A5 2480 1754 2362 1754 59 0 50 150
A6 1754 1240 1636 1240 59 0 50 150
A4 long 4783 2480 4665 2480 59 0 50 150
COM-10 2850 1237 2730 1237 60 0 50 150
MONARCH 2250 1162 2130 1162 60 0 50 150
C5 2704 1913 2586 1913 59 0 50 150
DL 2598 1299 2480 1299 59 0 50 150
A3 4960 3507 4842 3507 59 0 50 150
13"X19" 5700 3900 5580 3900 60 0 50 150
JIS B4 4298 3035 4180 3035 59 0 50 150
Ledger 5100 3300 4980 3300 60 0 50 150
All measurements are in 1/300" units

Table of Contents

Other manuals for Brother HL-5040

Related product manuals