EasyManua.ls Logo

Brunswick Contender Apollo - Page 16

Brunswick Contender Apollo
16 pages
Print Icon
To Previous Page IconTo Previous Page
To Previous Page IconTo Previous Page
Loading...
PAGE 16 BRUNSWICK INSTALLATION MANUAL
APOLLO
APRON ASSEMBLY (CONTINUED)
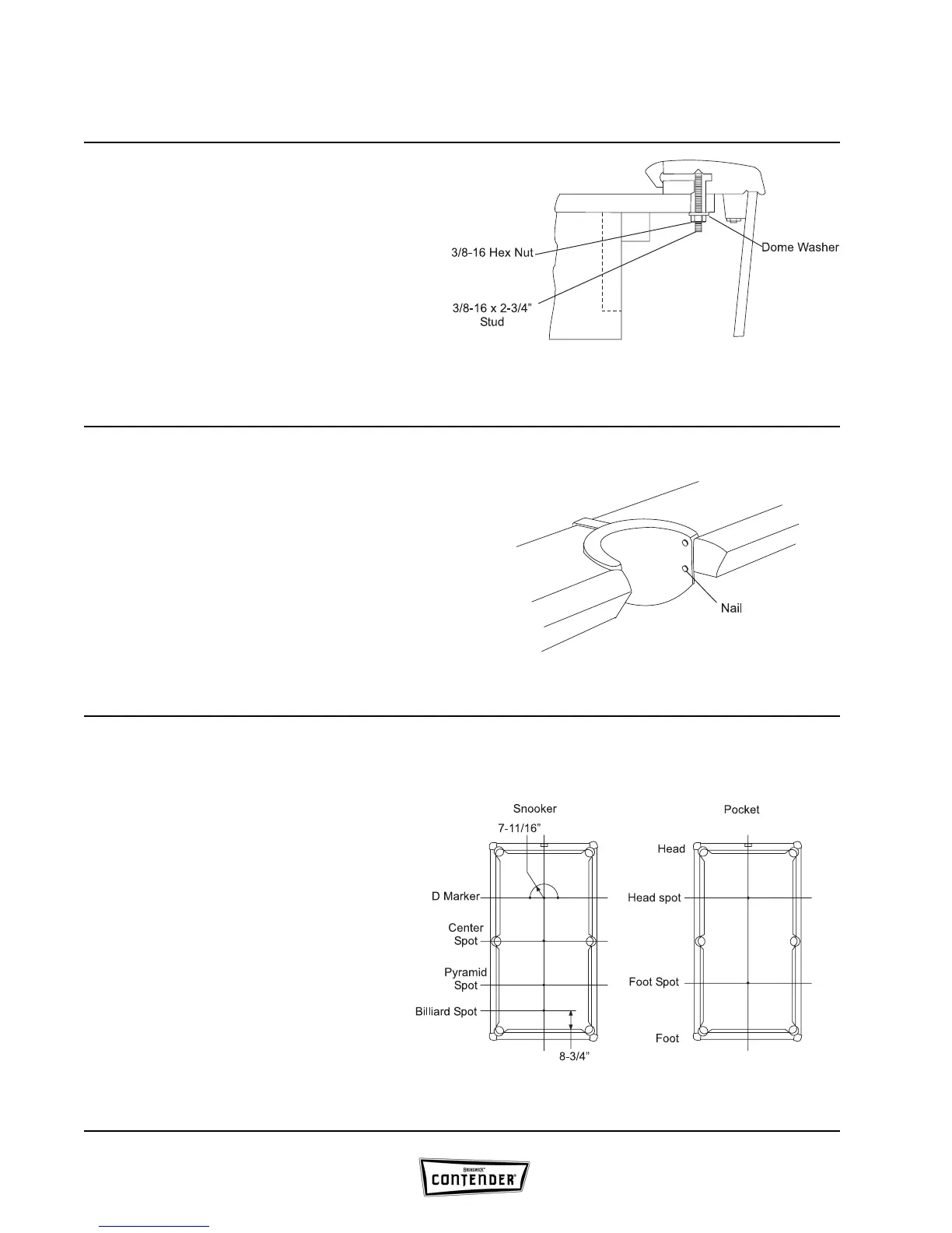
FIGURE THREE
Step #6: Thread the 3/8-16 hex nut and dome washer
onto the machine stud (three places) at the ends of the
table and tighten securely.
Step #7: Making sure that the side rails are in a straight
line as sighted down the length of the table (cushion
side), fasten the side rails securely with remaining nuts
and dome washers.
FIGURE THREE
FIGURE FOUR
Step #8: Position the side and corner pockets in their
respective locations. Fit and trim pockets as necessary.
Attach with four nails per pocket.
FIGURE FOUR
FIGURE FIVE
Step #9: Thoroughly brush the area on which the bed
spots are to be applied. Position the bed spot and firmly
roll a ball over the spot to achieve good adhesion.
NOTE:
Bed spots are self adhesive.
FIGURE FIVE

Related product manuals