EasyManua.ls Logo

Brunswick Edinburgh - Slate Assembly and Leveling; Slate Placement and Leveling Procedures

Brunswick Edinburgh
15 pages
Print Icon
To Next Page IconTo Next Page
To Next Page IconTo Next Page
To Previous Page IconTo Previous Page
To Previous Page IconTo Previous Page
Loading...
BRUNSWICK INSTALLATION MANUAL PAGE 7
EDINBURGH
SLATE ASSEMBLY AND LEVELING
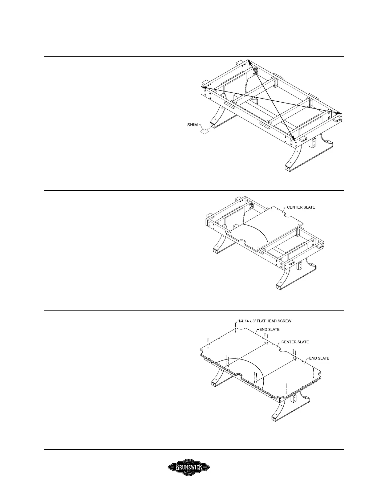
FIGURE ONE
Step #1: Place a good level on top of the baseframe and determine
the highest corner. Level the table by positioning shims under the
other three legs until the table is level. Be sure that all four legs
have positive bearing against the oor.
NOTE: Make top surfaces absolutely ush. Add or
remove wood if necessary to accomplish this.
FIGURE ONE
FIGURE TWO
Step #2: With baseframe level and placed in its permanent loca-
tion, position the center slate section evenly between the two cross
supports as shown, with an equal amount of overhang at each side
of the base frame.
FIGURE TWO
FIGURE THREE
Step #3: Position the two end slate sections on the base frame as
shown. Be sure that the penciled arc forms a radius as shown.
Step #4: Recheck to be sure the slate has an equal amount of
overhang around the base frame.
Step #4: Using the 12 countersink holes in the slate as a tem-
plate, pilot drill 5/32” diameter holes into the mounting cleats.
Step #5: Securely fasten the end slate sections at both ends of the
table with 1/4 x 1-3/4” at head screws for UNFRAMED slate or
#14 x 3” at head screws for FRAMED slate.
FIGURE THREE

Related product manuals