EasyManua.ls Logo

Bryant 311AAV - Upflow Installation; Downflow Installation

Bryant 311AAV
53 pages
Print Icon
To Next Page IconTo Next Page
To Next Page IconTo Next Page
To Previous Page IconTo Previous Page
To Previous Page IconTo Previous Page
Loading...
The Known Air Infiltration Rate Method shall be used, if the
infiltration rate is known to be:
1. Less than 0.40 ACH and
2. Equal to or greater than 0.10 ACH
Infiltration rates greater than 0.60 ACH shall not be used. The
minimum required volume of the space varies with the number of
ACH and shall be determined per Table 3 or Equations 1 and 2.
Determine the minimum required volume for each appliance in the
space and add the volumes together to get the total minimum
required volume for the space.
Table 3-Minimum Space Volumes were determined by using the
following equations from the National Fuel Gas Code ANSI
Z223.1-2002/NFPA 54-2002,8.3.2.2:
1. For other than fan-assisted appliances, such as a draft
hood-equipped water heater:
2. For fan-assisted appliances such as this furnace:
If:
I
other
= combined input of all other than fan-assisted appli-
ances in Btu/hr
I
fan
= combined input of all fan-assisted appliances in Btu/hr
ACH = air changes per hour (ACH shall not exceed 0.60.)
The following requirements apply to the Standard Method and to
the Known Air Infiltration Rate Method.
1. Adjoining rooms can be considered part of a space if:
a. There are no closable doors between rooms.
b. Combining spaces on same floor level. Each opening shall
have free area of at least 1 in.
2
/1,000 Btuh (2,000 mm
2
/kW)
of the total input rating of all gas appliances in the space,
but not less than 100 in.
2
(0.06 m
2
). One opening shall
commence within 12 (300 mm) of the ceiling and the
second opening shall commence within 12 (300 mm) of
the floor. The minimum dimension of air openings shall be
at least 3 in. (80 mm). (See Fig. 8.)
c. Combining space on different floor levels. The volumes of
spaces on different floor levels shall be considered as
communicating spaces if connected by one or more perma-
nent openings in doors or floors having free area of at least
2 in.
2
/1,000 Btuh (4,400 mm
2
/kW) of total input rating of
all gas appliances.
2. An attic or crawlspace may be considered a space that freely
communicates with the outdoors provided there are adequate
permanent ventilation openings directly to outdoors having
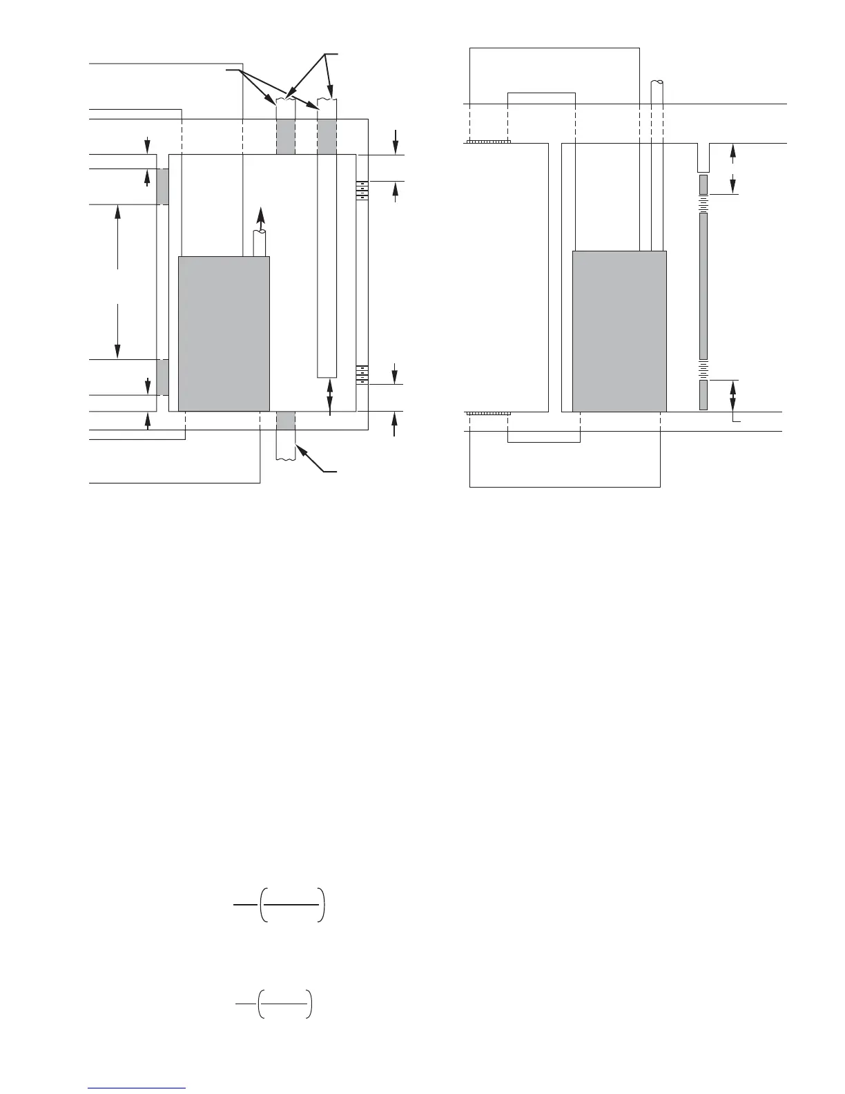
Fig. 7—Air for Combustion, Ventilation, and
Dilution for Outdoors
A03174
1 SQ IN.
PER
4000
BTUH*
DUCTS
TO
OUTDOORS
1 SQ IN.
PER 4000
BTUH*
CIRCULATING
AIR DUCTS
VENT
THROUGH
ROOF
D
B
A
C
E
1 SQ IN.
PER 4000
BTUH*
DUCT
TO
OUTDOORS
CIRCULATING AIR DUCTS
1 SQ IN.
PER 2000
BTUH*
1 SQ IN.
PER 2000
BTUH*
DUCTS
TO
OUTDOORS
12 MAX
12 MAX
12 MAX
Use any of the following
combinations of openings:
A & B C & D D & E F & G
NOTE:
*Minimum dimensions of 3 in.
12
MAX
12
MAX
OUTDOORS
1 SQ IN.
PER
4000
BTUH*
F
G
CLEARANCE IN FRONT
OF COMBUSTION AIR
OPENINGS SHALL BE
AT LEAST 3 IN.
A04002
Volume
Other
=
21ft
3
ACH
I
other
1000 Btu/hr
A04003
Volume
Fan
=
15ft
3
ACH
I
fan
1000 Btu/hr
Fig. 8—Air for Combustion, Ventilation, and
Dilution from Indoors
A03175
CIRCULATING AIR
DUCTS
6" MIN
(FRONT)
CIRCULATING AIR DUCTS
VENT THROUGH ROOF
1 SQ IN.
PER 1000
BTUH* IN DOOR
OR WALL
12" MAX
1 SQ IN.
PER 1000
BTUH* IN DOOR
OR WALL
12" MAX
* Minimum opening size is 100 sq in. with
minimum dimensions of 3 in.
Minimum of 3 in. . when type-B1 vent is used.
UNCONFINED
SPACE
INTERIOR
HEATED
SPACE
CLEARANCE IN FRONT OF COMBUSTION AIR
OPENINGS SHALL BE AT LEAST 3 IN.
9

Table of Contents

Other manuals for Bryant 311AAV

Related product manuals