EasyManua.ls Logo

Bryant 311AAV - Page 16

Bryant 311AAV
53 pages
Print Icon
To Next Page IconTo Next Page
To Next Page IconTo Next Page
To Previous Page IconTo Previous Page
To Previous Page IconTo Previous Page
Loading...
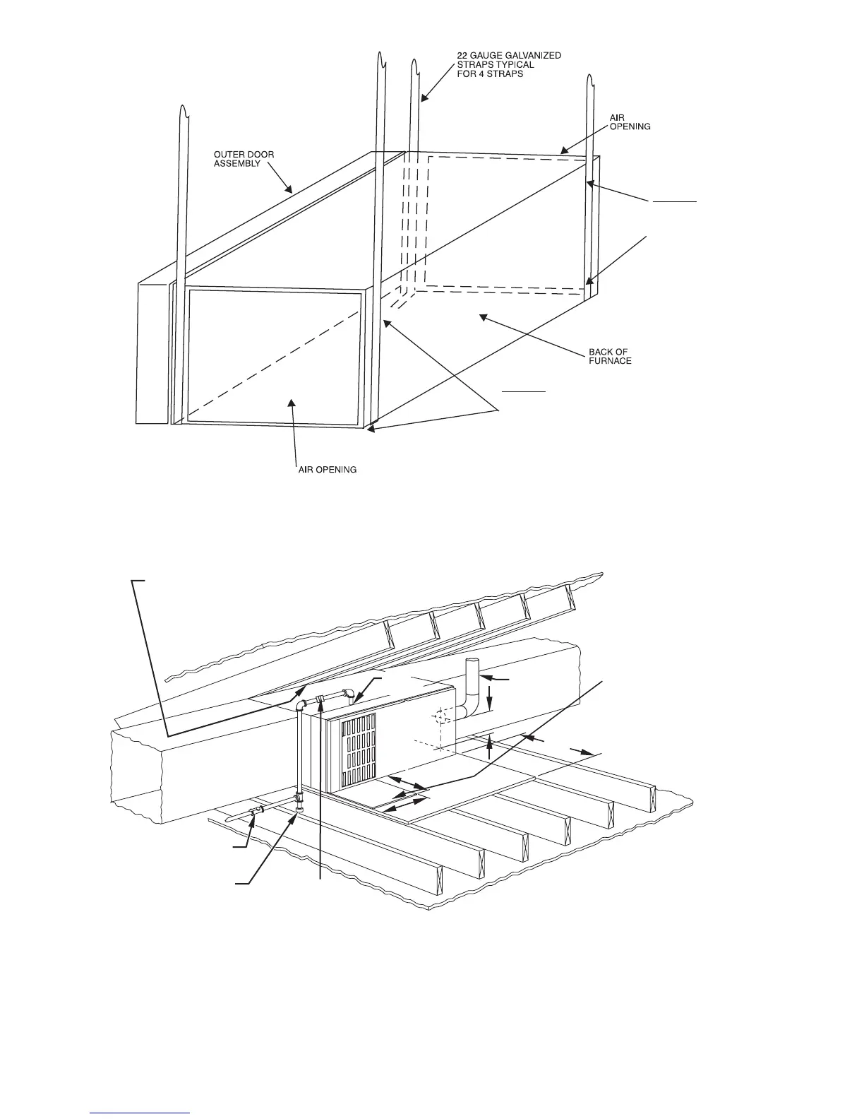
Fig. 16—Horizontal Suspension with Straps
A03176
METHOD 2
USE (4) #8 x 3/4 SHEET
METAL SCREWS FOR EACH
STRAP. THE STRAPS
SHOULD BE VERTICAL
AGAINST THE FURNACE
SIDES AND NOT PULL AWAY
FROM THE FURNACE
SIDES.
METHOD 1
FOLD ALL STRAPS UNDER
FURNACE AND SECURE WTH
(4) #8 x 3/4 SHEET METAL SCREWS
(2 SCREWS IN SIDE AND 2 SCREWS
IN BOTTOM).
Fig. 17—Typical Attic Installation
A03177
30-IN. MIN
WORK AREA
6MIN*
TYPE-B
VENT
17
3
/4
22
SHEET
METAL
SEDIMENT
TRAP
EQUIPMENT MANUAL
SHUT-OFF GAS VALVE
LINE CONTACT ONLY PERMISSIBLE BETWEEN
LINES FORMED BY INTERSECTIONS OF
THE TOP AND TWO SIDES OF THE FURNACE
JACKET AND BUILDING JOISTS,
STUDS, OR FRAMING.
GAS
ENTRY
17
3
/4
OVER ALL
4
3
/4
UNDER DOOR
1 UNDER FURNACE
EXTEND OUT 12OUT
FROM FACE OF DOOR
* WHEN USED WITH
SINGLE WALL VENT
CONNECTIONS
UNION
15

Table of Contents

Other manuals for Bryant 311AAV

Related product manuals