EasyManua.ls Logo

Bryant 579F - Typical Wiring Schematics

Bryant 579F
298 pages
Print Icon
To Next Page IconTo Next Page
To Next Page IconTo Next Page
To Previous Page IconTo Previous Page
To Previous Page IconTo Previous Page
Loading...
224
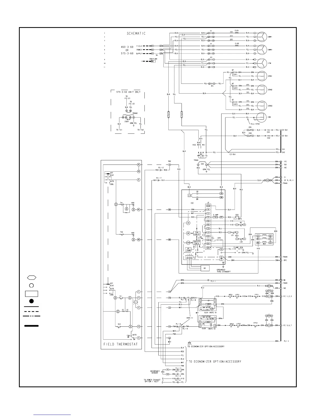
TYPICAL WIRING SCHEMATICS — 580F
Typical Wiring Schematic — 580F180, 460-3-60 Shown
LEGEND
AHA Adjustable Heat Anticipator
C—Contactor, Compressor
CAP Capacitor
CB Circuit Breaker
CC Cooling Compensator
CH Crankcase Heater
CLO Compressor Lockout
COMP Compressor Motor
CR Control Relay
DU Dummy Terminal
EQUIP Equipment
FPT Freeze Protection
Thermostat
FU Fuse
GND Ground
HPS High-Pressure Switch
HS Hall Effect Sensor
HV High Voltage
I—Ignitor
IDM Induced-Draft Motor
IFC Indoor-Fan Contactor
IFCB Indoor-Fan Circuit Breaker
IFM Indoor-Fan Motor
IGC Integrated Gas Unit
Controller
L—Light
LOR Lockout Relay
LPS Low-Pressure Switch
LS Limit Switch
MGV Main Gas Valve
OFC Outdoor-Fan Contactor
OFM Outdoor-Fan Motor
PL Plug Assembly
PRI Primary
QT Quadruple Terminal
R—Relay
RS Rollout Switch
SEN Sensor
SW Switch
TB Terminal Block
TC Thermostat, Cooling
TH Thermostat, Heating
TRAN Transformer
Terminal (Marked)
Terminal (Unmarked)
Terminal Block
Splice
Factory Wiring
Field Wiring
Option/Accessory Wiring
To indicate common
potential only, not to
represent wiring.
a48-7461

Other manuals for Bryant 579F

Related product manuals