EasyManua.ls Logo

Bryant 800SB - Page 22

Bryant 800SB
46 pages
Print Icon
To Next Page IconTo Next Page
To Next Page IconTo Next Page
To Previous Page IconTo Previous Page
To Previous Page IconTo Previous Page
Loading...
800SB/801SB: Installation, Start–Up, Operating and Service and Maintenance Instructions
Manufacturer reserves the right to change, at any time, specifications and designs without notice and without obligations.
22
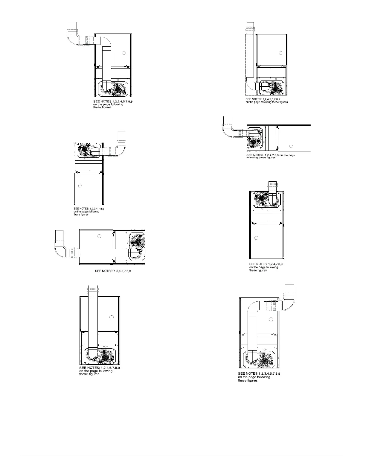
A03210
Fig. 31 – Downflow Application-Vent Elbow Up then Left
A03209
Fig. 32 – Upflow Application-Vent Elbow Right
A02068
Fig. 33 – Horizontal Right Application-Vent Elbow Left
A03211
Fig. 34 – Downflow Application-Vent Elbow Up
A03207
Fig. 35 – Downflow Application-Vent Elbow Left then Up
A03213
Fig. 36 – Horizontal Left Application-Vent Elbow Left
A03208
Fig. 37 – Upflow Application-Vent Elbow Up
A03212
Fig. 38 – Downflow Application-Vent Elbow Up then Right

Related product manuals