EasyManua.ls Logo

Bryant ASPAS1BBL015 - Section 8 - ELECTRICAL DATA

Bryant ASPAS1BBL015
48 pages
Print Icon
To Next Page IconTo Next Page
To Next Page IconTo Next Page
To Previous Page IconTo Previous Page
To Previous Page IconTo Previous Page
Loading...
2
6
4
1
1
4
4
RED
1
1
XX
33
33
22
22
11
2
6
44
11
33
2
22
5
5
7
6
TRAN
S
FER
S
WIT
C
H
CO
NNE
C
TI
ON
5
4
6
4
2
3
6
7
13
11
12
14
15
16
18
17
6
3
5
2
F
O
R PRE-PA
C
K TRAN
S
FE
R
194
S
WIT
C
H
CO
NNE
C
TI
O
N
S
(BLA
C
K
)
(BLA
C
K
)
N
1
A
162
ALTERNATE
TR1
1
7
8
(
BLUE
)
(
RED
)
224
B
0
4
56
14
T2
1
94
23
T1
1
7
8
14
0
0
0
13
RED
4
5
6
0
1
7
8
183
0
0
14
S
1
6
T1
T2
4
4
229
4
13
0
B
LA
CK
14
14
13
0
14
14
4
229
4
13
4
4
15
225
A
225
A
1
7
8
239
18
3
15
C
15
225
A
15
A
15
A
15
C
15E
E
S
TAR
T
239
N.
C.
15
C
15
S
1
5
4
S
1
6
225
A
4
15
E
0
23
85
4
5
6
194
15
C
239
15
E
0
13
5
6
85
13
15
15
S
1
5
S
1
6
229
T1
T2
1
7
6
S
1
6
S
1
5
E1 T
O
E2 240
.
E1 T
O
00
O
UTPUT
CO
NNE
C
TI
ON
120
/
240V. 1- PHA
SE
E2 T
O
0
0
85
85
C
L
OS
E
S
T T
O
BEARIN
G
BRU
S
H H
O
LDE
R
M
O
UNTIN
G
SC
RE
W
85
85
85
0
85
5
6
0
14
14
S
1
6
S
1
6
E1
S
1
6
S
1
6
S
1
6
E2
S
1
5
S
1
5
120
V.
BLUE
YELL
OW
O
RAN
GE
T
O
GO
VERN
OR
AC
TUAT
OR
BLA
CK
RED
BLUE
BLUE
BR
O
W
N
BLA
CK
BLUE
BLUE
BLUE
NB
V
O
LTA
G
E RE
G
ULAT
OR
F
F1
S
UPRE
SS
I
O
N A
SS
EMBL
Y
AUT
O/O
FF
/
MANUAL
S
WIT
CH
FU
S
E, INLINE 7.5 AM
P
FU
S
E 15 AMP
S
-
-
SA
S
W
1
-
-
VR
-
S
ET EXER
C
I
S
E
S
WIT
CH
TERMINAL
S
TRIP 7 P
OS.
TERMINAL
S
TRIP 2 P
OS.
TRN
S
FRMR, UTILITY
S
EN
S
IN
G
C
A
P
C
B
2
A
S
C
B
2
TR1
C
A
P
PRE-PA
C
K
C
IR
C
UIT B
O
AR
D
NEUTRAL BL
OCK
FAULT LI
G
H
T
LED
G
EN
D
GO
VERN
O
R
CO
NTR
O
LLE
R
C
IR
C
UIT BREAKE
R
EN
G
INE
CO
NNE
C
TI
ON
FIELD
BREAKER
ALTERNAT
O
R
S
TAT
OR
C
APA
C
IT
OR
-
-
-
-
GCU
NB
PCB
FL
-
-
-
-
T
S2
SA
T
S2
TR1
T
S3
S
W
2
T
S1
-
-
-
-
-
S
W
2
S
W
1
F1
VR
F
FL
P
CB
T
S1
E
C
C
B
1
GCU
A
S
BLUE
BLA
CK
BLA
CK
RED
BLUE
YELL
OW
14
BLA
CK
BLA
CK
5
6
0
0
5
6
1
5
0
1
5
0
14
14
BLUE
RED
1
5
0
24 Bryant
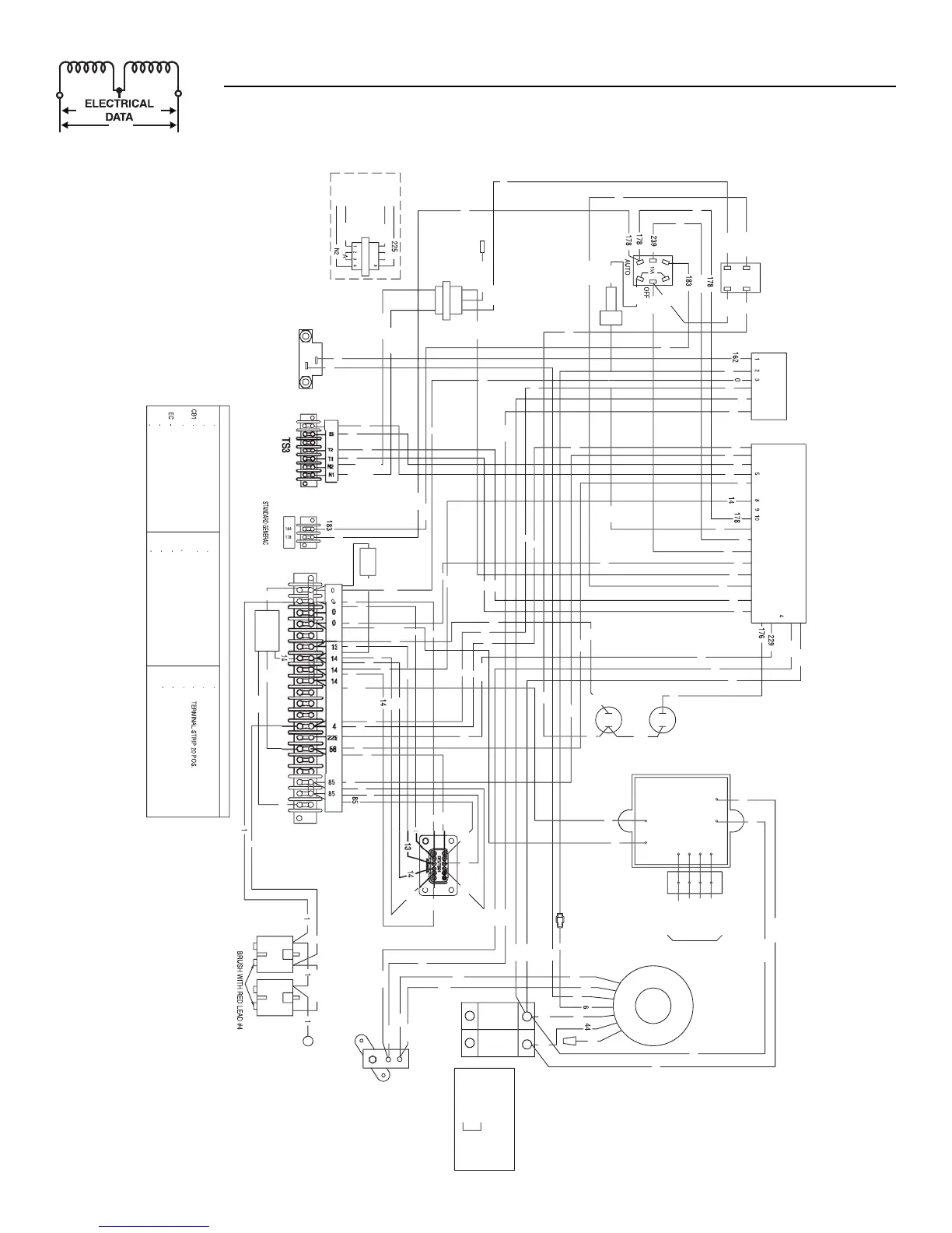
Section 8 - Electrical Data
Bryant Liquid-cooled 15 kW Generators
Wiring Diagram — Control Panel —Drawing No. 0F5243

Table of Contents

Related product manuals