EasyManua.ls Logo

Bryant DURAPAC 579F - Page 2

Bryant DURAPAC 579F
48 pages
Print Icon
To Next Page IconTo Next Page
To Next Page IconTo Next Page
To Previous Page IconTo Previous Page
To Previous Page IconTo Previous Page
Loading...
2
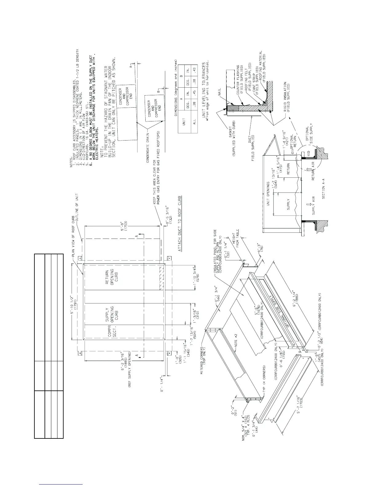
Fig. 1 — Roof Curb Details
PKG. NO. REF.
CURB
HEIGHT
DESCRIPTION
CRRFCURB010A00 1′− 2 (305) Standard Curb 14 High
CRRFCURB011A00 2-0 (610) Standard Curb for Units Requiring High Installation
CRRFCURB012A00 2-0 (610) Side Supply and Return Curb for High Installation

Related product manuals