EasyManua.ls Logo

BullFrog A7L - Page 45

BullFrog A7L
61 pages
Print Icon
To Next Page IconTo Next Page
To Next Page IconTo Next Page
To Previous Page IconTo Previous Page
To Previous Page IconTo Previous Page
Loading...
44
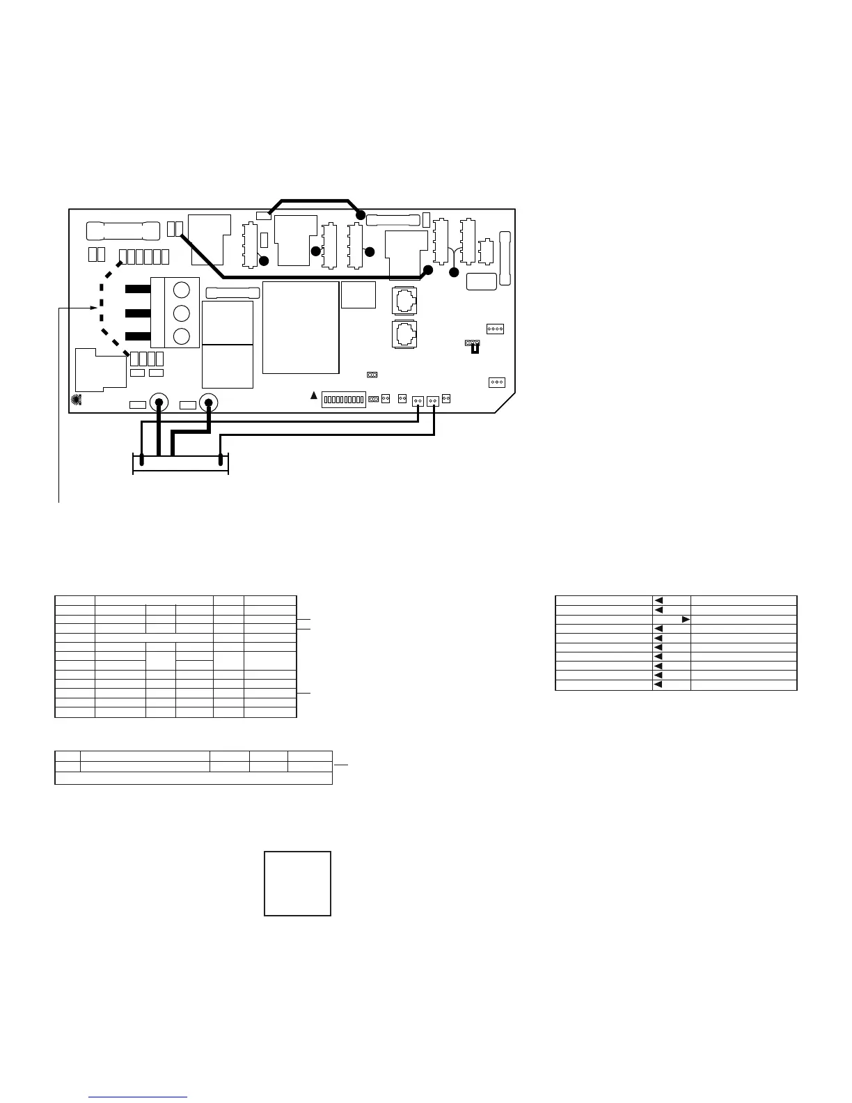
Hardware Setup/Wiring Diagram BFVS501 (60 Hz X Series Models)
HTR-2
TB1
HTR-1
J100
J101
4.0 kW HEATER
SENSOR A
SENSOR B
TORQUE RANGE
FOR HEATER
CONNECTIONS:
30 TO 35
IN. LBS.
Balboa
K3
K2
K4
RED AC
WHITE AC
BLK AC
F4 0.3A 250V
F7 20A 250V
F1 3A 250V
J32
J33
J66
J65
J61
J62
J34
J36
J23
J37
J74
J35
J11
J15
J16
J25
J63
J64
J73
J46
WHITE
BLACK
RED
L2
L1
N
J50
J47 J29
J20
J17/26
W1
W10
W4
W7
W3
W2
PUMP 1
A V
OZONE
SWITCHBANK A
ON
F5 30A
K6
K1
K9
T1
J43
J12
PERSISTENT
MEMORY
J6
J60
J22
1 32
J44
VACAUX FRLY
2-S RLY
TST
J13
J7 J8
J1
J2
K5
J18
LIGHT
CONTROL PANEL
TO J1
BFVS501 — PN 56717
01-20-2015
FOR SUPPLY CONNECTIONS,
USE CONDUCTORS SIZED ON THE
BASIS OF 60°C AMPACITY BUT
RATED MINIMUM OF 90°C.
A DISCONNECTING MEANS MUST BE INSTALLED WITHIN SIGHT FROM
THE EQUIPMENT AND AT LEAST 5 FEET (1.52 M) FROM THE
INSIDE WALLS OF THE POOL, SPA, OR HOT TUB.
CONNECT ONLY TO CIRCUITS PROTECTED BY A CLASS A GFCI.
USE EARTH GROUND CONNECTIONS AS INDICATED INSIDE THE SYSTEM ENCLOSURE
BASED ON EL2000 STICKER KIT TEMPLATE UPDATED 10-17-08
TORQUE RANGE FOR
MAIN TERMINAL BLOCK:
27-30 IN. LBS.
USE COPPER CONDUCTORS ONLY.
EMPLOYER UNIQUEMENT
DES CONDUCTEURS DE CUIVRE.
#6 AWG MIN. WIRE= 90°
A1
A2
A3
A4
A5
A6
A7
A8
A9
A10
ALL UNUSED SWITCHES SHOULD BE OFF
SWITCHBANK A OFF (DOWN)
TOTAL OUTPUT AMP DRAW NOT TO EXCEED MAX INPUT RATING OF SPA
*ALL DEVICES LABELED 240V WILL RUN AT 120V WHEN HEATER IS CONVERTED TO 120V
CIRC PUMP IS AN OPTIONAL DEVICE. SEE CIRC PUMP BEHAVIOR TABLE.
**OZONE AND CIRC PUMP MUST BE THE SAME VOLTAGE.
SWITCHBANK A ON (UP)
(APPROX. 1.0kW @ 120V)
LOCATION DEVICE VOLTS AMPS FROM TO
J23 2 SPD P1 240V* 12A W1 RED AC
J47
240V* W2 RED AC
J16/26 1 SPD P2 240V* 12A W7 RED AC
J50 AV 120V 2A W4 WHT AC
J29 OZONE** 240V* 1A W2 RED AC
J20 LIGHT 12V 12W
HTR HEATER 240V* 4.0kW HTR TERM HTR 1/2
CIRC PUMP BEHAVIOR
NO CIRC PUMP
CIRC ACTS LIKE PUMP 1 LOW
PUMP 1 SPEEDS
2-SPEED
1-SPEED
A5
OFF
ON
CIRC PUMP**
4A
CIRC PUMP
PUMP 2
JUMPER INSTALLED FOR 12OV HEATER CONVERSION. REMOVE FOR 240V HEATER.
120V TO 240V HEATER CONVERSION INSTRUCTIONS:
1, CONVERSION MUST BE PERFORMED BY A QUALIFIED, LICENSED ELECTRICIAN.
2, DISCONNECT FROM POWER AND REMOVE POWER CORD.
3, COMPLETELY REMOVE JUMPER WIRE BETWEEN J11 AND J32 AND DISCARD.
4, INSTALL 240V POWER CONDUCTORS TO MAIN TERMINAL BLOCK (TB1)
5, SET DIP SWITCH A10 TO OFF (DOWN)
TEST MODE OFF
STANDARD/ECON/SLEEP MODES
DIG OR LT DUPLEX PANEL
AUX FREEZE (MUST BE OFF)
SEE CIRC PUMP BEHAVIOR
60HZ
PUMP2/PUMP1/TEMP/LIGHT
DEGREES F
1 SPD P2 DISABLED
HIGH AMP MODE
TEST MODE ON
STANDARD MODE ONLY
MINI PANEL
AUX FREEZE (MUST BE OFF)
SEE CIRC PUMP BEHAVIOR
50HZ
PUMP1/LT/TEMP DOWN/TEMP UP
DEGREES C
1 SPD P2 ON J17/26 ENABLED
LOW AMP MODE
K8
Settings
Template 40981_C 02-17-10
56454_97_A 01-24-13
5
Manufactured under one or more of these patents. U.S. Patents: 5332944, 5361215, 5550753, 5559720, 5,883,459, 6253227, 6282370, 6590188, 6976052, 6965815, 7030343, 7,417,834 b2,
Canadian Patent: 2342614, Australian patent: 2373248 other patents both foreign and domestic applied for and pending. © Copyright 2009 Balboa Water Group.
Settings
Hardware Setup
A1
A2
A3*
A4
A5
A6
A7
A8
A9
A10
SWI TCHBANK S1 OFF SWI TCHBANK S1 ON
PART B
BFBP20GX – PN 56454
01- 24- 13
USE EART H GROUND CONNECTI ONS AS I NDI CAT ED I NSI DE T HE SYSTEM ENCL OSURE
TOTAL OUTPUT AMP DRAW NOT TO EXCEED MAX I NPUT RATI NG OF SPA
A DI SCONNECTI NG MEANS MUST BE I NST AL L ED WI THI N SI GHT FROM
THE EQUI PMENT AND AT LEAST 5 FEET ( 1. 5 2 M) FROM THE
I NSI DE WAL L S OF THE POOL , SPA, OR HOT TUB.
CONNECT ONL Y TO CI RCUI T S PROTECT ED BY A CL ASS A GFCI .
FOR SUPPL Y CONNECT I ONS, USE CONDUCTORS SI ZED ON T HE BASI S OF
6 0 ° C AMPACI T Y BUT RATED MI NI MUM OF 9 0 ° C.
TORQUE RANGE F OR MAI N T ERMI NAL BL OCK ( TB1 ) :
27- 30 I N. LBS. ( 31. 1- 34. 5 kg cm)
USE COPPER CONDUCTORS ONL Y.
EMPL OYER UNI QUEMENT DES CONDUCTEURS DE CUI VRE.
#6 AWG MI N. WI RE = 90°
1 2- SPEED 1 - SPEED ° F
2 2- SPEED ° F
SETUP # CI RC PUMP PUMP 1 PUMP 2 TEMP SCALE
SYSTEM WI LL BE I N
SETUP # 2
UNLESS MARKED
DI F F ERENT L Y
BELOW
I NSTEAD OF
SETUP # 2,
THI S SYSTEM I S
CONF I GURED I N
SETUP # :
PUMP 1 L OW TI MEOUT I S 60 MI NUTES.
FOR 120 V SYSTEMS, USE SETUP 2 ONL Y.
PUMP 2 I S USED I N SETUP 1 ONLY
HEATER CAN BE 12 0 V I N SETUP 2 ONLY.
PUMP 1 CAN BE 12 0 V I N SETUP 2 ONLY.
LOCATI ON DEVI CE VOL TS MAX AMPS FROM TO
J9 2- SP PUMP 1 240V 12A MAX J46 J72- GROUP 2
J9 2- SP PUMP 1 120V 12A MAX J46 J72- GROUP 2
J14 1- SP PUMP 2 240V 12A MAX J18 J3- GROUP 2
PUMP 2 L I NE 1 CONNECT I ON J 1 9 J 5 5
J15 SPA LI GHT 10V 1A
J21 UNUSED 120V 2A MAX J20 J79- GROUP 4
J 3 2 OZ ONE
OZONE L I NE 1 CONNECT I ON J81 J59
J33 TV / AV 120V 3A J38 J45- GROUP 4
J44 HEATER 240V 4. 0 kW
J44 HEATER 120V 1. 0 kW
J 6 & J 7 CABI NET L ED 12 V 0. 1 A
TEST MODE OFF
DON’ T ADD 1 HS PUMP W/ HTR
DON’ T ADD 2 HS PUMPS W/ HTR
DON’ T ADD 4 HS PUMPS W/ HTR
SPECI AL AMPERAGE RUL E A
STORE SETTI NGS* *
NOT ASSI GNED
NOT ASSI GNED
NOT ASSI GNED
NOT ASSI GNED
TEST MODE ON
ADD 1 HS PUMP WI T H HEAT
ADD 2 HS PUMPS WI TH HEAT
ADD 4 HS PUMPS WI TH HEAT
SPECI AL AMPERAGE RUL E B
MEMORY RESET*
NOT ASSI GNED
NOT ASSI GNED
NOT ASSI GNED
NOT ASSI GNED
* * SWI TCH # 6 SHOULD BE SET TO OFF UPON FI NAL I NSTAL L ATI ON.
* SWI TCH # 3 SHOUL D BE SET T O OF F WHEN
SETUP 2 I S CONFI GURED AS 120 VAC.

Related product manuals