EasyManua.ls Logo

Bunn JDF-4S - JDF-4 S Wiring Diagram

Bunn JDF-4S
31 pages
Print Icon
To Next Page IconTo Next Page
To Next Page IconTo Next Page
To Previous Page IconTo Previous Page
To Previous Page IconTo Previous Page
Loading...
29
J6-1
J6-3
CONTROL
P
C
BOARD
J5-1
J5-4
J2-1
J2-6
GRN
WHI/ORN
STATION 1
DISPENSE
STATION 2
DISPENSE
STATION 1
DISPENSE
STATION 2
DISPENSE
YEL YEL
WHI/VIO
RECIR.
PUMP
BRN
WHI
BLK
J1-1
J1-5
WHI
J3-1
J3-2
WHI/BLK
ORN
WHI/VIO
WHI/ORN
VIO
RED
RED
WHI/RED
BLK
WHI RED/BLK
YEL
WHI/BLU
BLU
RED
MOTOR
CONDENSOR FAN
RED/BLKBLU/BLK
BLU/BLK
J7-1
J7-2
J9-1
J9-2
PUMPPUMP
FAN
t
t
WHI/BLK
GRY
BLK or ORN
WHI
CABINET
THERMISTOR
WATER BATH
THERMISTOR
WHI
BLK
WHI
BLK
44746.0000A 03/11 © 2011 BUNN-O-MATIC CORPORATION
BLU/BLK
1
BLK
BLK
BLK
WHI
GRN
1
K1
1
12
WHI/VIO
WHI/VIO
VIOVIO
VIO
WHI/ORNWHI/ORN
YELYEL
REDRED
REDRED
ORNORN
ORN
SOL SOL
J13-1
J13-6
WHI/ORN
STATION 3
DISPENSE
STATION 4
DISPENSE
STATION 3
DISPENSE
STATION 4
DISPENSE
YEL YEL
WHI/VIO
GRN
TAN
BLU
PNK
GRY
WHI/GRN
PUMPPUMP
1
12
TAN
WHI/VIO
PNKVIO
VIO
BLUWHI/ORN
GRYYEL
WHI/GRNRED
REDRED
GRNORN
ORN
SOL SOL
WATER INLET
VALVE
BRN WHI
SOL
WHI/VIO
BLK
TRANSFORMER
WHI
BLK
WHI
BLU
WHI/BLU
L
O
A
D
L
I
N
E
WHI
WHI/BLK
K1
120V
MODELS
N
A B
A B
A B
L1
A B
220-230V
MODELS
GRN/YEL
NL1GND
BRN
BLU
EMI
FILTER
120 VOLTS AC
or
220-230 VOLTS AC
2 WIRE
SINGLE PHASE
J15-1
J15-4
J12-1
J12-3
WHI/BLU
BLU
TRANSFORMER
BLU
WHI/BLU
L
O
A
D
L
I
N
E
COLD WATER
VALVE
WHI/VIO WHI
SOL
J11-1
J11-5
J6-1
J6-5
BLK
RED
BLU
YEL
ORN
BLK
RED
BLU
YEL
ORN
AUXILLARY
CONTROL BOARD
J1-1
DISPENSE
DISPENSE
STATIC
SHIELD
STATIC
SHIELD
COLD
WATER
SWITCH
DISPENSE
STATION
#4
J1-3
J5-1
J5-5
J4-1
J4-5
J3-1
J3-5
J2-1
J2-5
DISPENSE
STATIC
SHIELD
COLD
WATER
SWITCH
STOP/PLUS
LARGE
MEDIUM
SMALL
STATIC
SHIELD
PUSH BUTTON OPTION
STATIC
SHIELD
DISPENSE
STATION
#3
STOP/PLUS
LARGE
MEDIUM
SMALL
STATIC
SHIELD
DISPENSE
STATION
#2
STOP/PLUS
LARGE
MEDIUM
SMALL
STATIC
SHIELD
DISPENSE
STATION
#1
DISPENSE
STATION
#4
DISPENSE
STATION
#3
DISPENSE
STATION
#2
DISPENSE
STATION
#1
STOP/PLUS
LARGE
MEDIUM
SMALL
DISPENSE
STATIC
SHIELD
DISPENSE
STATIC
SHIELD
DISPENSE
STATIC
SHIELD
GRN or GRY
RED
BLK
BLK
REDBLK
1
STATION 2
DISPENSE
SWITCH
GRNBLK
STATION 1
DISPENSE
SWITCH
YEL
ORN
BLU
ORNBLK
8
STATION 4
DISPENSE
SWITCH
YELBLK
STATION 3
DISPENSE
SWITCH
BLKBLU
COLD WATER
DISPENSE
SWITCH
Models with Membrane Switches
Models with Mechanical Switches
START
RUN
COMPRESSOR ASSY
LIMIT
THERM.
COMPRESSOR
MOTOR
3
PTC
ASSY
4
56
2
1
N
GRN/YEL-16
RED/BLK BLK
REFRIGERATION
SWITCH
BLK
DISPENSE
LOCKOUT
SWITCH
BLK
BLK
BLK
DISPENSE
LOCKOUT
SWITCH
PROGRAM
SWITCH
Chassis
Ground
J8-1
J8-2
BRN
WHI
RED
RED
BLK
BLK
RED
BLK
RED
RED
BLK
BLK
GRNGRN
WHIWHI
BRNBRN
BRN
BRN
Chassis
Ground
Door
Ground
Regulator
Board
J3-1
J2-1
J1-1
YEL
YEL
YEL
_
+
_
+
_
+
_
+
Models with Lited Doors
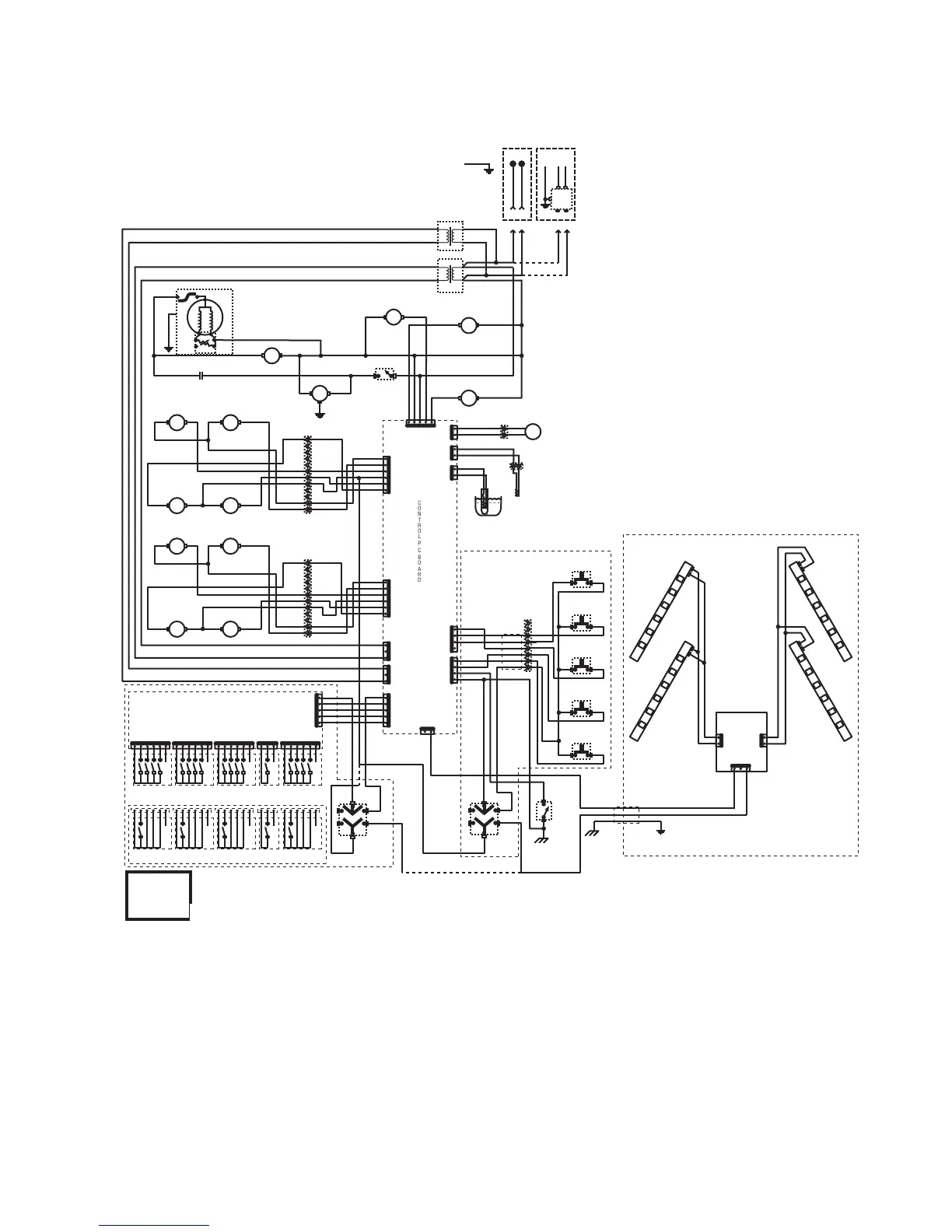
SCHEMATIC WIRING DIAGRAM JDF-4S
44744.2 062912
(Models with LED Lited Doors)

Other manuals for Bunn JDF-4S

Related product manuals