EasyManua.ls Logo

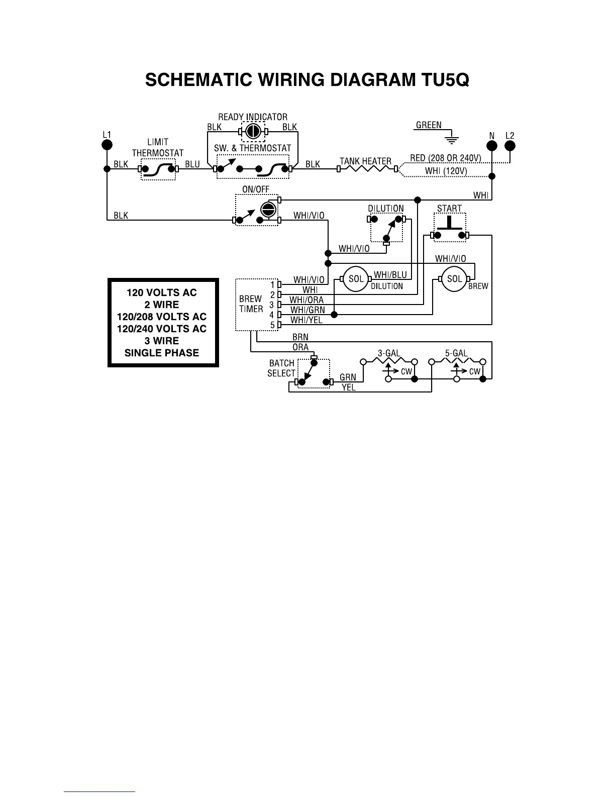
Bunn TU5Q - Wiring Diagram

Bunn TU5Q
23 pages
Print Icon
To Previous Page IconTo Previous Page
To Previous Page IconTo Previous Page
Loading...
Page 23
10777 041500

Other manuals for Bunn TU5Q

Related product manuals