EasyManua.ls Logo

C-Max CM2 - SK172 & SK172 E Winch Operation; Emergency Drum Release; Replacing SK172 Tow Cable; SK172 Winch Cross-Section

C-Max CM2
52 pages
Print Icon
To Next Page IconTo Next Page
To Next Page IconTo Next Page
To Previous Page IconTo Previous Page
To Previous Page IconTo Previous Page
Loading...
CM2 Sidescan Sonar User Manual 17. SK172 & SK172E Winches
17. SK172 AND SK172E WINCHES
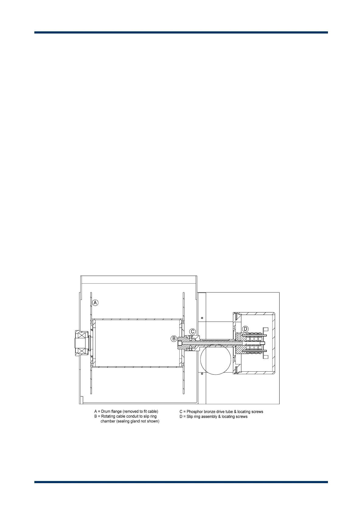
Freeing the Drum in an Emergency
On the optional SK172 and SK172E portable winches, an extended 5mm A/F key can be used to release the
winch drum for hand rotation in an emergency, by unscrewing the two locking screws in the bronze drive
bush. When released in this way the slip rings still function normally.
The locking screws should normally be kept tight and their tightness checked as part of the maintenance
routine.
Replacing the Tow Cable
If a tow cable is fitted, wind its full length, except for a couple of turns, on to another temporary reel.
Remove the sheet steel cover that protects the motor, gearbox and slipring assembly, and then remove the
slipring cover. Identify the two signal wires that emerge from the central conduit through the drive shaft;
these wires are attached to terminal blocks on the (rotating) end of the slipring assembly. Disconnect these
signal wires.
Remove the end plate holding the outboard bearing for the drum. Remove the screws securing the drum
flange and lay the flange aside. Note how the tow cable is routed.
Reach into the drum, loosen the central sealing gland, and then withdraw the coaxial signal cable that
extends from the end of the tow cable. Replace the tow cable by the reverse of the above procedure, first
inserting the tow cable in the slot in the winch drum. Identify the two conductors extending from reduced-
diameter section of the tow cable. Twist these together and push them down the central conduit.
Connect the conductors to terminals 1 and 2 on the rotating portion of the slip ring. Polarity is not important.
Check the slip ring connections through to pins B and F on the external connector.
Use a small amount of silicone rubber compound to fix the two signal cable wires to the rotating section. This
will prevent the wires vibrating and fracturing.
SK172 Winch, Cross-Section
Reach in to the drum and tighten the central gland.
Temporarily connect the other end of the tow cable to a towfish, and connect the winch deck cable to an
STR. Start the system and check for satisfactory operation. After correct operation has been checked,
disconnect the deck cable again.
Version 3.6 (2008)
37

Table of Contents