EasyManua.ls Logo

C&S Electronics WiNmaster 2 - Page 59

Default Icon
61 pages
Print Icon
To Next Page IconTo Next Page
To Next Page IconTo Next Page
To Previous Page IconTo Previous Page
To Previous Page IconTo Previous Page
Loading...
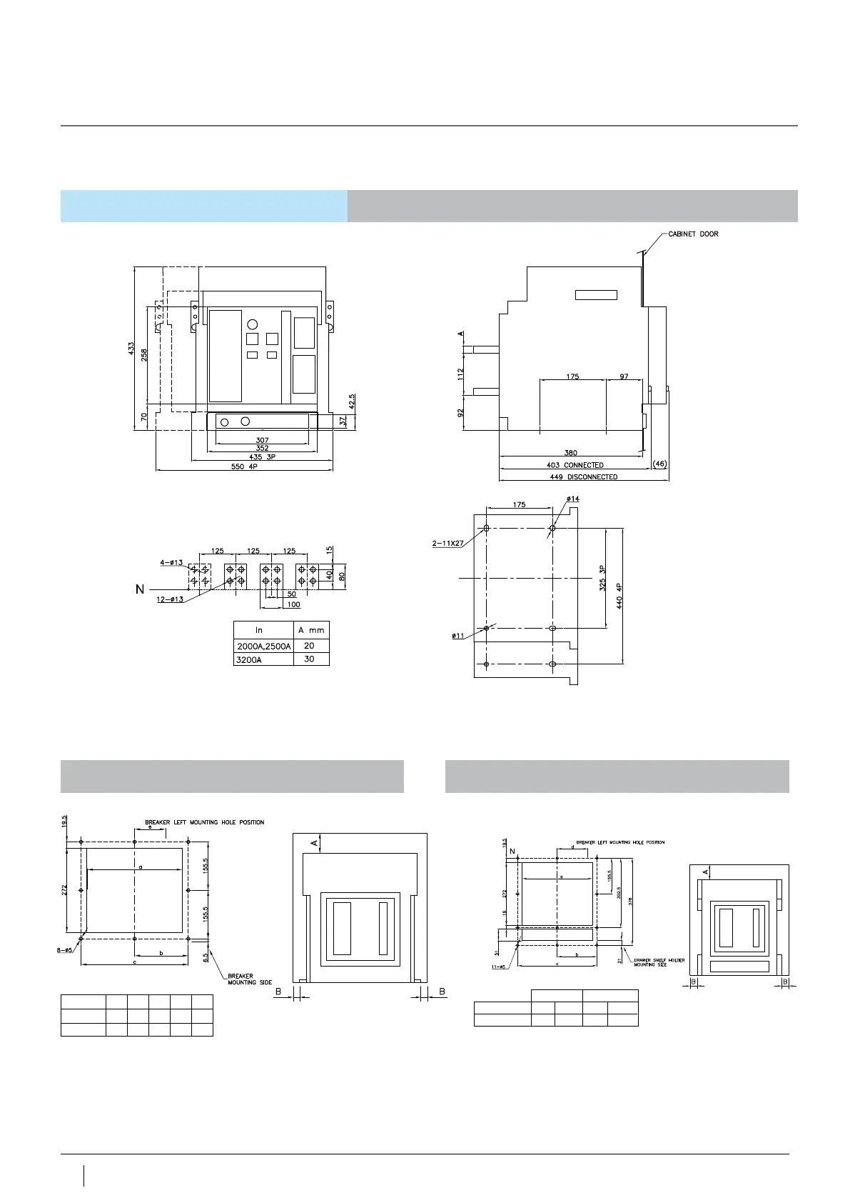
Dimensions
60 C&S Electric Limited
Draw-out type - 3200A, 3P/4P
W Nmaster 2i
Fixed type - Panel cutout dimension
Draw-out type - Panel cutout dimension
Inm a b c d e
630~200A 306
172.5
345
132.5
170
(mm)
Drawout Type
Fixed Type
to Insulator to Metal
A B
100 30
A B
100 70
3200A 362
202.5
405
167.5
200