EasyManua.ls Logo

Caple DI653 - Page 46

Caple DI653
60 pages
Print Icon
To Next Page IconTo Next Page
To Next Page IconTo Next Page
To Previous Page IconTo Previous Page
To Previous Page IconTo Previous Page
Loading...
Instruction manual Di65346 Please keep this instruction manual for future reference
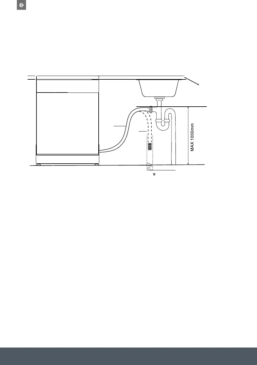
A
Counter
Front
Drainpipe
NOTE
Thet
op of thehose
must be less than
1000mm.
40mm
B
Tension adjustment
of the door spring
Figure5
Tension adjustment of the door spring
Connection of drain hoses
The door springs are set at the factory to the proper tension for the outer door.
when the aesthetic door panel is installed, you will have to adjust the door spring tension.
Rotate the adjusting screw to drive the adjuster to strain or relax the steel cable
(see figure 5).
Door spring tension is correct when
the door remains horizontal in the
fully opened positionyet rises
to a close with the slight lift of a
finger.
21
Insert the drain hose into a drain pipe with a minimum diameter of 40mm, or let it run into the sink, making sure to
avoid bending or crimping it. The top of the hose must be less than 1000mm.
A
Counter
Front
Drain pipe
NOTE
The top of the hose
must be less than
1000mm.
φ 40mm
B
HOW TO DRAIN EXCESS WATER FROM HOSES
If the sink is higher than 100cm from the floor, the excess water in hoses cannot be drained
directly into the sink. It will be necessary to drain excess water from hoses into a bowl or suitable
container that is held outside and lower than the sink.
WATER OUTLET
Connect the water drain hose. The drain hose must be correctly fitted to avoid water leaks. Ensure
that the water drain hose is not kinked or squashed.
EXTENSION HOSE
If you need a drain hose extension, make sure to use a similar drain hose. It must be no longer
than 4 metres; otherwise the cleaning effect of the dishwasher could be reduced.
SYPHON CONNECTION
The waste connection must be at a height less than 100cm (maximum) from the bottom of the
dishwasher. The water drain hose should be fixed.
WARNING:
Please securely fix the drain hose in either position A or position B:

Related product manuals