EasyManua.ls Logo

Carel pCO5 - Page 17

Carel pCO5
44 pages
Go to English
To Next Page IconTo Next Page
To Next Page IconTo Next Page
To Previous Page IconTo Previous Page
To Previous Page IconTo Previous Page
Loading...
17
+0500040RU - 1.2 - 07.06.2011
RUS
Модель EXTRALARGE
J20
J21
J22
J19
C14
NO14
NO15
NO16
C14
C17
NO17
NO18
NO19
NO20
C17
C25
NO25
NO26
NO27
NO28
NO29
C25
C21
NO21
NO22
NO23
NO24
C21
11
12
J23 FBus2
Fig. 6
Модель с драйвером вентиля (VALVE DRIVER)
J18
DI1
DI2
S4
S3
S2
S1
VREF
GND
J29
1
3
2
4
J28
1
3
2
4
J27
V
BAT
G0
G
J30
driver
20
21
22
NO8
C8
NC8
NO12
C12
NC12
NO13
C13
NC13
C9
NO9
NO10
NO11
C9
J16 J17
J15
ID3
ID4
ID5
ID6
ID7
ID8
IDC1
B6
B7
B8
GND
ID9
ID10
ID11
ID12
IDC9
ID13H
ID13
IDC13
ID14
ID14H
J5
J7
J8
J6
Fig. 7
Эмулятор pCO
5
По вопросам приобретения эмулятора pCO5, шифр CM0000202, пожалуйста, обращайтесь в компанию Carel. Если новые
функции, поддерживаемые новым эмулятором pCO5 не нужны, можно приобрести модель эмулятора pCO3.
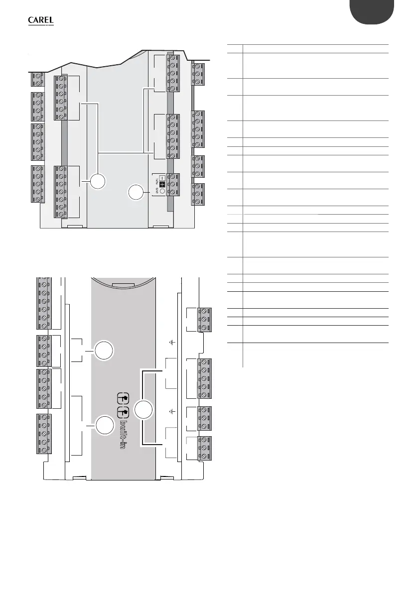
Поз. (Рис. 3, 4, 5)
1. Разъем питания [G (+), G0 (-)]
2. Кнопка адреса pLAN, 7-позиционный дисплей и
светодиод (индикатор питания и перегрузки +
разъем В пост. т.)
3. Дополнительное питание для терминала и
логометрических датчиков 0–5 В
4. Универсальные аналоговые входы датчиков NTC,
логометрических 0–1 В, 0–5 В, датчиков 0–10 В,
0–20 мА, 4–20 мА
5. Аналоговые входы пассивных датчиков NTC,
PT1000, ВКЛ./ВЫКЛ.
6. Аналоговые входы напряжения 0–10 В
7. Цифровые входы 24 В пер./пост. т.
8. Цифровые входы 230 В пер. т. или 24 В пер./
пост. т.
9. Разъем дисплея терминала (внешняя панель с
прямыми сигналами)
10. Разъем для всех стандартных терминалов серии
pCO и загрузки прикладных программ
11. Цифровые релейные выходы
12. Порт FieldBus2
13. Порт pLAN
14. Крышка слота установки опциональной платы
последовательного диспетчерского интерфейса
(BMS1)
15. Крышка слота установки опциональной платы
FieldBus1
16. Разъем BMS2
17. Порт FieldBus2
18. Встроенный терминал (ЖКД, кнопки и
светодиоды)
19. Порт USB Host и Slave
20. Разъем электронного вентиля
21. Цифровые и аналоговые входы драйвера
вентиля
22. Электропитание привода вентиля от модуля
Ultracap, шифр EVD0000UC0. Внешний модуль
контроллера pCO5
lantaclimate.ru

Related product manuals