EasyManua.ls Logo

Carrier 024-048 - Page 36

Carrier 024-048
41 pages
Print Icon
To Next Page IconTo Next Page
To Next Page IconTo Next Page
To Previous Page IconTo Previous Page
To Previous Page IconTo Previous Page
Loading...
: Service Manual
Manufacturer reserves the right to change, at any time, specifications and designs without notice and without obligations.
36
A210799
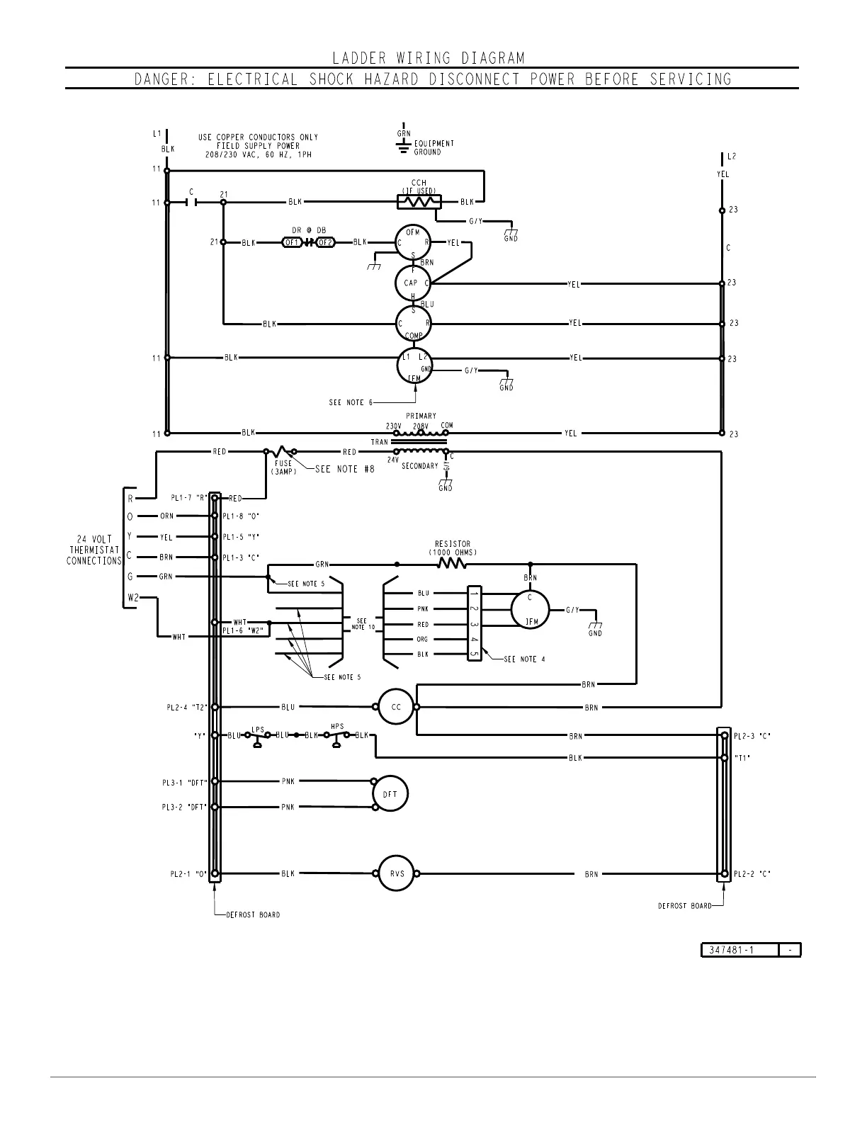
Fig. 36 – Typical Heat Pump Unit Ladder Electrical Diagram

Related product manuals