EasyManua.ls Logo

Carrier 25HCD3 - Page 10

Carrier 25HCD3
24 pages
To Next Page IconTo Next Page
To Next Page IconTo Next Page
To Previous Page IconTo Previous Page
To Previous Page IconTo Previous Page
Loading...
10
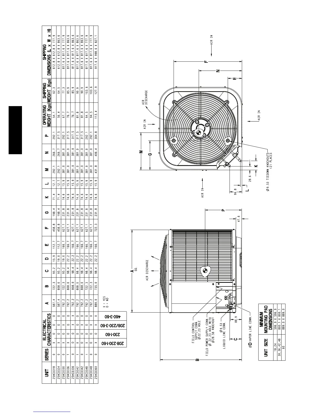
DIMENSIONS -- SI
25HCD3

Related product manuals