EasyManua.ls Logo

Carrier 38MBR series - Page 10

Carrier 38MBR series
50 pages
To Next Page IconTo Next Page
To Next Page IconTo Next Page
To Previous Page IconTo Previous Page
To Previous Page IconTo Previous Page
Loading...
10
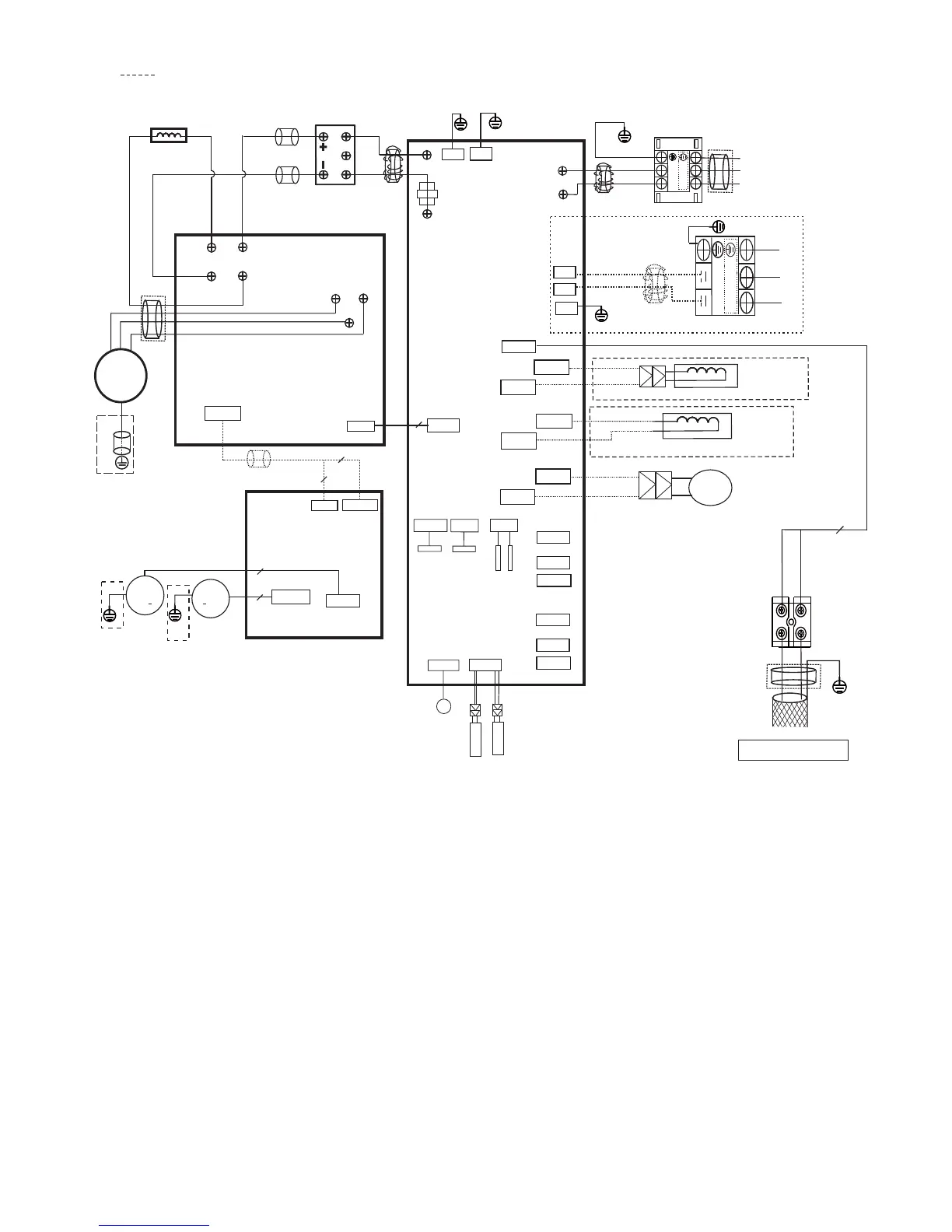
WIRING DIAGRAMS (CONTINUED)

IPM & PFC BOARD
MAIN BOARD
WIRING DIAGRAM (OUTDOOR UNIT)
CN15
A
ELECTRONIC
EXPANSIVE
V
A
L
VE A
CN12
TH
CN10
RED
ORP
-
L
H-PRO
CN9
T4
T3
T
N
EI
BM
AR
O
SN
ES
P
MET
EPIP
R
O
SNES.
D
12
3
4
5
CN36
P5
CN19
CN20
CN28
CN24
CN25
CN31
CN17
FAN1
CN18
HEAT_D
OPTIONAL
HEAT_Y
OPTIONAL
SV
4-WAY
BLUE
RED
BLUE
CN4
CN2
CN3
CN1
COMP
U
V
W
Y/G
Ferrite bead
CH2
CN6
CN9
10
3
CN1
CN2
L
YELLOW
YELLOW
U
V
W
BLUE
BLACK
RED
WIHTE
/RED
BLACK
RED
BLACK
Ferrite bead
CH1
CT1
DCFAN2
DCFAN1
Y/G
Y/G
DC MOTOR
DRIVER BOARD
CON1
FAN1
CN1
FAN2
3
3
P6
2
CN6
CN3
Y/G
BLACK
TO INDOOR COMM. BUS
XT2
WOL
LEY
YARG
S1
S2
NOTEφ
shielded wire.
Please use 2-core
2
L2
L1
MAIN
POWER SUPPLY
XT1
TO INDOOR UNIT
(1)L1
Y/G
XT2
OPTIONAL
N
L
P9
P7
P8
CN22
RED
BLUE
/BLACK
CN8
PAIQI
ORANGE
ORANGE
RED
BLACK
CH2
Ferrite bead
Ferrite bead
Ferrite bead
CH2
CH2
~
~
~
Ferrite bead
Ferrite
bead
Notes:
This symbol indicates the element
is optional,the actual shape shall
b
e prevail.
(2)L2
(1)N
(2)N
CN34
CN32
CN27
YELLOW
Fig. 6 – Wiring Diagram Size 48K
OUTDOOR UNIT MAIN BOARD
CODE PART NAME
CN1~CN3 Input: 230VAC High voltage
P7~P8 Output: 230VAC High voltage to IDU
P5,P6,P9 Connection to the earth
CN22 Output:-24VDC-24VDC for IDU Communication
CN17~CN18 Output: 230VAC High voltage 4 way valve
CN19~CN20 Output: 230VAC High voltage Chassis Crankcase Heater
CN24~CN25 Output: 230VAC High voltage Compressor Crankcase Heater
CN2~CN4 Output: 230VAC High voltage to AC CURRENT DETECTOR
CN12 Input: Pin1 (0-5VDC),Pin2 (5VDC) Heatsink Temperature Sensor
CN8 Input: Pin1 (0-5VDC),Pin2 (5VDC) Compressor Top Sensor(PAIQI)
CN9 Input: Pin3,Pin4 (5VDC),Pin2 (0VDC),Pin1,Pin5 (0-5VDC) the ambient sensor and pipe sensor
CN10 Input: Pin2, Pin4 (0VDC),Pin1,Pin3 (0-5VDC) for the H/L pressure switch
CN15 Output: Pin1-Pin4: Pulse waveform (0-12VDC),Pin5, Pin6 (12VDC) EEV
CN6 Output: Pin1-Pin6: Pulse waveform (0-5VDC), Pin7, Pin9 (0VDC) Pin8 (0-5VDC), Pin10 (5VDC)

Related product manuals