EasyManua.ls Logo

Carrier 38MVC - Standard Features and Accessories; Standard Features; AHRI Capacity Ratings

Carrier 38MVC
14 pages
Print Icon
To Next Page IconTo Next Page
To Next Page IconTo Next Page
To Previous Page IconTo Previous Page
To Previous Page IconTo Previous Page
Loading...
4
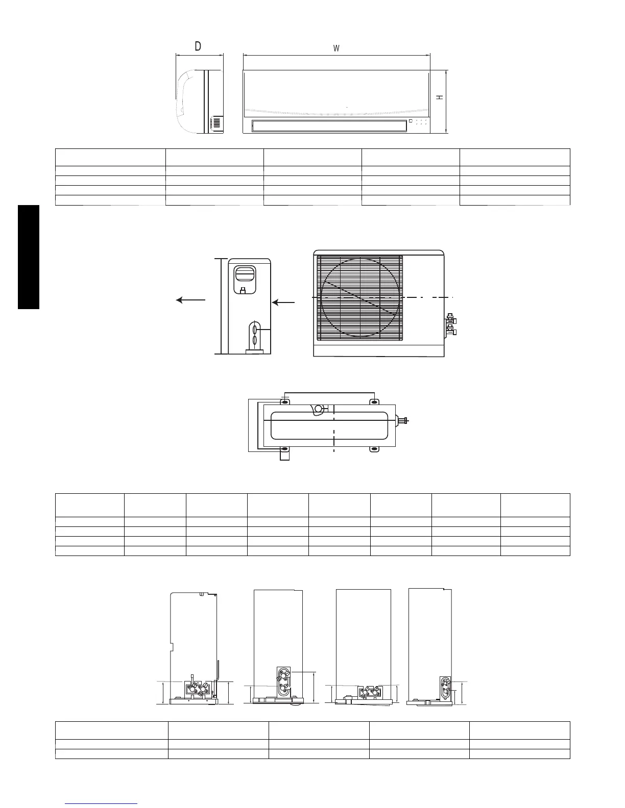
DIMENSIONS -- INDOOR
A07336
Model Size
W
in. (mm)
H
in. (mm)
D
in. (mm)
Operating Weight lb (kg)
9K 32.09 (815) 11.02 (280) 7.68 (195)
17.6 (8)
12K 35.67 (906) 11.26 (286) 9.25 (235)
25.3 (11.5)
18K 49.21 (1250) 12.80 (325) 9.06 (230)
39.6 (18)
24K 49.21 (1250) 12.80 (325) 9.06 (230)
39.6 (18)
DIMENSIONS -- OUTDOOR
L1
L2
D
35
W
H
Air Flow
A07337
Model Size
W
in. (mm)
H
in. (mm)
L1
in. (mm)
L2
in. (mm)
L3
in. (mm)
Operating Weight
lb (kg)
Cooling Only
Operating Weight
lb (kg)
Heat Pumps
9K 30.71 (780) 21.26 (540) 21.61 (549) 11.81 (300) 10.87 (276)
70.4 (32) 72.6 (33)
12K 29.92 (760) 23.23 (590) 20.87 (530) 12.40 (315) 11.42 (290)
79.2 (36) 83.6 (38)
18K 33.07 (840) 27.36 (695) 22.05 (560) 14.17 (360) 13.19 (335)
116.6 (53) 117.7 (53.5)
24K 35.00 (889) 33.50 (851) 23.11 (588) 13.98 (355) 13.11 (333)
149.6 (68) 151 (68.5)
SERVICE VALVE LOCATIONS
J
K
9K
12K
18K
24K
J
K
J
K
K
J
A07376a
Service V alve Locations
9K
in. (mm)
12K
in. (mm)
18K
in. (mm)
24K
in. (mm)
J 3.46 (88) 3.19 (81) 3.46 (88) 4.02 (102)
K 3.46 (88) 5.63 (143) 3.62 ( 92) 6.57 (167)
38/40MVC, MVQ

Other manuals for Carrier 38MVC

Related product manuals