EasyManua.ls Logo

Carrier 40GVC / 38GVC - Unit Dimensions; Indoor Unit Dimensions; Outdoor Unit Dimensions

Carrier 40GVC / 38GVC
18 pages
To Next Page IconTo Next Page
To Next Page IconTo Next Page
To Previous Page IconTo Previous Page
To Previous Page IconTo Previous Page
Loading...
5
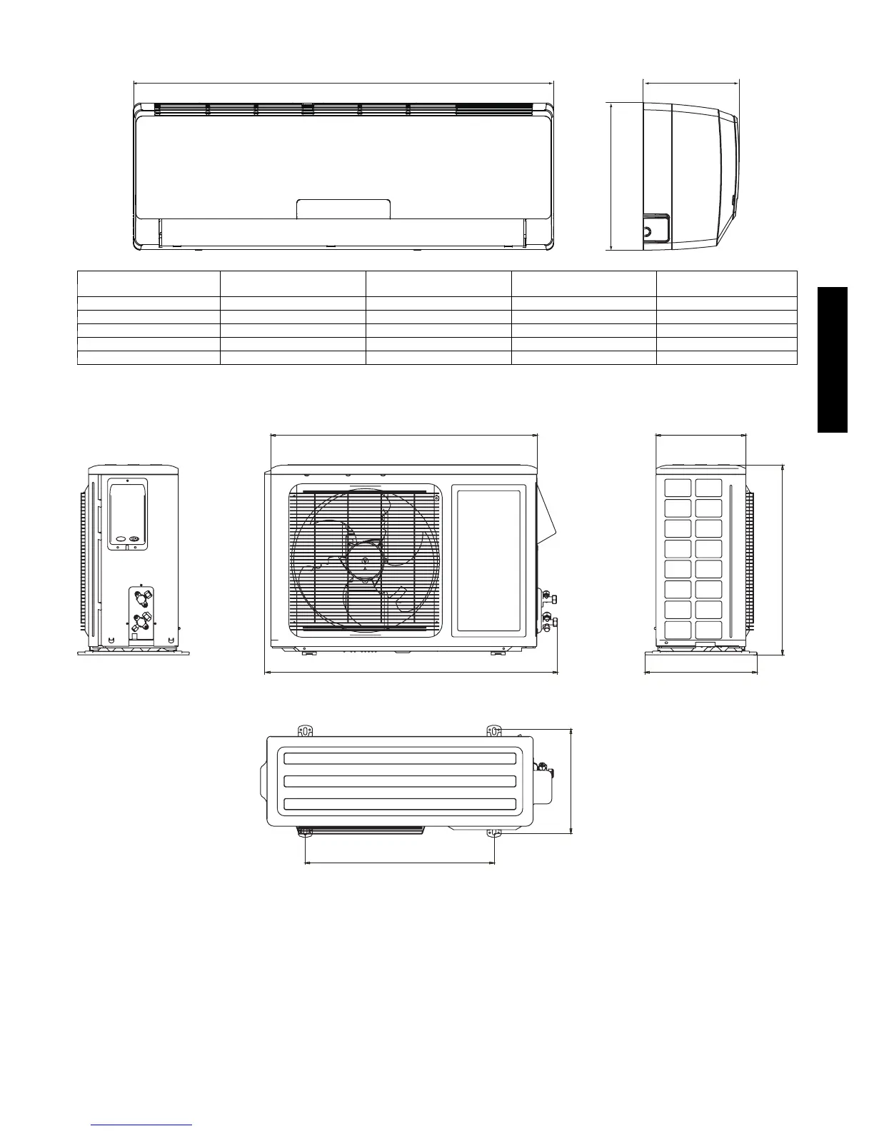
DIMENSIONS -- INDOOR
WD
H
A12377
Unit Size
W
In. (mm)
H
In. (mm)
D
In. (mm)
Net Operating Weight
Lbs. (Kg)
9K 30.3 (770) 11.1 (283) 7.9 (201) 18.7 (8.5)
12 K 30.3 (770) 11.1 (283) 7.9 (201) 19.8 (9.0)
18 K 34.0 (865) 12.0 (305) 8.5 (215) 26.4 (12)
24 K 39.7 (1008) 12.6 (319) 8.7 (221) 33.1 (15.0)
30/36 K 53.1 (1349) 12.8 (325) 10.0 (254) 44.1 (20.0)
Fig. 2 Indoor Unit Dimensions
DIMENSIONS -- OUTDOOR
30.0 (762)
33.4 (848)
12.6 (320)
10.1 (257)
21.3 (540)
11.7 (267)
21.3 (540)
Unit: IN. (mm)
A12531
Fig. 3 9K and 12K 115V (Net Operating Weight: 75 lbs. / 34 kg)
38/40GVC(Q)

Related product manuals