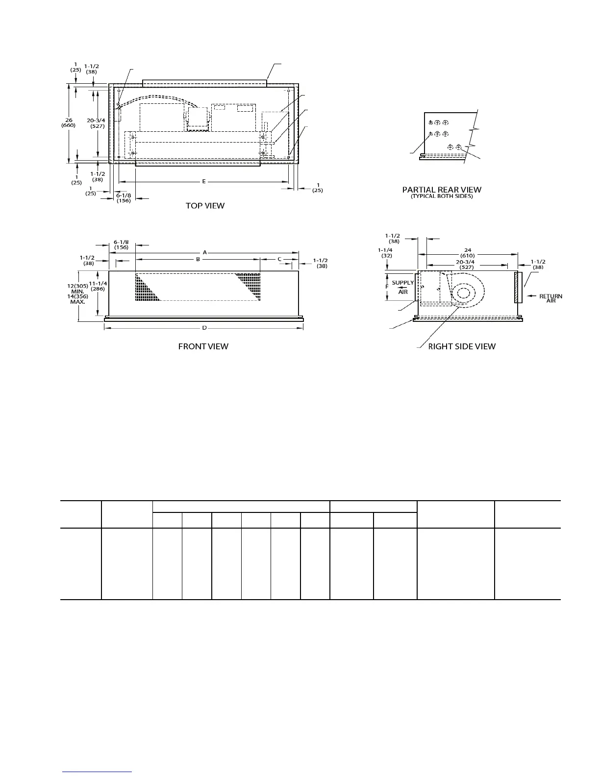
Fig. 9 — 42CK Horizontal Cabinet Unit with Telescopic Access Panel,
*Unit weights are based on dry coils and minimum rows. Weights exclude packaging, valves, and other components.
UNIT
SIZE
NOM
AIRFLOW
(Cfm)
DIMENSIONS (in.) QTY/UNIT
REAR RETURN
FILTER SIZE (in.)
UNIT WEIGHT*
(lb)
ABCDEFBlowerMotor
02 200 35 16 12
3
/
4
37 32 6 1 1 7 x 21 115
03 300 35 20 8
3
/
4
37 32 6 1 1 7 x 21 120
04 400 41 26 8
3
/
4
43 38 6 2 1 7 x 27 135
06 600 53 31 15
3
/
4
55 50 7 2 1 7 x 38 150
08 800 53 38 8
3
/
4
55 50 7 2 1 7 x 38 155
10 1000 75 52 16
3
/
4
77 72 7 4 2 7 x 52 227
12 1200 75 60 8
3
/
4
77 72 7 4 2 7 x 52 241
a42-4151
NOTES:
1. Right hand unit shown; left hand unit opposite.
2. Internal factory valve package and drains may not align with
cabinet knockouts.
3. Dimensions shown in inches (mm). All dimensions are
±
1
/
4
inches.
4. Bottom panel is Arctic White polyester powder coat paint.
LEGEND
1 — Junction Box
2 — 1-in. Ducted Rear Return and 1-in. Filter
3 — L-shape Drip Lip (optional, shipped loose)
4 — Chilled/Hot Water Supply and Return Connection
5 — Resilient Mounting Grommets with
3
/
8
-in. Diameter Hole
(typically 4)
6 — Electrical Knockout,
7
/
8
-in. Diameter
7 — Drain Knockout, 1
1
/
2
-in. Diameter
8 — 1-in. Ducted Rear Return and 1-in. Filter
9 — Condensate Drain Connection,
7
/
8
-in. OD
10 — Hinged Bottom Return Air Panel
11 — Supply Duct Collar, 1-in. OD