EasyManua.ls Logo

Carrier 42CA - Step 2 - Make Piping Connections

Carrier 42CA
60 pages
Print Icon
To Next Page IconTo Next Page
To Next Page IconTo Next Page
To Previous Page IconTo Previous Page
To Previous Page IconTo Previous Page
Loading...
34
42D UNITS
1. Select the unit location. Allow adequate space for free air
circulation, service clearances, piping and electrical con-
nections, and any necessary ductwork. For specific unit
dimensions, refer to the submittal drawings. Allow clear-
ances according to the local and national electrical codes.
2. Be sure either the ceiling (42DA, DC, DE, and DF units)
or floor (42DD unit) is able to support the weight of the
unit. See Table 3 for nominal unit weight.
3. Move unit into position. Ensure unit is level or pitched
towards drain to ensure proper drainage and operation.
See Fig. 24-28. Pitch of suspended unit can change after
coil is filled; recheck after filling coil.
4. Mounting units to the ceiling:
a. When unit is lifted, access to the 0.375-in. mount-
ing holes is on the top panel of the unit. Hanger
rods and fasteners and other required hardware
must be field-supplied.
b. Use rods and fasteners to suspend the unit at the
factory-provided mounting holes with rubber
grommets on the top of the unit. Attach unit to the
ceiling using the 0.375-in. mounting holes (4) in
top panel; do not use any other locations. Refer to
Table 4 for threaded rod recommendations.
c. Use the rods and fasteners to suspend the unit at
the factory-provided 0.375-in. hanger slots (4)
with the rubber grommets on the top of the unit on
the 42DA, DC, DE, and DF units.
NOTE: The four mounting holes and hanger slots
with rubber grommets are NOT for balancing unit.
d. Models 42DA and 42DC with bottom inlet may be
installed in noncombustible return spaces only.
5. Mounting units on the floor:
a. Ensure wall behind the unit is smooth and plumb;
if necessary, install furring strips on walls with
irregular surfaces or mullions. Furring strips must
be positioned behind mounting holes on 42DD
units. Fasteners, furring strips, and other seals (if
required) must be field-supplied.
b. If the unit has leveling legs, adjust them correctly
to level the unit.
6. Protect units from damage caused by jobsite debris. Do
not allow foreign material to fall in unit drain pan.
Prevent dust and debris from being deposited on motor or
fan wheels.
Step 2 — Make Piping Connections — Access to
piping is available through the access panels at the side of the
units or front of the unit. Qualified personnel in accordance
with local and national codes must perform all piping connec-
tions. Refer to Tables 1-3 for piping connections.
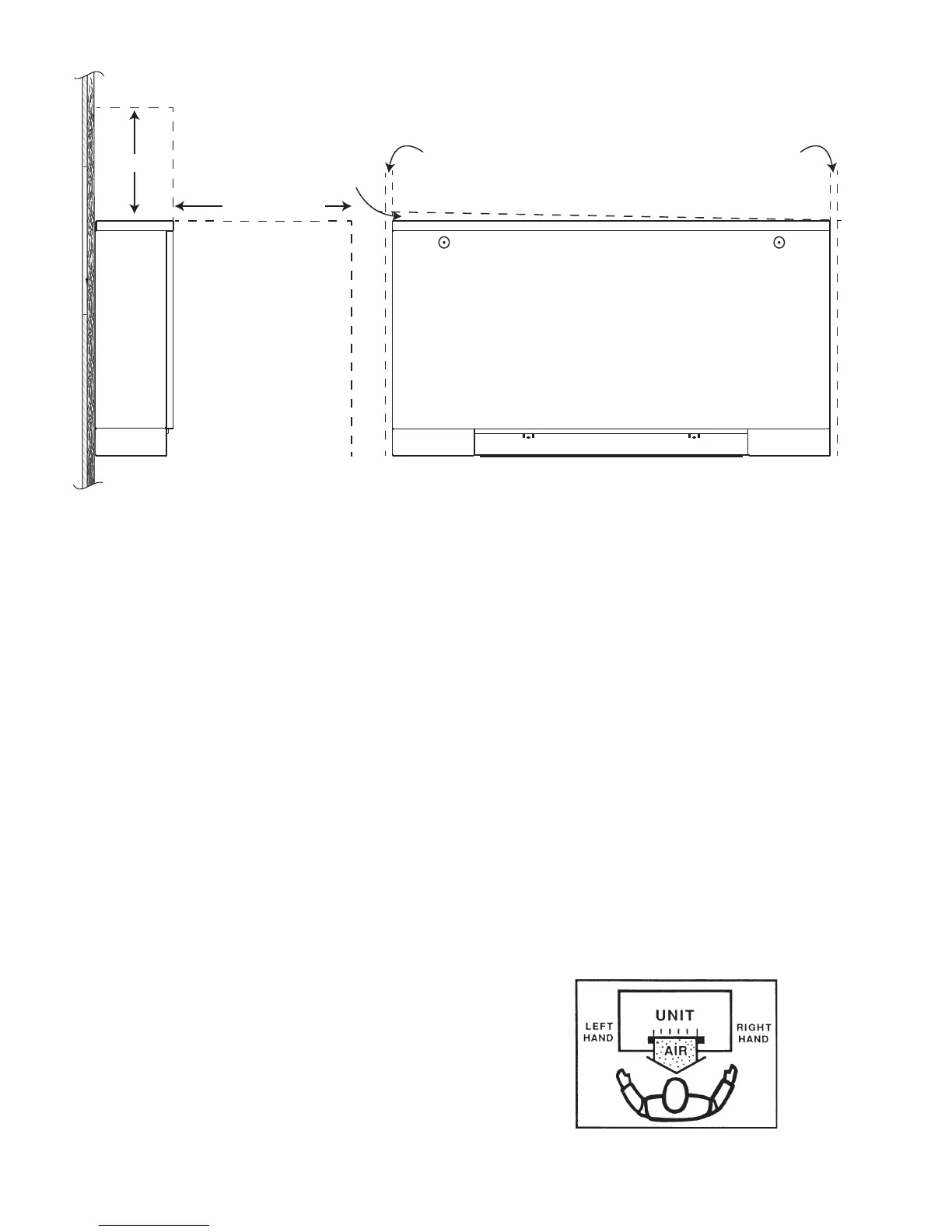
NOTE: It is important to have a common understanding of
which side of the unit is the right hand side and which is the
left hand side.
When facing the supply air outlet from the front of the unit
(air blowing in your face), your right hand will be on the right
side of the unit and your left hand will be on the left side of the
unit. See Fig. 30. Refer to Fig. 31 and 32 for typical piping
connections.
The supply and return piping connections of the factory-
provided valve package are either swaged for field brazing
(standard) or union fitted (optional) for field connection to the
coil.
12"
30" Minimum
per building code
SIDE VIEW
FRONT VIEW
½"
Minimum
½"
Minimum
Level Unit
±¼"
Fig. 29 — Clearance Recommendations
Fig. 30 — Unit End Reference

Related product manuals