EasyManua.ls Logo

Carrier 42CA - Page 20

Carrier 42CA
60 pages
Print Icon
To Next Page IconTo Next Page
To Next Page IconTo Next Page
To Previous Page IconTo Previous Page
To Previous Page IconTo Previous Page
Loading...
20
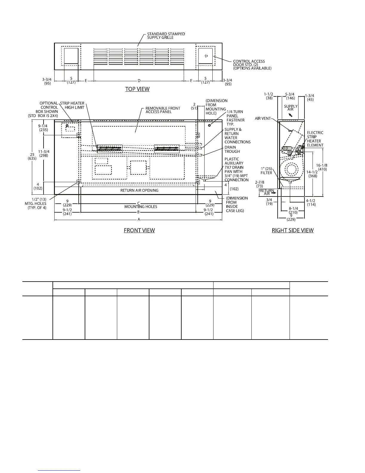
Fig. 16 — 42VB Vertical Cabinet Unit with Electric Heater Dimensions
2-1/2
(64)
a42-4384
*Unit weights are based on dry coils and minimum rows. Weights exclude packaging, valves, and other components.
UNIT
SIZE
DIMENSIONS (in.) QTY/UNIT
UNIT WEIGHT*
(lb)
ABCDEBlowerMotor
02 41 22 23 17
1
/
4
3
1
/
8
1163
03 41 22 23 17
1
/
4
3
1
/
8
1168
04 51 32 33 26 3
3
/
4
2182
06 61 42 43 39 2
1
/
4
2199
08 63 44 45 39 3
1
/
4
2 1 101
10 77 58 59 52
1
/
8
3
5
/
8
4 2 133
12 85 66 67 61 3
1
/
4
4 2 154
NOTES:
1. Right hand unit shown; left hand unit opposite.
2. Dimensions shown in inches (mm). All dimensions are
±
1
/
4
inches.

Related product manuals