EasyManua.ls Logo

Carrier 48TJE Series - Rig and Place Unit

Carrier 48TJE Series
44 pages
To Next Page IconTo Next Page
To Next Page IconTo Next Page
To Previous Page IconTo Previous Page
To Previous Page IconTo Previous Page
Loading...
Curb should be level. Unit leveling tolerances are shown
in Fig. 3. This is necessary for unit drain to function prop-
erly. Refer to Accessory Roof Curb Installation Instructions
for additional information as required.
SLAB MOUNT (Horizontal Units Only) Provide a level
concrete slab that extends a minimum of 6 in. beyond unit
cabinet. Install a gravel apron in front of condenser coil air
inlet to prevent grass and foliage from obstructing airflow.
NOTE: Horizontal units may be installed on a roof curb if
required.
Step 2 Field Fabricate Ductwork Secure all
ducts to roof curb and building structure on vertical units.
Do not connect ductwork to unit. For horizontal applica-
tions, field-supplied flanges should be attached to horizontal
discharge openings and all ductwork should be secured to
the flanges. Insulate and weatherproof all external duct-
work, joints, and roof openings with counter flashing and
mastic in accordance with applicable codes.
Ducts passing through an unconditioned space must be
insulated and covered with a vapor barrier.
If a plenum return is used on a vertical unit, the return
should be ducted through the roof deck to comply with
applicable fire codes.
A minimum clearance is not required around ductwork.
Cabinet return air static shall not exceed 2.20 in. wg with
PARABLADE, economizer 2.35 in. wg with Varislide™
economizer or 2.45 in. wg without economizer.
These units are designed for a minimum continuous return-
air temperature of 50 F (dry bulb), or an intermittent opera-
tion down to 45 F (dry bulb), such as when used with a night
set-back thermostat.
Step 3 Install External Trap for Condensate
Drain
The unit’s 3/4-in. condensate drain connections
are located at the bottom and side of the unit. Unit discharge
connections do not determine the use of drain connections;
either drain connection can be used with vertical or hori-
zontal applications.
When using the standard side drain connection, make sure
the plug in the alternate bottom connection is tight before
installing the unit.
To use the bottom drain connection for a roof curb in-
stallation, relocate the factory-installed plug from the bot-
tom connection to the side connection. See Fig. 4A. The piping
for the condensate drain and external trap can be completed
after the unit is in place.
All units must have an external trap for condensate drain-
age. Install a trap at least 4-in. deep and protect against freeze-
up. See Fig. 4B. If drain line is installed downstream from
the external trap, pitch the line away from the unit at 1 in.
per 10 ft of run. Do not use a pipe size smaller than the unit
connection.
Step 4 Rig and Place Unit Inspect unit for trans-
portation damage. File any claim with transportation agency.
Keep unit upright and do not drop. Spreader bars
are not required if top crating is left on unit. Rollers may be
used to move unit across a roof. Level by using unit frame
as a reference. See Table 1 and Fig. 5 for additional
information.
Lifting holes are provided in base rails as shown in
Fig. 6. Refer to rigging instructions on unit.
All panels must be in place when rigging.
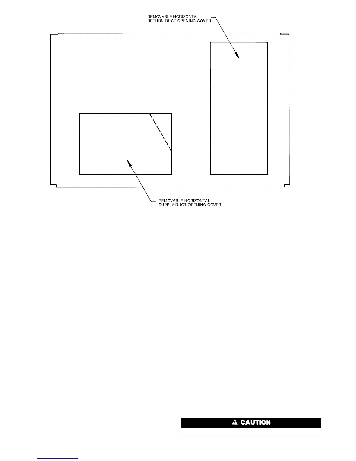
Fig. 1 Horizontal Conversion Panels
2

Related product manuals