EasyManua.ls Logo

Carrier 50DK030 - Page 9

Carrier 50DK030
32 pages
Print Icon
To Next Page IconTo Next Page
To Next Page IconTo Next Page
To Previous Page IconTo Previous Page
To Previous Page IconTo Previous Page
Loading...
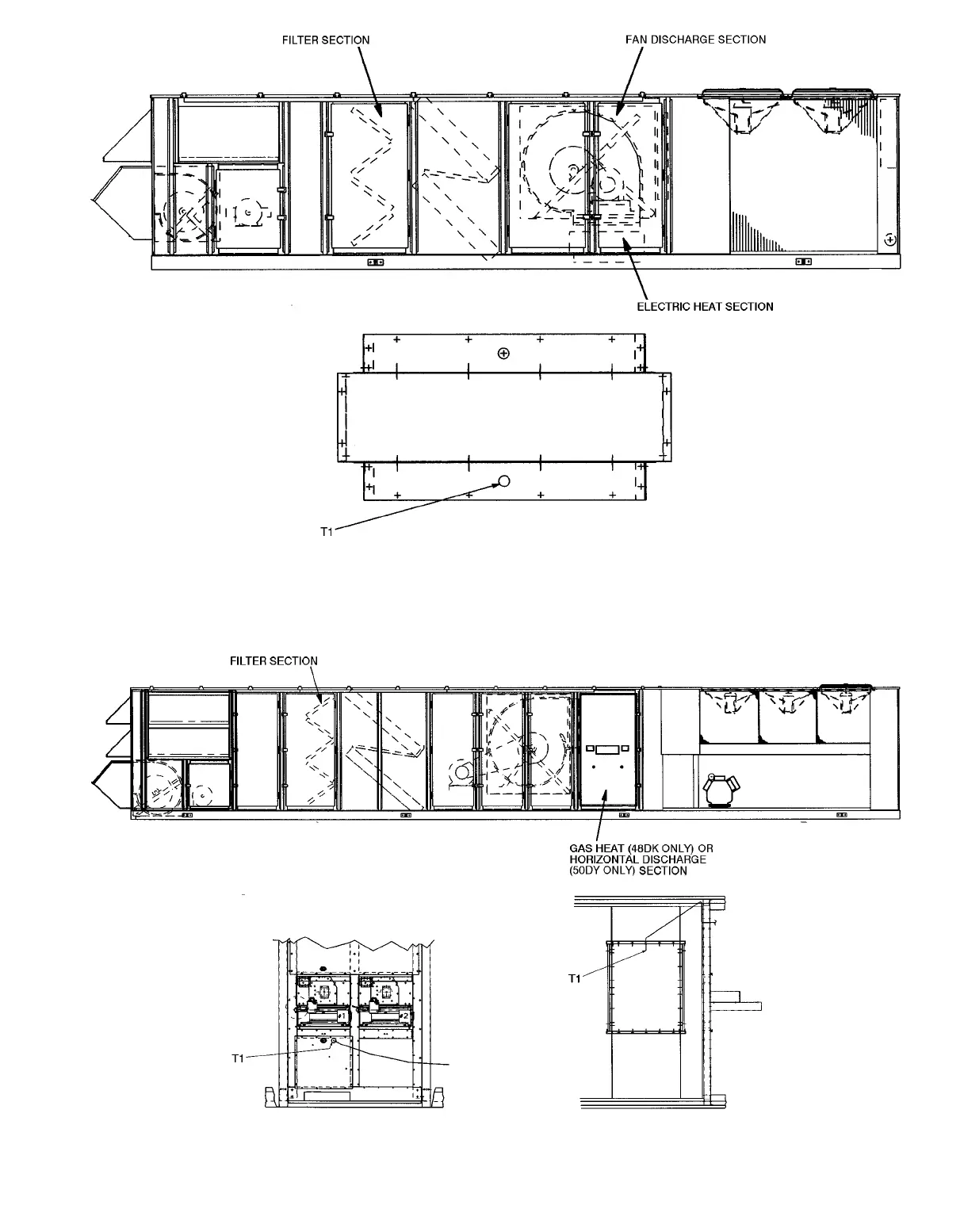
FAN DISCHARGE/ELECTRIC HEAT SECTION
Fig. 11 Thermistor T1 Location, 50DK034,044 Units
GAS SECTION (48DK) FAN DISCHARGE/ELECTRIC HEAT
SECTION (50DY)
Fig. 12 Thermistor T1 Location, 48DK/50DY054-074 Units
9

Table of Contents

Other manuals for Carrier 50DK030

Related product manuals