EasyManua.ls Logo

Carrier 50TC-D25 - Control Diagram (208;230 V, 460 V, 575 V)

Carrier 50TC-D25
82 pages
To Next Page IconTo Next Page
To Next Page IconTo Next Page
To Previous Page IconTo Previous Page
To Previous Page IconTo Previous Page
Loading...
68
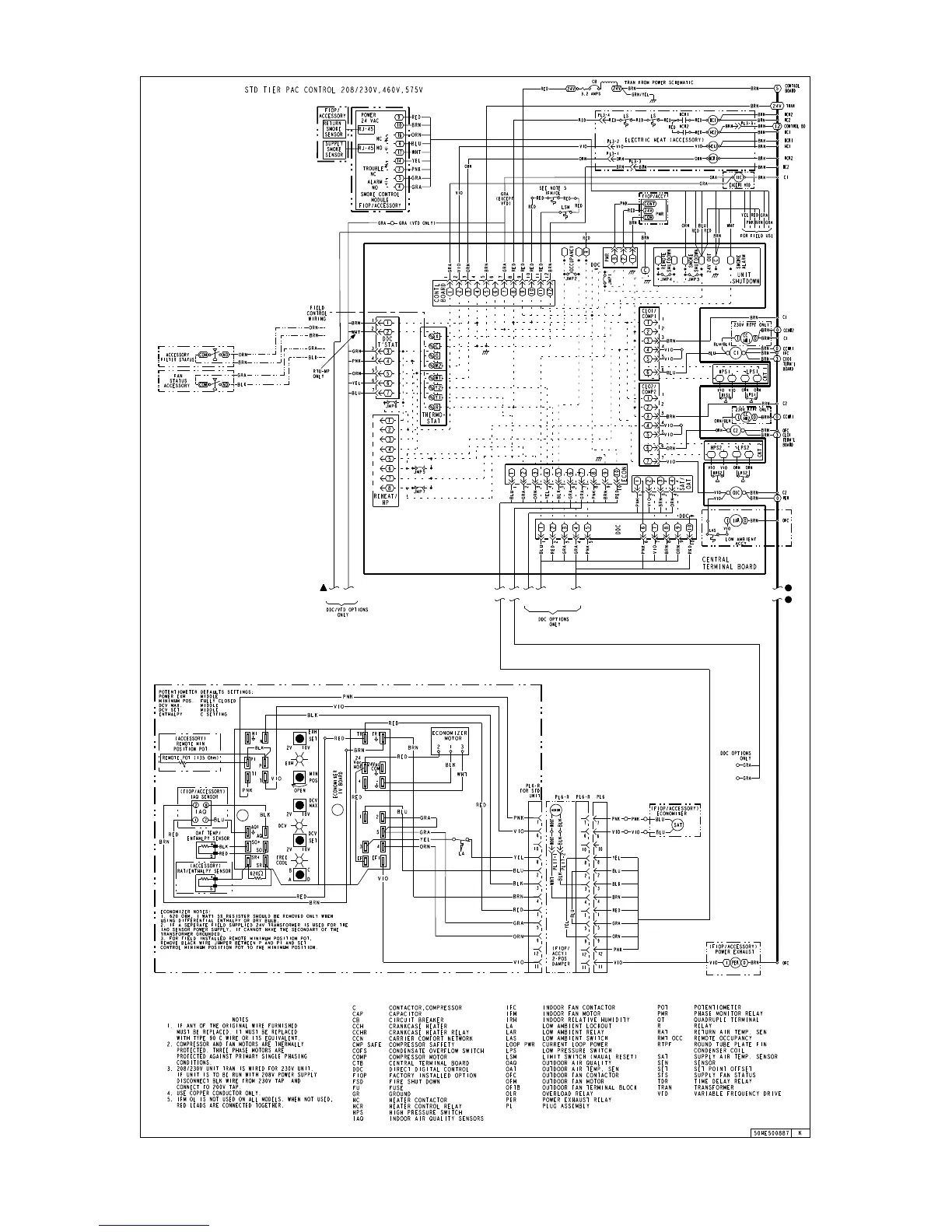
APPENDIX IV. WIRING DIAGRAMS
C150425
Fig. 57 50TC D17 D28 Control Diagram 208/230360; 460/575360

Related product manuals