EasyManua.ls Logo

Carrier 50TC-D25 - SAV - VFD System Control Wiring Diagram

Carrier 50TC-D25
82 pages
To Next Page IconTo Next Page
To Next Page IconTo Next Page
To Previous Page IconTo Previous Page
To Previous Page IconTo Previous Page
Loading...
79
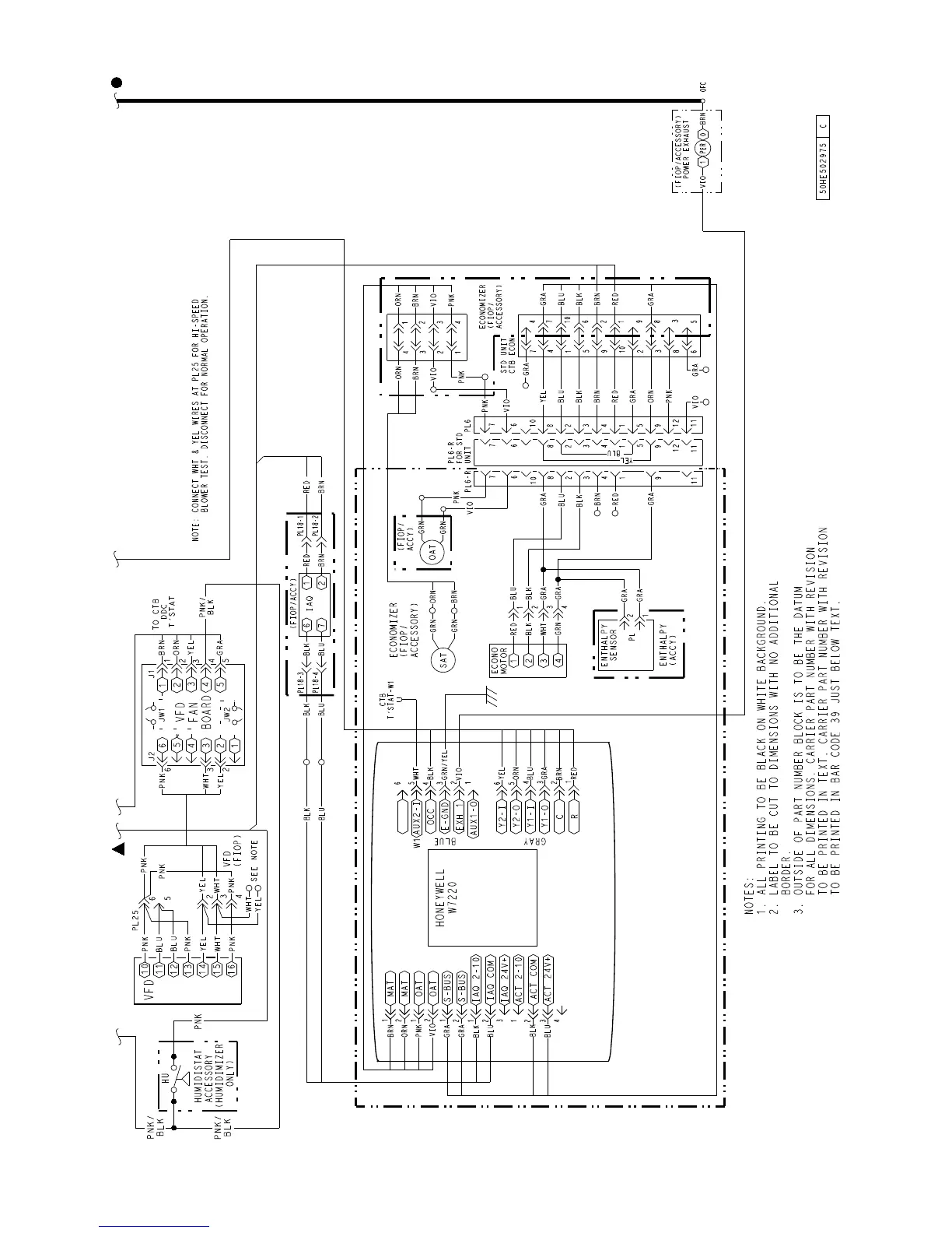
APPENDIX IV. WIRING DIAGRAMS
C12689A
Fig. 68 50TC SAV VFD System Control Wiring Diagram

Related product manuals