EasyManua.ls Logo

Carrier 50TC-D30 - Page 31

Carrier 50TC-D30
82 pages
To Next Page IconTo Next Page
To Next Page IconTo Next Page
To Previous Page IconTo Previous Page
To Previous Page IconTo Previous Page
Loading...
31
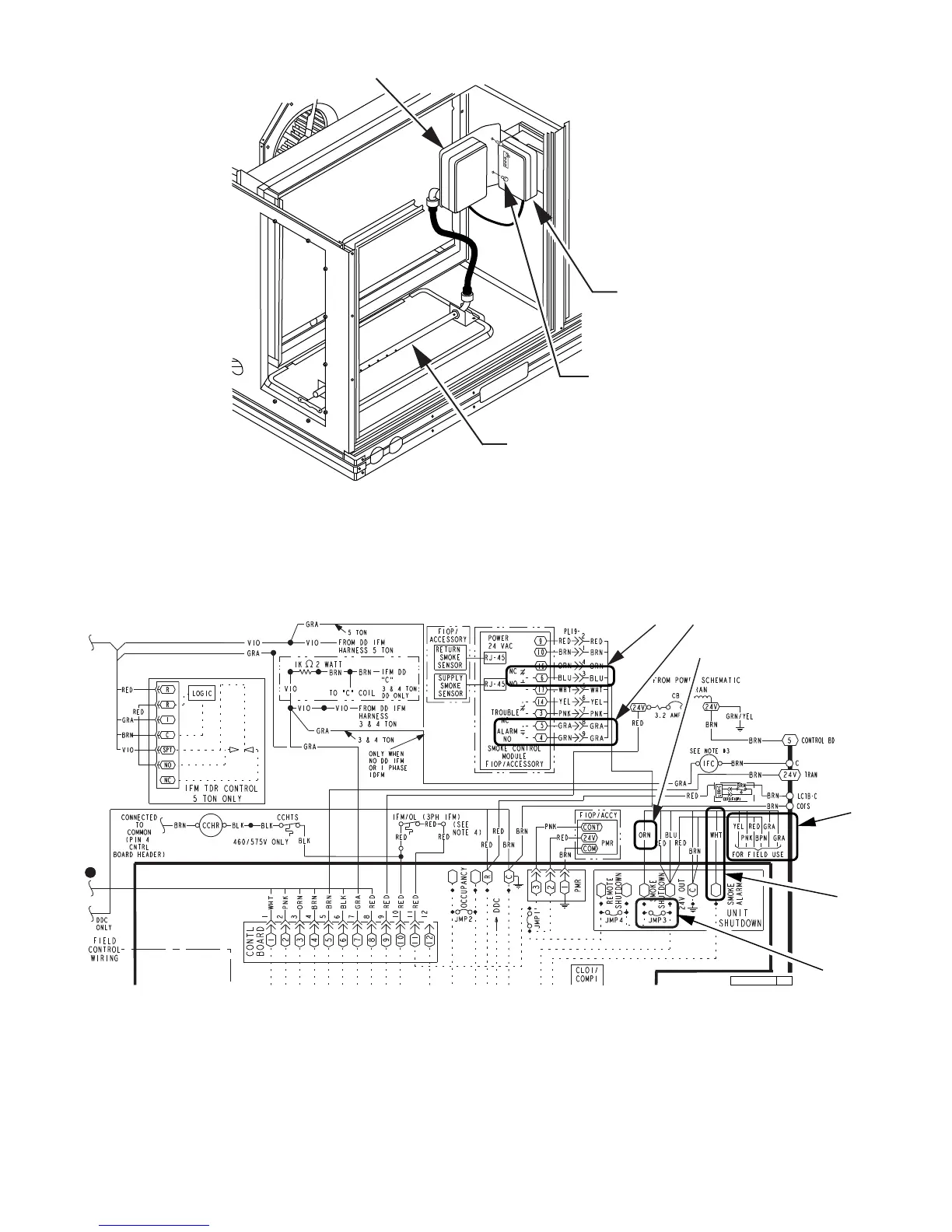
RETURN AIR SENSOR
(Operating Position Shown)
SCREWS (2)
SAMPLE TUBE
CONTROLLER
MODULE
C12050
Fig. 38 Return Air Sampling Tube Location in Unit with Economizer
B
D
F
E
A
C
48TM502525 D
C12559
Fig. 39 Typical Smoke Detector System Wiring

Related product manuals