EasyManua.ls Logo

Carrier 62E - Specification

Carrier 62E
40 pages
Print Icon
To Next Page IconTo Next Page
To Next Page IconTo Next Page
To Previous Page IconTo Previous Page
To Previous Page IconTo Previous Page
Loading...
29
Table 8 — MS/TP Wiring Recommendations
LEGEND
TO ADDRESS THE UPC OPEN CONTROLLER — The
user must give the UPC Open controller an address that is
unique on the BACnet network. Perform the following proce-
dure to assign an address:
1. If the UPC Open controller is powered, pull the screw ter-
minal connector from the controller's power terminals la-
beled Gnd and HOT. The controller reads the address
each time power is applied to it.
2. Using the rotary switches (see Fig. 25 and 28), set the
controller's address. Set the Tens (10's) switch to the tens
digit of the address, and set the Ones (1's) switch to the
ones digit.
As an example in Fig. 28, if the controller’s address is 25,
point the arrow on the Tens (10's) switch to 2 and the arrow on
the Ones (1's) switch to 5.
BACNET DEVICE INSTANCE ADDRESS — The UPC
Open controller also has a BACnet Device Instance address.
This Device Instance MUST be unique for the complete BAC-
net system in which the UPC Open controller is installed. The
Device Instance is auto generated by default and is derived by
SPECIFICATION RECOMMMENDATION
Cable Single twisted pair, low capacitance, CL2P, 22 AWG (7x30), TC foam FEP, plenum rated cable
Conductor 22 or 24 AWG stranded copper (tin plated)
Insulation Foamed FEP 0.015 in. (0.381 mm) wall 0.060 in. (1.524 mm) O.D.
Color Code Black/White
Twist Lay 2 in. (50.8 mm) lay on pair 6 twists/foot (20 twists/meter) nominal
Shielding Aluminum/Mylar shield with 24 AWG TC drain wire
Jacket
SmokeGard Jacket (SmokeGard PVC) 0.021 in. (0.5334 mm) wall 0.175 in. (4.445 mm) O.D.
Halar Jacket (E-CTFE) 0.010 in. (0.254 mm) wall 0.144 in. (3.6576 mm) O.D.
DC Resistance 15.2 Ohms/1000 feet (50 Ohms/km) nominal
Capacitance 12.5 pF/ft (41 pF/meter) nominal conductor to conductor
Characteristic Impedance 100 Ohms nominal
Weight 12 lb/1000 feet (17.9 kg/km)
UL Temperature Rating SmokeGard 167°F (75°C), Halar -40 to 302°F (-40 to 150°C)
Voltage 300 Vac, power limited
Listing UL: NEC CL2P, or better
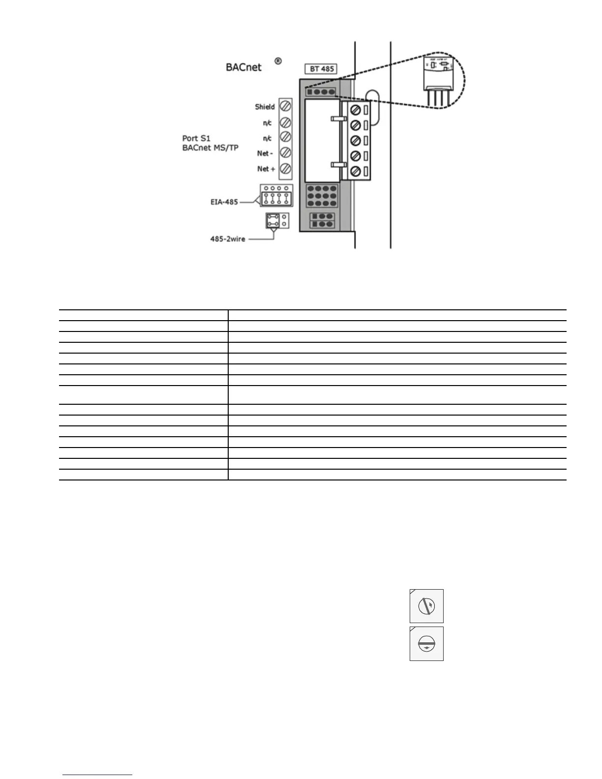
Fig. 27 — BT485 Terminator Installation
AWG American Wire Gage
CL2P Class 2 Plenum Cable
DC Direct Current
FEP Fluorinated Ethylene Polymer
NEC National Electrical Code
O.D. Outside Diameter
TC Tinned Copper
UL Underwriters Laboratories
10's
1's
1
3
4
5
2
7
8
9
6
0
1
3
4
5
2
7
8
9
6
0
Fig. 28 — Address Rotary Switches

Related product manuals