EasyManua.ls Logo

Carrier EVERGREEN 23XRV - Application Data

Carrier EVERGREEN 23XRV
32 pages
To Next Page IconTo Next Page
To Next Page IconTo Next Page
To Previous Page IconTo Previous Page
To Previous Page IconTo Previous Page
Loading...
17
Application data
F
E
Y
Y*
B
G
A
VESSELS
TYP.
0-3
[76.2mm]
ACCESSORY
SOLEPLATE
0-01/2”
[13mm]
TYP.
X
X*
VESSELS
COND.
COOLER
C
L
C
L
C
L
C
D
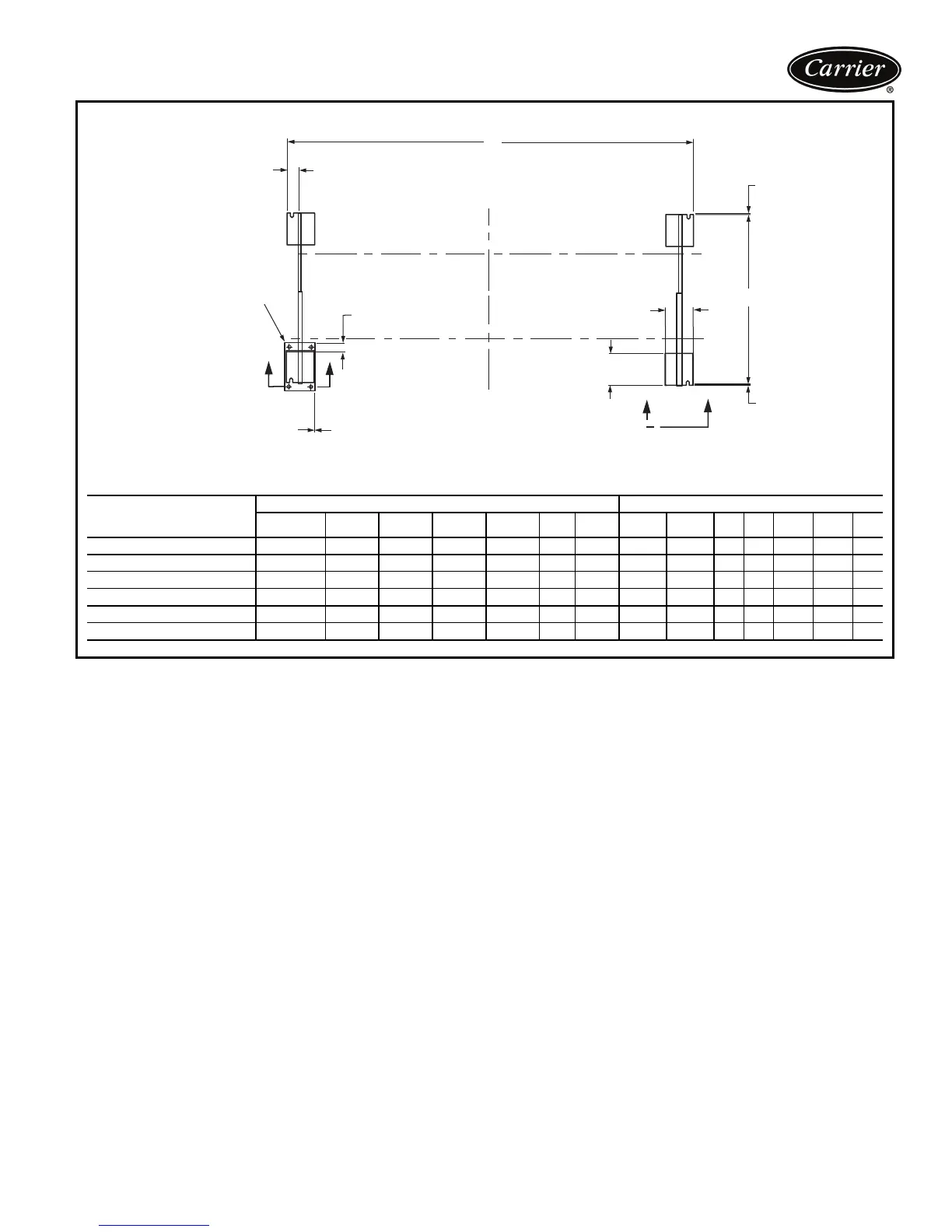
23XRV MACHINE FOOTPRINT
*See detail on page 18.
23XRV
HEAT EXCHANGER
SIZE
DIMENSIONS (ft-in.) DIMENSIONS (mm)
A BCDEFGABCDEFG
30-32 12-10
3
/
4
5-4
1
/
4
0 0-3
5
/
8
1-1
3
/
4
0-9 0-
1
/
2
3931 1632 0 92 349 229 13
35-37 14- 7
1
/
4
5-4
1
/
4
0 0-3
5
/
8
1-1
3
/
4
0-9 0-
1
/
2
4451 1632 0 92 349 229 13
40-42 12-10
3
/
4
6-0 0-1
1
/
2
0-3
5
/
8
1-1
3
/
4
0-9 0-
1
/
2
3931 1829 38 92 349 229 13
45-47 14- 7
1
/
4
6-0 0-1
1
/
2
0-3
5
/
8
1-1
3
/
4
0-9 0-
1
/
2
4451 1829 38 92 349 229 13
50-52 12-10
3
/
4
6-5
1
/
2
0-
1
/
2
0-3
5
/
8
1-1
3
/
4
0-9 0-
1
/
2
3931 1969 13 92 349 229 13
55-57 14- 7
1
/
4
6-5
1
/
2
0-
1
/
2
0-3
5
/
8
1-1
3
/
4
0-9 0-
1
/
2
4451 1969 13 92 349 229 13
a23-1650
910

Related product manuals