EasyManua.ls Logo

Carrier RBM-Y0613FUL - 2. WIRING DIAGRAM; 2-1. Outdoor Unit Wiring Diagram

Carrier RBM-Y0613FUL
288 pages
To Next Page IconTo Next Page
To Next Page IconTo Next Page
To Previous Page IconTo Previous Page
To Previous Page IconTo Previous Page
Loading...
– 25
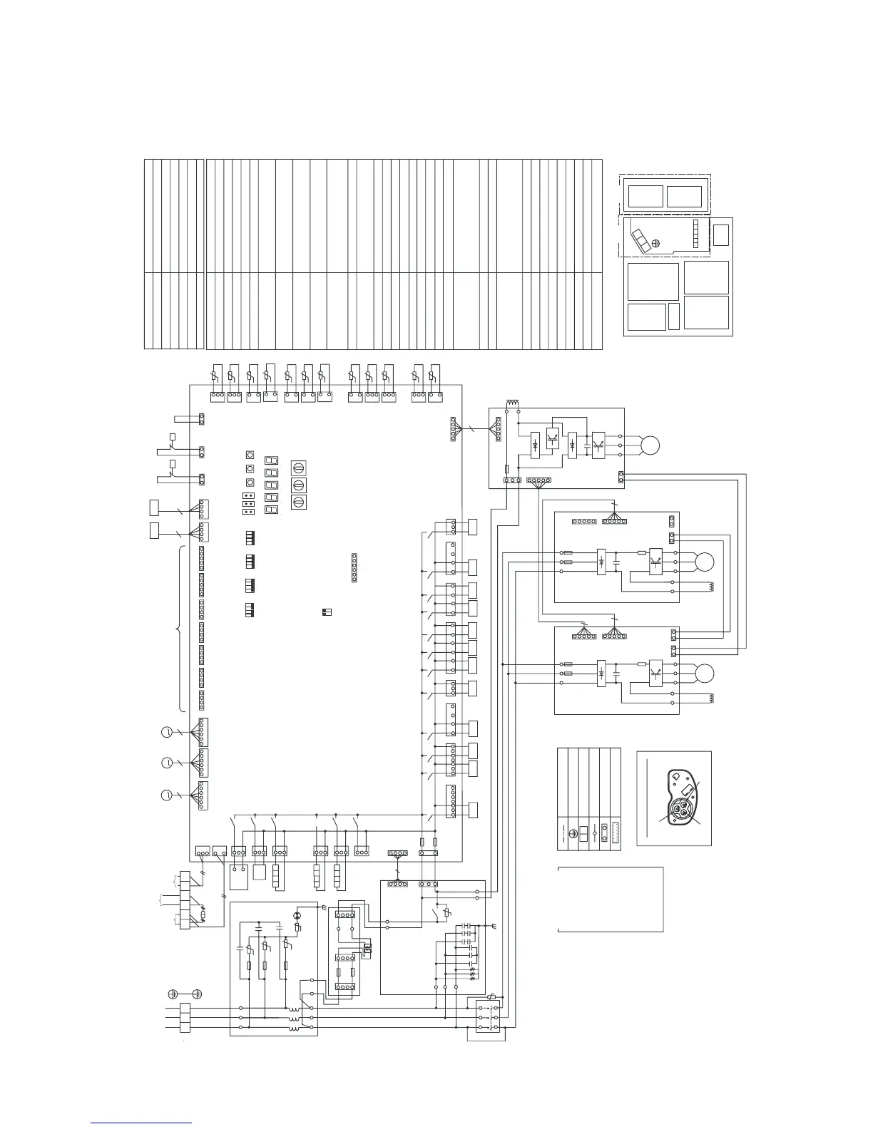
2. WIRING DIAGRAM
2-1. Outdoor Unit
Model: MMY-MAP0724FT9UL
····································
····································
····································
····································
····································
····································
····································
····································
····································
····································
····································
····································
····································
····································
····································
····································
····································
····································
····································
····································
····································
····································
····································
····································
····································
····································
····································
····································
····································
····································
····································
····································
····································
····································
····································
····································
····································
····································
····································
····································
····································
····································
····································
····································
····································
····································
····································
····································
····································
····································
····································
····································
····································
····································
····································
····································
····································
····································
····································
····································
··································
··································
··································
··································
··································
··································
··································
··································
··································
··································
··································
··································
··································
··································
··································
··································
··································
··································
··································
··································
··································
··································
··································
··································
··································
··································
··································
··································
··································
··································
····································
····································
····································
····································
····································
····································
····································
····································
····································
····································
····································
····································
····································
····································
····································
····································
····································
····································
····································
····································
····································
····································
····································
····································
····································
····································
····································
····································
····································
····································
····································
····································
····································
····································
····································
····································
····································
····································
····································
····································
····································
····································
····································
····································
····································
····································
····································
····································
····································
····································
····································
····································
····································
····································
····································
····································
····································
····································
····································
····································
··································
··································
··································
··································
··································
··································
··································
··································
··································
··································
··································
··································
··································
··································
··································
··································
··································
··································
··································
··································
··································
··································
··································
··································
··································
··································
··································
··································
··································
··································
····································
····································
····································
····································
····································
····································
····································
····································
····································
····································
····································
····································
····································
····································
····································
····································
····································
····································
····································
····································
····································
····································
····································
····································
····································
····································
····································
····································
····································
····································
····································
····································
····································
····································
····································
····································
····································
····································
····································
····································
····································
····································
····································
····································
····································
····································
····································
····································
····································
····································
····································
····································
····································
····································
····································
····································
····································
····································
····································
····································
··································
··································
··································
··································
··································
··································
··································
··································
··································
··································
··································
··································
··································
··································
··································
··································
··································
··································
··································
··································
··································
··································
··································
··································
··································
··································
··································
··································
··································
··································
····································
····································
····································
····································
··································
··································
····································
····································
····································
····································
··································
··································
····································
····································
····································
····································
··································
··································
···
···
···
···
···
···
···
···
···
····································
····································
····································
····································
····································
····································
····································
····································
····································
····································
····································
····································
····································
····································
····································
····································
····································
····································
····································
····································
····································
····································
····································
····································
····································
····································
····································
····································
····································
····································
··································
··································
··································
··································
··································
··································
··································
··································
··································
··································
··································
··································
··································
··································
··································
··································
··································
··································
··································
··································
··································
··································
··································
··································
··································
··································
··································
··································
··································
··································
··································
··································
··································
··································
··································
··································
··································
··························
··························
··························
··························
··························
··························
··························
··························
··························
··························
··························
··························
·······································
·······································
·······································
·······································
·······································
·······································
·······································
·······································
·······································
·······································
·······································
·······································
·······································
·······································
·······································
·······································
·······································
·······································
·······································
·······································
·······································
·······································
·······································
·······································
·······································
·······································
·······································
·······································
·······································
·······································
·······································
·······································
L-CM2
CN20
(WHI)
Connector for optional P.C.BOARD
CN510
3
SW07
MCC-1596
MCC-1625A
MCC-1625B
MCC-1625C
BLK
RED
WHI
WHI
BLK
RED
RB
CN13
CN11
CN12
CN31
CN32
CN33
CN43
CN51
CN52
BLK
BRW
CN42
CN41
RED
RED
RED
WHI
WHI
PUR
F01
F02
F03
BLK
RED
T
B1
WHI
L1
L2
L3
POWER SUPPLY
3N ~ 60Hz 460V
CN22
(RED)
CN23
CN24
RED
BLK
WHI
RED
GRY
CN50
(BLK)
4
F02
(BLK)
(WHI)
CN400
CN530
F01
CM1
CN203
CN202
CN201
CN20
CN19
L-CM1
V
U
MS
3~
W
+
-
+
+
-
-
CN19
(WHI)
CN852
5
5
F02
1
SV41
MCC-1596
CN12
F01
CN11
CN13
CN312
(BLU)
SV51
SV42
(RED)
CN851
357
CN314
(WHI)
12
CN311
(WHI)
MCC-1606
U
U
TB2
CN-R
U1
U2
U3
(RED)
A.HEATER
CN334
HEATER1
HEATER2
CN335
CN331
1
3
1
3
(GR
(WHI)
CN332
1
1
3
(BLU)
4WV1
U4 U5 U6
(BLU)
CN01
CN317
1
3
2
1
(BLU)
(WHI)
CN03
2
1
To 
Indoor Unit
To 
Outdoor unit
To 
Central Controller
(WHI)
CN300
2
CN301
1
4
(WHI)
3
6
5
1
3
2
ON
SW30
1
OFF
2
CN508
ON
OFF
4
6
5
(RED)
4
SW06
2
1
3
ON
OFF
2
1
(BLK)
CN509
PMV1
M
PMV2
M
SW01,SW02,SW03
SW06, SW07, SW09, SW10,
SW11, SW12, SW13, SW14,
SW16, SW17, SW30
CN**
F01,F02
SW04,SW05,SW15
SV3D,SV3E,SV41,SV42
SV2,SV3A,SV3B,SV3C
PMV1,PMV2
PMV4
RB
4WV1
CN-R
FM
TD1,TD2
TE1, TE2
PD
Mg-CTT Magnet contactor
PS
HEATER1, HEATER2
L-CM1,L-CM2
L-FM
A.HEATER
(MCC-1596)
(MCC-1606)
F01,F02
(MCC-1610)
F500
(MCC-1625A)
F01, F02, F03
MCC-1625B
MCC-1596
MCC-1625
A
MCC-1610
MCC-1606
P.C.Board
63H1,63H2
CM1,CM2
TB1
TB2
TS1, TS2
TO
TL1
TK1,TK2,TK4,TK5
SV51,SV61, SV11A,SV14
1
CN600
CN504
-
FM
CN201
CN202
CN203
CM2
V
3~
MS
U
W
+
-
+
+
-
-
5
CN101
(WHI)
CN101
(WHI)
CN102
(BLU)
CN102
(BLU)
(WHI)
CN852
WHI
RED
U
MS
3~
BLK
WHI
RED
BLK
WHI
RED
BLK
WHI
RED
BLK
WHI
RED
BLK
W
V
+
CN705
+
CN704
CN703
-
CN322
SV3A
SV3B
SV3CSV2
F02
CN12
CN11
F01
CN13
(RED)
CN851
4
(WHI)
CN321
13 1 52 36
SV3E
SV3D
F500
MCC-1610
(RED)
CN505
CN500
(WHI)
+
21
(WHI)
34
V
U
TK2
TK4
TK5
Compressor terminal
Color indication
RED:RED
WHI:WHITE
YEL:YELLOW
BLU:BLUE
BLK:BLACK
GRY:GRAY
PNK:PINK
ORN:ORANGE
BRN:BROWN
GRN:GREEN
5
L-FM
CN510
-
(BLU)
CN511
W
1
(BLU)
(RED)
CN535
2
(GRN)
CN532
(YEL)
CN534
3
1
3
(WHI)
CN500
*1
CN513
CN31
CN30
D600
(BLU)
SWRT
(Service)
CN800
OFF
1
SW09
ON
4
OFF
ON
4
2
3
(GRN)
CN511
SW10
3
1
2
4
(BLU)
CN512
D603
SW03SW02SW01
D601
D602
D604
SW05
CN32
SW04
(GRN)
CN514
SW15
(RED)
CN501
1
4
3
3
PD
TD1
TD2
TO
TE1
TL1
TK1
(BLK)
(WHI)
CN531
CN523
2
1
3
1
(YEL)
CN520
CN507
2
(GRN)
2
1
1
1
(PNK)
(WHI)
CN502
CN503
3
1
3
2
3
4
3
t˚
t˚
t˚
t˚
t˚
t˚
t˚
t˚
t˚
t˚
PS
Reactor for fan
Terminal block(control wiring)
TR
Transformer
Pulse motor valve(main)
Pulse motor valve(sub)
Rush current protect resistor
Pipe temp.sensor(discharge)
Heat exchange temp.sensor
Terminal block(power supply)
Push button switch
Rotary switch
Dip switch
Oil temp.sensor
Liquid temp.sensor
Air temp.sensor
2-way valve coil
Pressure sensor(High)
Pressure sensor(Low)
Pipe temp.sensoer(suction)
Accumulator case heater
Inverter P.C.Board(Compressor)
Inverter P.C.Board(Fan)
Interface Control P.C.Board
Noise filter P.C.Board A
Noise filter P.C.Board B
MCC-1625C
Connection P.C.Board B
Connector
31.5 A 500V~
High pressure switch
Fan motor
Compressor case heater
Fuse(Compressor)
Fuse(Interface)
Fuse(Noise filter)
T6.3
A
250V~
Fuse(Fan)
T15A 250V~
Fuse(Transformer)
T8A 600V~
T6.3A 250V~
Compressor
Relay connector
4-way valve coil
Reactor for compressor
Symbol
Parts name
Symbol
Parts name
Field wiring
Protective earth
Terminal block
P.C.board
Connector
Terminal
U6
TB1
L
3
L
1
L
2
U4U2 U3
TB2
U1 U5
MCC-1606
MCC-1596
(CM2)
MCC-1596
Mg-CTT
(CM1)
MCC-1610
MCC-1625C
Parts layout
*Noise filter P.C.Bosrds are installed
on a back of terminal block.
TS2
1
(BLK)
CN506
2
63H1
P>P>P>
(RED)
CN305
(RED)
CN307
63H2
P>P>P>
(RED)
CN306
Mg-CTT
coil
CN304
1
3
(RED)
A1
A2
CN502
(WHI)
2T1
4T2
6T3
1L1
3L2
5L3
Mg-CTT
BLK
U
U
CN73
(WHI)
CN74
(WHI)
CN72
(WHI)
1
4
1
4
1
4
F70
CN71
220V
460V
CN70
F71
TR
CN56 CN54
(MCC-1625C)
F70, F71
MCC-
1625A
MCC-
1625B
Flont
Back
····································
····································
····································
····································
····································
····································
····································
····································
····································
····································
····································
····································
····································
····································
····································
····································
····································
····································
····································
····································
····································
····································
····································
····································
····································
····································
····································
····································
····································
····································
····································
····································
····································
····································
····································
····································
····································
····································
····································
····································
····································
····································
····································
····································
····································
····································
····································
····································
····································
····································
····································
····································
····································
····································
····································
····································
····································
····································
····································
····································
····································
····································
····································
····································
··············
··············
··············
··············
··············
··············
··············
··············
··············
··············
··············
··············
··············
············
············
············
············
············
············
············
············
············
············
············
············
············
············
············
············
············
············
············
············
············
············
············
············
··········
··········
··········
··········
··········
··········
··········
··········
··········
········
········
········
········
········
········
········
········
········
········
········
········
········
········
2
CN303
1
4
(RED)
3
6
5
PMV4
M
t˚
TS1
1
(WHI)
CN505
2
TE2
CN521
(RED)
2
1
t˚
1
SV61
CN315
(WHI)
357
CN319
SV11A
21
(WHI)
CN336(YEL)
SV14

Table of Contents

Related product manuals