EasyManua.ls Logo

Carrier WEATHERMAKER 48A3 - Gas and Electrical Connections; Gas Piping Installation Requirements; Electrical Connection Procedures

Carrier WEATHERMAKER 48A3
36 pages
To Next Page IconTo Next Page
To Next Page IconTo Next Page
To Previous Page IconTo Previous Page
To Previous Page IconTo Previous Page
Loading...
18
Step 7 — Install Gas Piping — Unit is equipped for
use with natural gas. Installation must conform with local
building codes or, in the absence of local codes, with the Na-
tional Fuel Gas Code, ANSI Z223.1.
Install manual gas shutoff valve with a
1
/
8
-in. NPT pressure
tap for test gage connection at unit. Field gas piping must in-
clude sediment trap and union. See Fig. 18. An
1
/
8
-in. NPT is
also located on the gas manifold adjacent to the gas valve.
Size gas-supply piping for 0.5-in. wg maximum pressure
drop. Do not use supply pipe smaller than unit gas connection.
OPTIONAL STAGED GAS UNITS — See Table 7 for staged
gas information. Staging pattern is selected during controls
start-up.
For complete information and service instructions for
staged gas control units, see Control Operation and Trouble-
shooting literature.
Step 8 — Make Electrical Connections
POWER WIRING Units are factory wired for the voltage
shown on the unit nameplate.
Provide a unit safety disconnect switch in the main power
supply to each unit (see Fig. 19). Select switch size and mount-
ing location in accordance with applicable local codes or
National Electrical Code (NEC). If combining the functions of
safety disconnect with maximum overcurrent protection
(MOCP) fuses (“fused disconnect”), coordinate safety switch
size with MOCP size data as marked on unit informative plate.
Unit may be equipped with optional factory-installed non-
fused disconnect switch (see Fig. 19). Provide maximum
overcurrent protection devices (fuses or HACR breakers, per
local codes) in branch circuit wiring remote from unit. Observe
requirements of NEC Article 440. Install service switch
upstream of remote fuses if required.
The main power terminal block is suitable for use with
aluminum or copper wire. See Fig. 19. Units have circuit
breakers for compressors, fan motors, and control circuit. The
unit must be electrically grounded in accordance with local
codes, or in absence of local codes, with NEC, ANSI C1-latest
year.
WARNING
Do not pressure test gas supply while connected to unit.
Always disconnect union before servicing. Personal injury
or damage to unit may occur.
IMPORTANT: Natural gas pressure at unit gas connection
must not be less than 5 in. wg or greater than 13.5 in. wg.
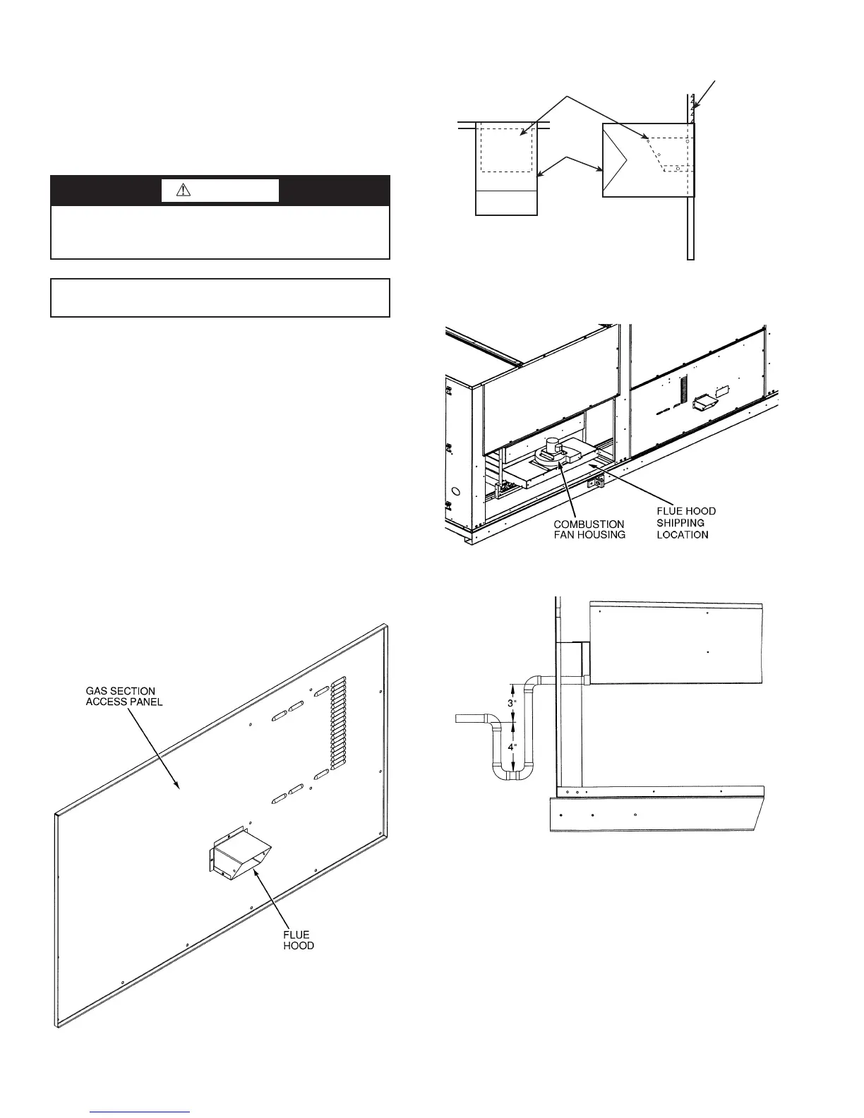
Fig. 14 — Flue Hood Location
(48A2,A3,A4,A5020-050 Units)
a48-3712
FLUE HOOD
GAS SECTION
ACCESS PANEL
WIND
BAFFLE
TOP VIEW SIDE VIEW
Fig. 15 — Flue Hood Location
(48A2,A3,A4,A5060 Units)
a48-4076
Fig. 16 — Combustion Fan Housing Location
(48A2,A3,A4,A5020-050 Shown)
a48-3823
Fig. 17 — Condensate Drain Trap Piping Details
(Typical Roof Curb or Slab Mount Shown)
a48-3714

Related product manuals