EasyManua.ls Logo

cellarking CX - CX(E) Electrical Fuses; CX(E) Wiring Diagram; CKC Installation; CKC Mounting

cellarking CX
23 pages
Print Icon
To Next Page IconTo Next Page
To Next Page IconTo Next Page
To Previous Page IconTo Previous Page
To Previous Page IconTo Previous Page
Loading...
9/23
55908014-06
CKC INSTALLATION
FUSES
COOL ONLY
WITH ELECTRIC
HEATER
SYSTEM
1PH 3PH 1PH 3PH
CX(E) 30
16A - 16A -
CX(E) 40
20A - 20A -
CX(E) 50
20A - 20A -
CX(E) 70
20A 20A/PH 32A 20A/PH
Note: On 3 ph systems the supply must go to the CKC outdoor unit and then to the CX(E) indoor unit.
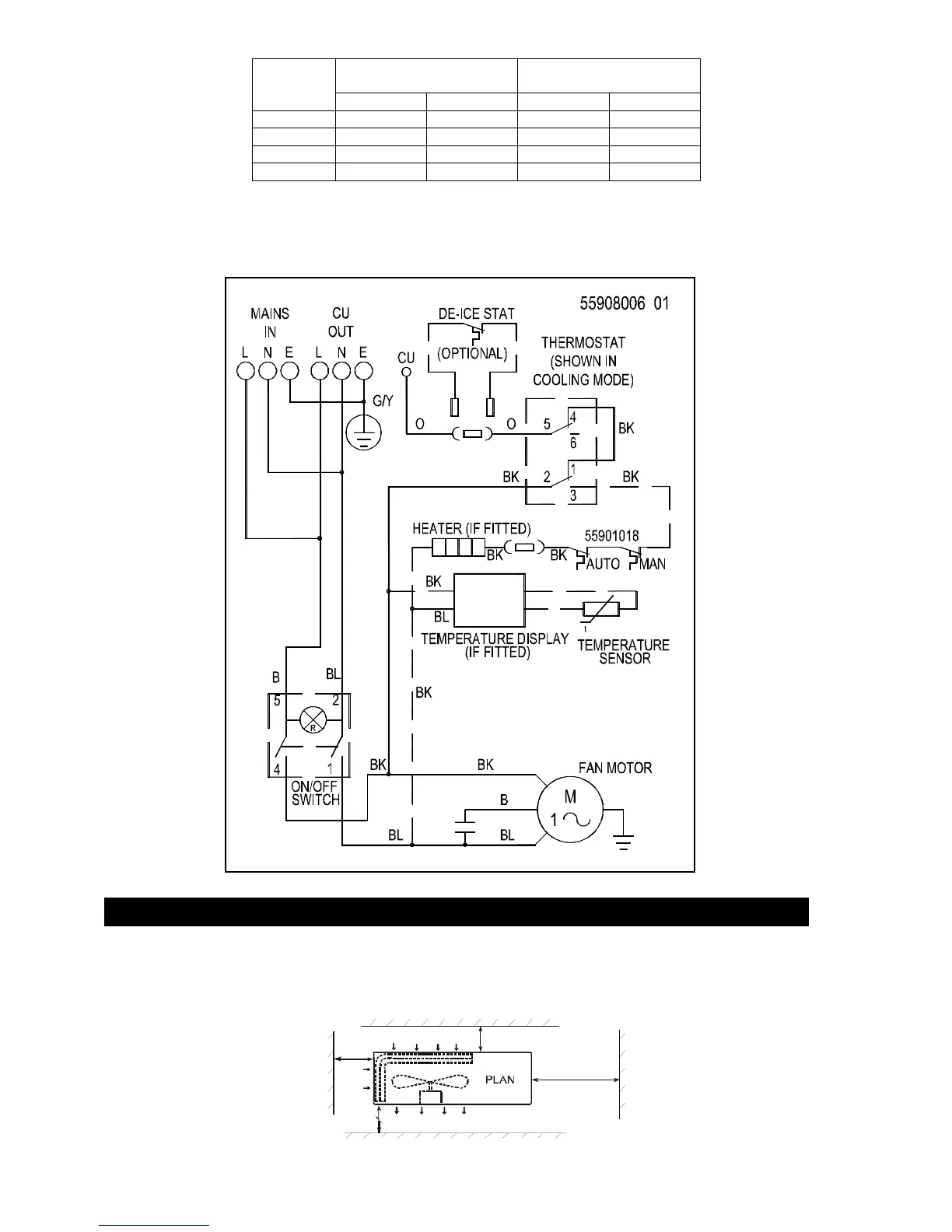
WIRING DIAGRAM
MOUNTING
Whether floor or wall mounted, it is essential that the mounting surface is capable of supporting the unit
weight. Leave space around the unit for air circulation and access for installation and maintenance.
1500 min air off
100 min
100 min
600 min