EasyManua.ls Logo

Cetron JEC1758 - Page 83

Default Icon
Print Icon
To Next Page IconTo Next Page
To Next Page IconTo Next Page
To Previous Page IconTo Previous Page
To Previous Page IconTo Previous Page
Loading...
83
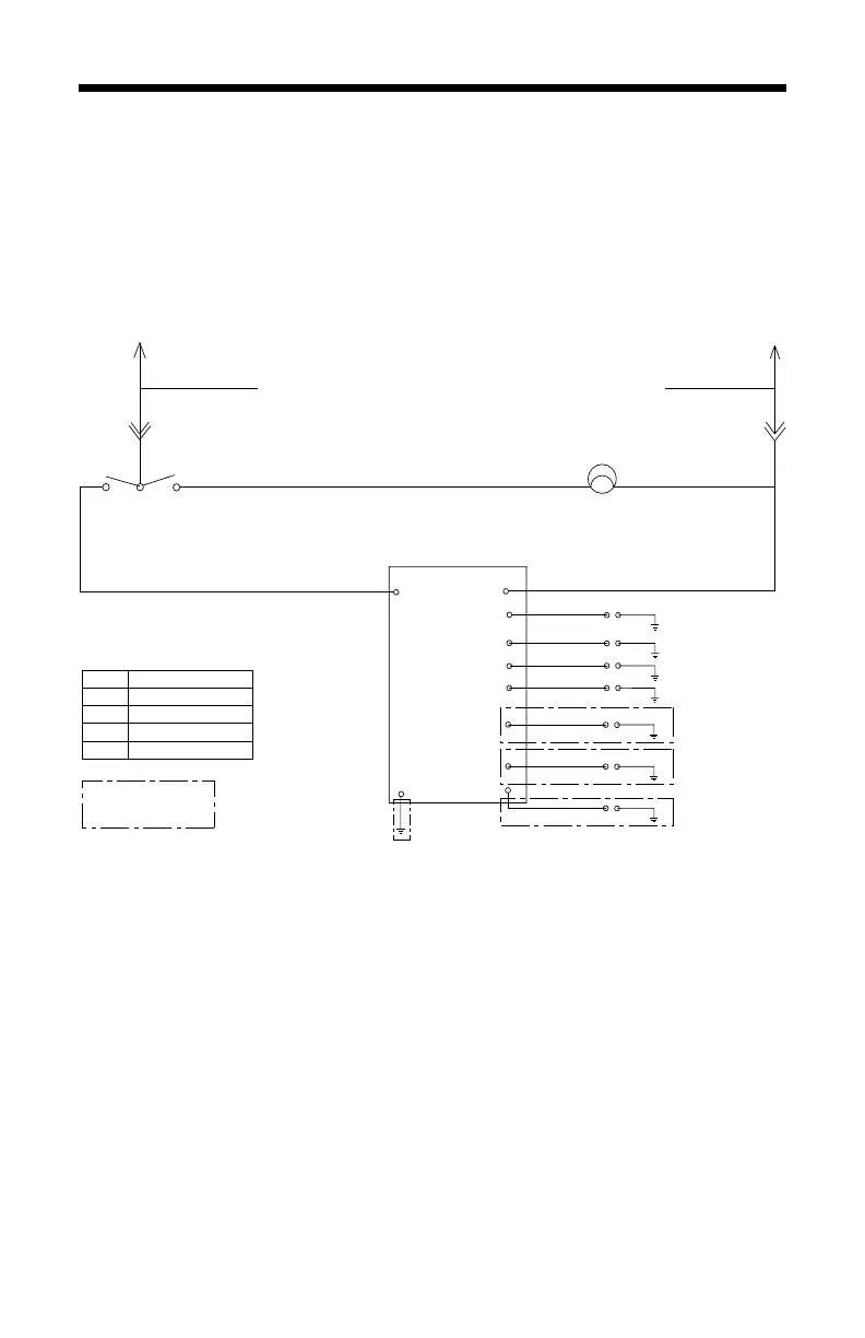
399B1280P001 Wiring Diagram
(See features by model chart, at the end of the manual.)
WARNING: DISCONNECT THIS APPLIANCE FROM POWER
SOURCE BEFORE PERFORMING ANY TYPE OF SERVICE.
PARA OBTENER LA CLASIFICACIÓN
ELÉCTRICA, REFIÉRASE A LA PLACA
DE IDENTIFICACIÓN
TO OBTAIN ELECTRICAL
RETING REFER TO
IDENTIFICATION PLATE
L
RX
INTERRUPTOR BUJÍA / LUZ HORNO
SPARK SWITCH / OVEN LIGHT SWITCH
OX
LUZ HORNO/
OVEN LIGHT
WX
RX/WX
N
WX
RX/WX
RX/WX
RX/WX
RX/WX
VX
LN
RX/WX
WX
399B1280P001
COLOR
ROJO/RED
BLANCO/WHITE
NARANJA/ORANGE
VIOLETA/VIOLET
SIMB.
RX
WX
OX
VX
ALGUNOS MODELOS/
NOT IN ALL MODELS

Related product manuals