EasyManua.ls Logo

Chappee EDENA CLASSIC E 35 - Site Requirements

Chappee EDENA CLASSIC E 35
24 pages
Print Icon
To Next Page IconTo Next Page
To Next Page IconTo Next Page
To Previous Page IconTo Previous Page
To Previous Page IconTo Previous Page
Loading...
8Réf. : CH - 1254 - I - 0 - EN
6.0 SITE REQUIREMENTS
6.1 B.S. Codes of Pracitice
WARNING : The addition of anything that may interfere
with the normal operation of the appliance without the
express written permission of BAXI could invalidate
the appliance warranty and infringe the GasSafety
(Installation and Use) Regulations.
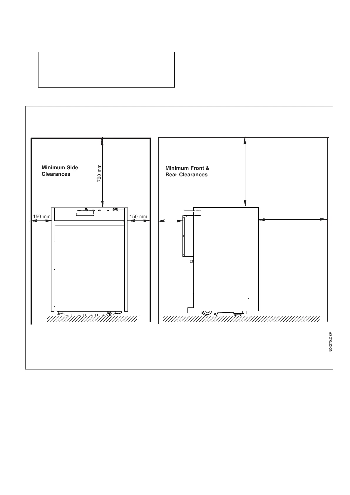
700 mm
200 mm
700 mm
123456789012345678901234567890121234567890123456789
1
2345678901234567890123456789012123456789012345678
9
123456789012345678901234567890121234567890123456789
Minimum Front &
Rear Clearances
700 mm
150 mm 150 mm
Minimum Side
Clearances
123456789012345678901234567890
1
2345678901234567890123456789
0
123456789012345678901234567890
N04270.DSF

Related product manuals