EasyManua.ls Logo

CHIEF AA Series - Page 16

CHIEF AA Series
20 pages
Print Icon
To Next Page IconTo Next Page
To Next Page IconTo Next Page
To Previous Page IconTo Previous Page
To Previous Page IconTo Previous Page
Loading...
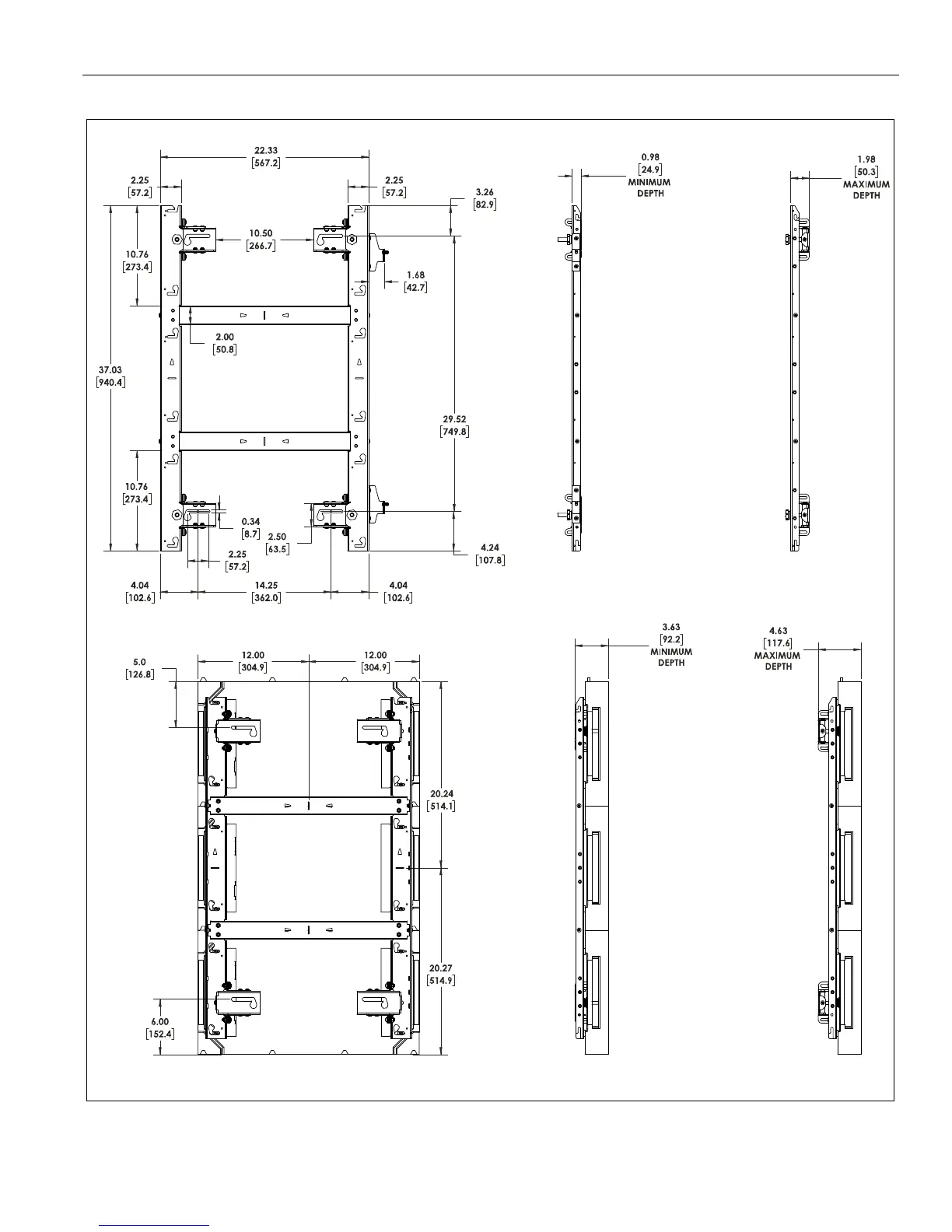
Installation Instructions TIL1X2AA / TIL1X3AA / TIL1X4AA / TILVABAA
16
DIMENSIONS...cont’d
TIL1X3AA
DIMENSIONS: INCHES
[MILLIMETERS]

Related product manuals