EasyManua.ls Logo

CHIEF MWH - Mounting Pattern; Tilt Adjustment

CHIEF MWH
12 pages
Print Icon
To Next Page IconTo Next Page
To Next Page IconTo Next Page
To Previous Page IconTo Previous Page
To Previous Page IconTo Previous Page
Loading...
MWH Installation Instructions
4
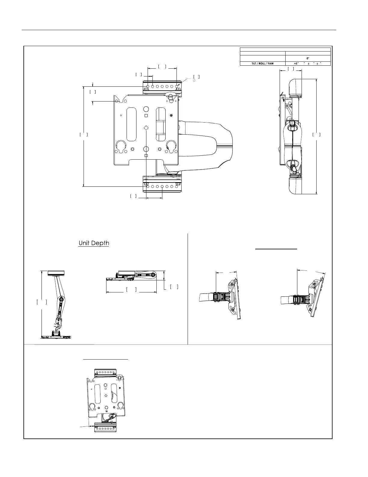
DIMENSIONS
Figure 1
24.90
632
3.43
87
18.61
473
B
15°
C
2.5°
Tilted DownTilted Up
Extended
Retracted
Tilt Adjustment
Roll Adjustment
.75
19
4.50
114
2.51
64
2.30
58
15.65
397
.39
10
18.00
457
3.43
87
ALL MEASUREMENTS ARE IN
THE FOLLOWING FORMAT:
[MILLIMETERS]
INCHES
Mounting Pattern
PRODUCT FEATURES
WEIGHT CAPACITY 100 LBS
HEIGHT ADJUSTMENT
,-15
/
2.5
/
NOTE: CUSTOM INTERFACE BRACKET
NOT SHOWN. THE CUSTOM INTERFACE
BRACKET NEEDED FOR YOUR DISPLAY
WILL ADD BETWEEN 1/2" AND 2" IN DEPTH
AND MAY AFFECT LOCATION OF DISPLAY
ON THE MOUNT.
SEE MSB-XXXX DRAWING ALSO.

Related product manuals