EasyManua.ls Logo

CHINT NVF5-1.5/TS4-B - Page 57

CHINT NVF5-1.5/TS4-B
148 pages
To Next Page IconTo Next Page
To Next Page IconTo Next Page
To Previous Page IconTo Previous Page
To Previous Page IconTo Previous Page
Loading...
NVF5 Series User Manual Chapter 6 Parameter Function Description
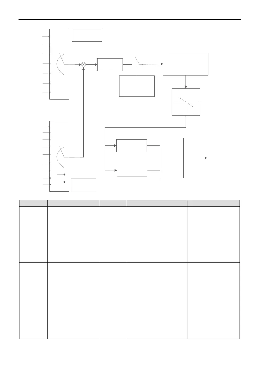
F9.00
PID ref. source
selection
0
1
2
3
+
-
4
5
6
F9.02
AI1
AI2
Reserved
HDI
Comm.
command
Multi-segment
command
F9.01
feedback channel
selection
0
1
2
3
4
5
6
AI1
AI2
Reserved
AI1+AI2
AI1-AI2
MIN(AI1,AI2)
MAX(AI1,AI2)
7
8
HDI
Comm.
command
5
6
F9.15
close loop
adjust feature
PID pause
DI1DI4 function 43
PID offset limit
PID offsetF9.10
PID para. switch
para.1F9.03F9.05
para.2F9.17F9.19
switch conditionF9.20
F9.22
F9.14
(close loop output
reserve selection)
F0.02=7
Main Frequency
PID input
F0.03=7
Aux. Frequency
PID input
F0.04
Main and
Aux.
frequency
calculation
Frequency
command
Figure 6-2-7 Process PID Main Frequency Setting
Code
Name
Default
Setting Range
Description
F9.00
PID Reference
Selection
1
0 6
0
Digital Given
1AI1
2
AI2
3
Reserve
4
HDI
5
Reserve
6
Preset Speed
F9.01
Feedback
Selection
1
0 6
0AI1
1AI2
2Reserve
3AI1+AI2
4AI1-AI2
5MINAI1,AI2
6MAXAI1,AI2
7HDI
- 53 -

Table of Contents

Other manuals for CHINT NVF5-1.5/TS4-B

Related product manuals