EasyManua.ls Logo

Cisco ASR 9910 - Page 123

Cisco ASR 9910
284 pages
To Next Page IconTo Next Page
To Next Page IconTo Next Page
To Previous Page IconTo Previous Page
To Previous Page IconTo Previous Page
Loading...
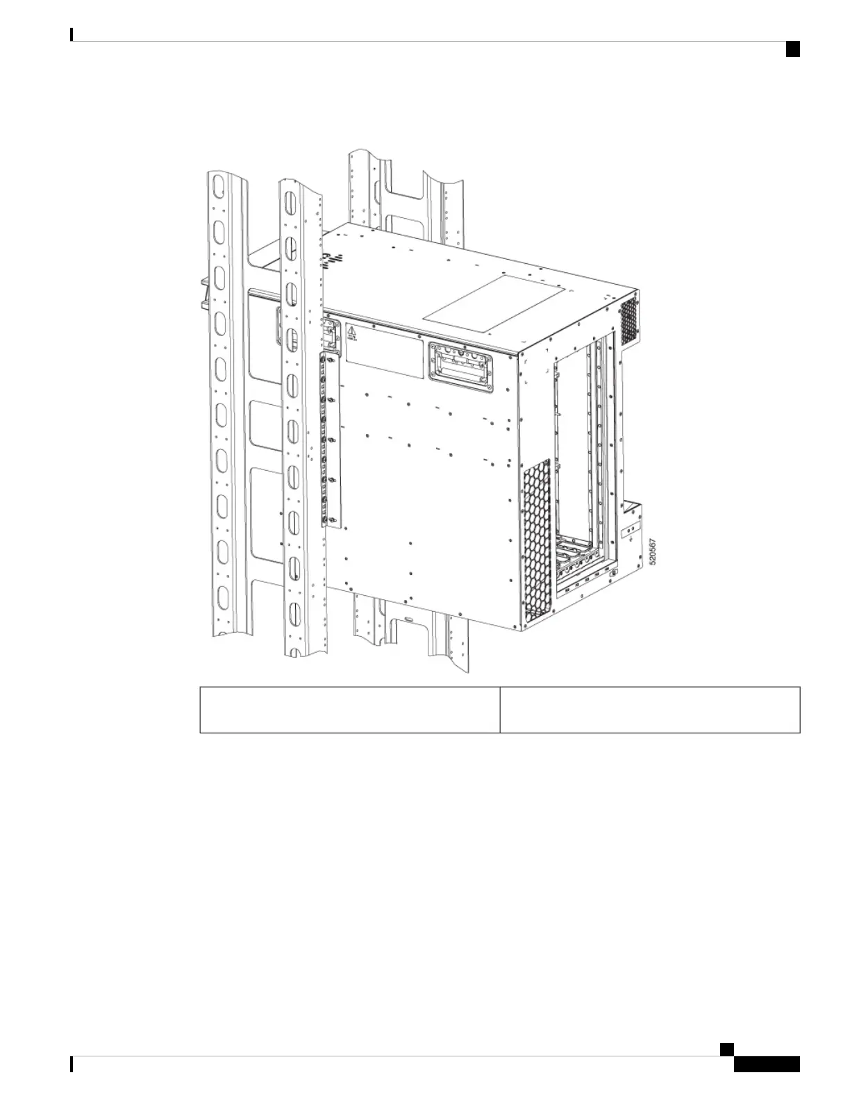
Figure 115: Installing the Cisco ASR 9906 Router Chassis in a Seismic 2-Post Rack
Five screws per side (minimum) to attach the router
chassis to the rack.
1
Cisco ASR 9000 Series Aggregation Services Router Hardware Installation Guide
109
Unpacking and Installing the Chassis
Installing the Chassis in a 2-Post Rack

Table of Contents

Other manuals for Cisco ASR 9910

Related product manuals