EasyManua.ls Logo

Clarke MIG110E - MIG 151 TE; MIG 160 EN

Clarke MIG110E
43 pages
Print Icon
To Next Page IconTo Next Page
To Next Page IconTo Next Page
To Previous Page IconTo Previous Page
To Previous Page IconTo Previous Page
Loading...
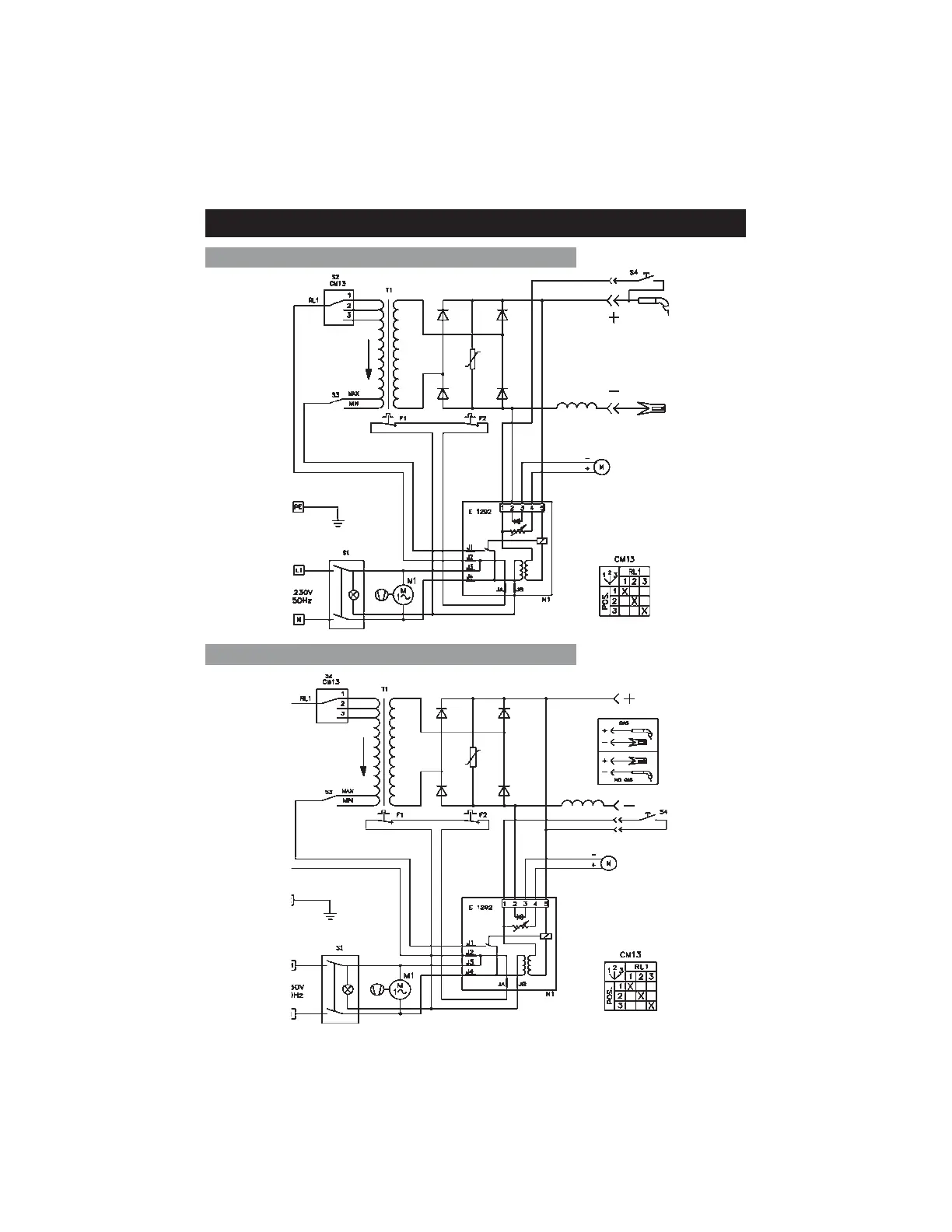
WIRING DIAGRAMS
MIG 151TE
MIG 160EN
29

Related product manuals