EasyManua.ls Logo

ClimaCool FLEX Series - Refrigeration Circuit (Drawings)

Default Icon
50 pages
Print Icon
To Next Page IconTo Next Page
To Next Page IconTo Next Page
To Previous Page IconTo Previous Page
To Previous Page IconTo Previous Page
Loading...
^^^JSPTHJVVSJVYWJVT^^^JSPTHJVVSJVYWJVT
®
34
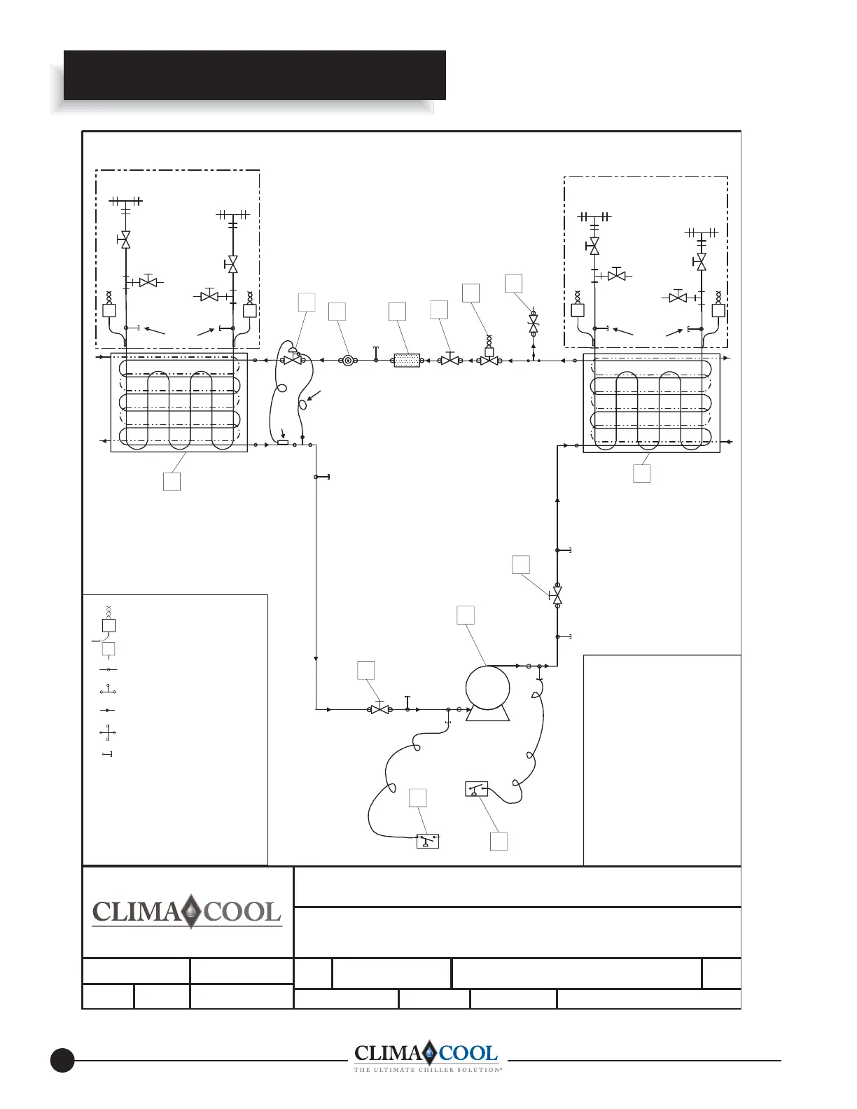
Refrigeration Circuit Diagram
6,=(
&OLPD&RRO&RUS
&&(96'
':*12
&&(96'
5(9
6+((7 2)
7,7/(
5()5,*(5$7,21&,5&8,7',$*5$0
'(6&5,37,21
:&6&52//&+,//(567'5()5,*
5()5,*(5$17&,5&8,72)6+2:1
'$7(
'5$:1%<
0.XMDN
6&$/(
121(
$
),/(1$0(
&&(YVG
5(9,6('
$
$33529('
'$7(

6<0%2/ /(*(1'
7(03(5$785(6(1625
/(*(1',7(0
62/'(5-2,17
7((62/'(5-2,17
5()5,*(5$17)/2:3$7+
&526662/'(5-2,17
35(6685($&&(66),77,1*
///,48,'/,1(
6/68&7,21/,1(
6368&7,2135(6685(
+3+($'35(6685(
7;97+(50$/(;3$16,219$/9(
';',5(&7(;3$16,21
:&:$7(5&22/('
&35&5$1.&$6(35(6685(5(*
6
7;9
%8/%
(48$/,=(5
/,1(
&20321(17 /(*(1'
 6&52//&2035(6625
 ',6&+$5*(%$//9$/9(
 +,*+35(6685(6$)(7<6:
 :&%5$=('3/&21'(16(5
 35(6685(5(/,()9$/9(
 /,48,'/,1(62/9/9237
 /,48,'/,1(%$//9/9
 ),/7(5'5,(5
 02,6785(,1',&$725
 7+(50$/(;3$16,219/9
 :&%5$=('3/(9$325$725
 /2:35(6685(6$)(7<6:
 68&7,21%$//9$/9(
6 &21',1/(77(036(1625
6 &21'287/(77(036(1625
6 (9$3,1/(77(036(1625
6 (9$3287/(77(036(1625




5()5,*(5$17
&,5&8,7
5()5,*(5$17
&,5&8,7
5()5,*(5$17
&,5&8,7
5()5,*(5$17
&,5&8,7
6
)/86+
6+872))
9$/9(
&+,//(5
:$7(5,1/(7
9$/9(
&+,//(5
:$7(5 287/(7
9$/9(
6
6 6
6
&21'(16(5
:$7(53,3,1*
&+,//(5
:$7(53,3,1*
),//
6+872))
9$/9(
&+,//(5 287/(7
:$7(50$,1
)/$1*('
&+,//(5 ,1/(7
:$7(50$,1
)/$1*('
),//
6+872))
9$/9(
&21'(16(5
:$7(5,1/(7
9$/9(
&21'(16(5
:$7(5 287/(7
9$/9(
)/86+
6+872))
9$/9(
&21'(16(5
287/(7
:$7(50$,1
)/$1*('
&21'(16(5
,1/(7
:$7(50$,1
)/$1*('
3(7(6
32576
3(7(6
32576
THE ULTIMATE CHILLER SOLUTION
®
®

Related product manuals