EasyManua.ls Logo

ClimaCool FLEX Series - Page 43

Default Icon
50 pages
Print Icon
To Next Page IconTo Next Page
To Next Page IconTo Next Page
To Previous Page IconTo Previous Page
To Previous Page IconTo Previous Page
Loading...
^^^JSPTHJVVSJVYWJVT
®
41
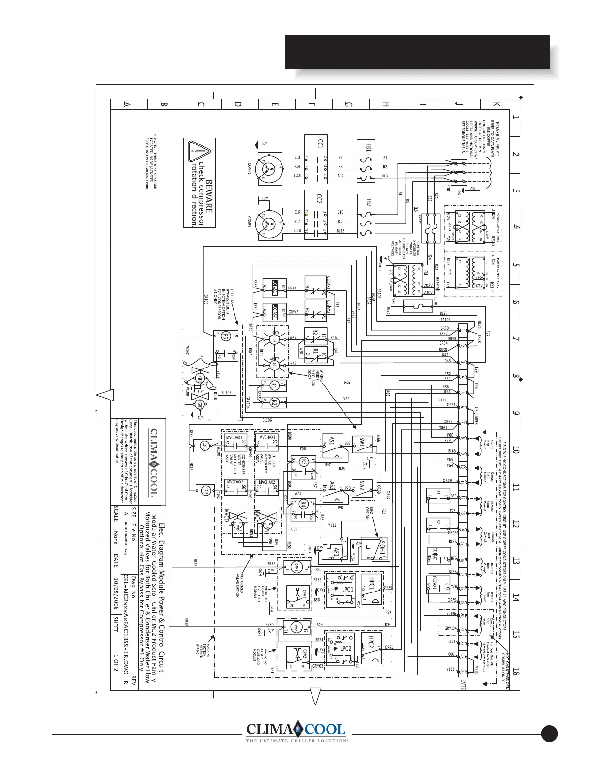
Module Power & Control Circuit
THE ULTIMATE CHILLER SOLUTION
®
®

Related product manuals