EasyManua.ls Logo

CLIVET ELFOSPACEWALL2 - Auxiliary Contacts

CLIVET ELFOSPACEWALL2
41 pages
Print Icon
To Next Page IconTo Next Page
To Next Page IconTo Next Page
To Previous Page IconTo Previous Page
To Previous Page IconTo Previous Page
Loading...
CF
MC2
BK
GY
MC1
MP
FUNZIONE
DEI CONTATTI
AUSILIARI
FUNCTION
OF THE AUXILIARY
CONTACTS
FONCTION
DES CONTACTS
AUXILIAIRES
FUNKTION
DER
HILFSKONTAKTE
FUNCIONES
DE LOS CONTACTOS
AUXILIARES
FUNCTIE
VAN DE
HULPCONTACTEN
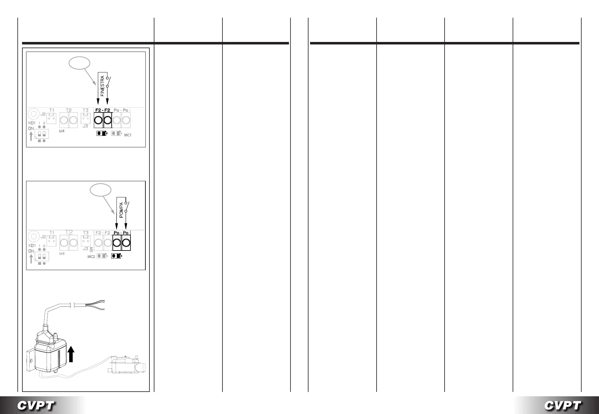
ContattoCF(F2-F2):
- contatto finestra aperta
- sonde presenza persona
- un altro sistema
A contatto chiuso
l’apparecchio funziona.
A contatto aperto
l’apparecchio si ferma.
Se utilizzato,
togliere il Jumper MC2
di chiusura del contatto.
ContattoMP(Po-Po):
Contattoallarmepompa
dievacuazionecondensa
Se utilizzato,
togliere il Jumper MC1
di chiusura del contatto.
Per il montaggio della pompa
di evacuazione condensa
vedere pagina 53.
Eseguire
i collegamenti come
da schema elettrico (Pag. 32).
Contattodell’allarme:
BK = Nero
GY = Grigio
19 19A
ContactCF(F2-F2):
- window open contact
- person presence sensors
- other systems
When the contact is closed
the appliance can operate.
When the contact is openthe
appliance is stopped.
If used,
remove the MC2 Jumper
for contact closure.
ContactMP(Po-Po):
Alarmswitch
condensationpump
If used,
remove the MC1 Jumper
for contact closure.
See page 53 to assemble
the condensate pump.
Make
the connections as indicated
in the wiring diagram (page 32).
Alarmswitch:
BK = Black
GY = Grey
ContactCF(F2-F2):
- contact fenêtre ouverte
- sonde détection de présence
- autre système
Contact fermé
l’appareil fonctionne.
Contact ouvert
l’appareil s’arrête.
Si utilisé,
enlever le cavalier MC2
de fermeture du contact.
ContactMP(Po-Po):
Contactd’alarmedelapompe
d’evacuationdescondensats
Si utilisé,
enlever le cavalier MC1
de fermeture du contact.
Pour le montage de la pompe
d'évacuation de la condensation,
voir la page 53.
Effectuer
les branchements en suivant
le schéma électrique (Page 32).
Contactd’alarme:
BK = Noir
GY = Gris
KontaktCF(F2-F2):
- Kontakt für offenes Fenster
- Personalanwesenheitsmelder
- anderem System
Bei geschlossenem Kontakt
funktioniert das Gerät.
Bei offenem Kontakt schaltet
sich das Gerät aus.
Falls verwendet, ist der
Jumper MC2 für den Verschluss
des Kontakts zu entfernen.
KontaktMP(Po-Po):
Alarmschalter
kondensatpumpe
Falls verwendet, ist der
Jumper MC1 für den Verschluss
des Kontakts zu entfernen.
Zur Montage der Kondensat-
Evakuierungspumpe
siehe S. 53.
Anschlüsse gemäß
Schaltplan vornehmen (S. 32).
Alarmschalter:
BK = Schwarz
GY = Grau
ContactoCF(F2-F2):
- contacto ventana abierta
- sonda presencia persona
- otro sistema
Con el contacto cerrado
el aparato funciona.
Con el contacto abierto
el aparato se para.
Si se ha utilizado,
quitar el Jumper MC2 de cierre
del contacto.
ContactoMP(Po-Po):
Contactodealarmadelabomba
deevacuatióndecondensados
Si se ha utilizado,
quitar el Jumper MC1 de cierre
del contacto.
Para montar la bomba
de evacuación de condensados
consulte la página 53.
Realice las conexiones
como se indica en el esquema
eléctrico en la (Pág.32).
Contactodelaalarma:
BK = Negro
GY = Gris
KontaktCF(F2-F2):
- contact open raam
- sonde aanwezigheid persoon
- ander systeem
Bij gesloten contact werkt
het apparaat.
Bij open contact stopt
het apparaat.
Verwijder, indien gebruikt,
de Jumper MC2 voor
het afsluiten van het contact.
KontaktMP(Po-Po):
AlarmKontakt
condenswaterpomp
Verwijder, indien gebruikt,
de Jumper MC1 voor
het afsluiten van het contact.
Voor de montage van
de pomp voor condensevacuatie
raadpleegt men pagina 53.
De aansluitingen
volgens het elektrische schema
uitvoeren (pag. 32).
Alarmkontakt:
BK = Zwart
GY = Grijs