EasyManua.ls Logo

CLIVET WSAT-XIN 71 - Elfoenergy Extended Inverter 81-91-101

CLIVET WSAT-XIN 71
68 pages
Print Icon
To Next Page IconTo Next Page
To Next Page IconTo Next Page
To Previous Page IconTo Previous Page
To Previous Page IconTo Previous Page
Loading...
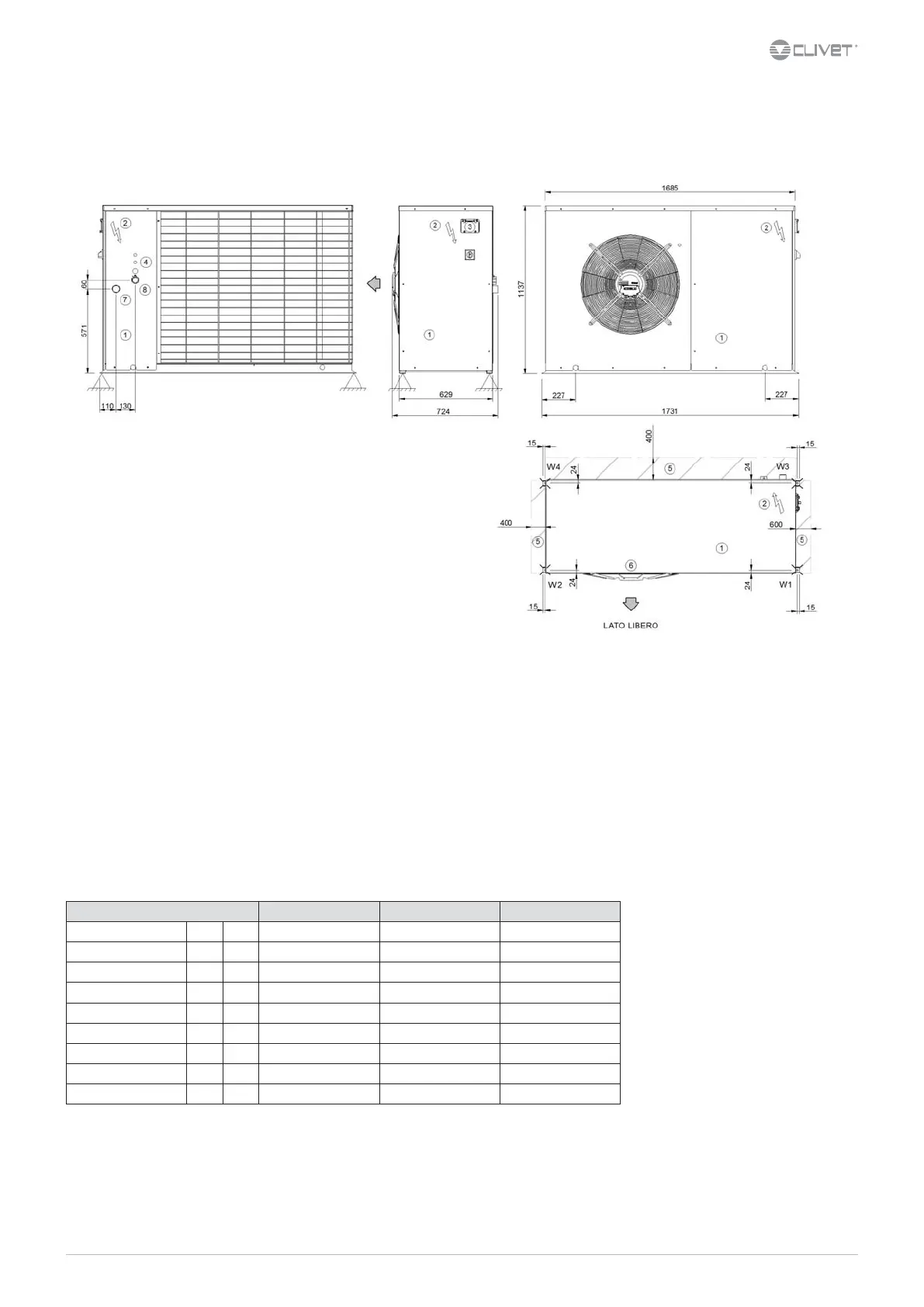
Dimensional drawings - PREMIUM Version
ELFOEnergy Extended Inverter 81-91-101
1. Compressor compartment
2. Electrical panel
3. Unit control keypad
4. Power input
5. Functional spaces
6. Electric fan (supply - return)
7. Internal exchanger water inlet (GAS F 1 1/4”)
8. Internal exchanger water outlet (GAS F 1 1/4”)
(M) Air supply
Size 81 91 101
Length mm 1731 1731 1731
Depth mm 724 724 724
Height mm 1137 1137 1137
W1 kg 65 65 65
W2 kg 35 35 35
W3 kg 85 85 85
W4 kg 55 55 55
Operating weight kg 240 240 240
Shipping weight kg 250 250 250
The presence of optional accessories may result in a substantial variation of the weights shown in the table.
DABQ981 REV00
24/11/2014


Table of Contents

Related product manuals