EasyManua.ls Logo

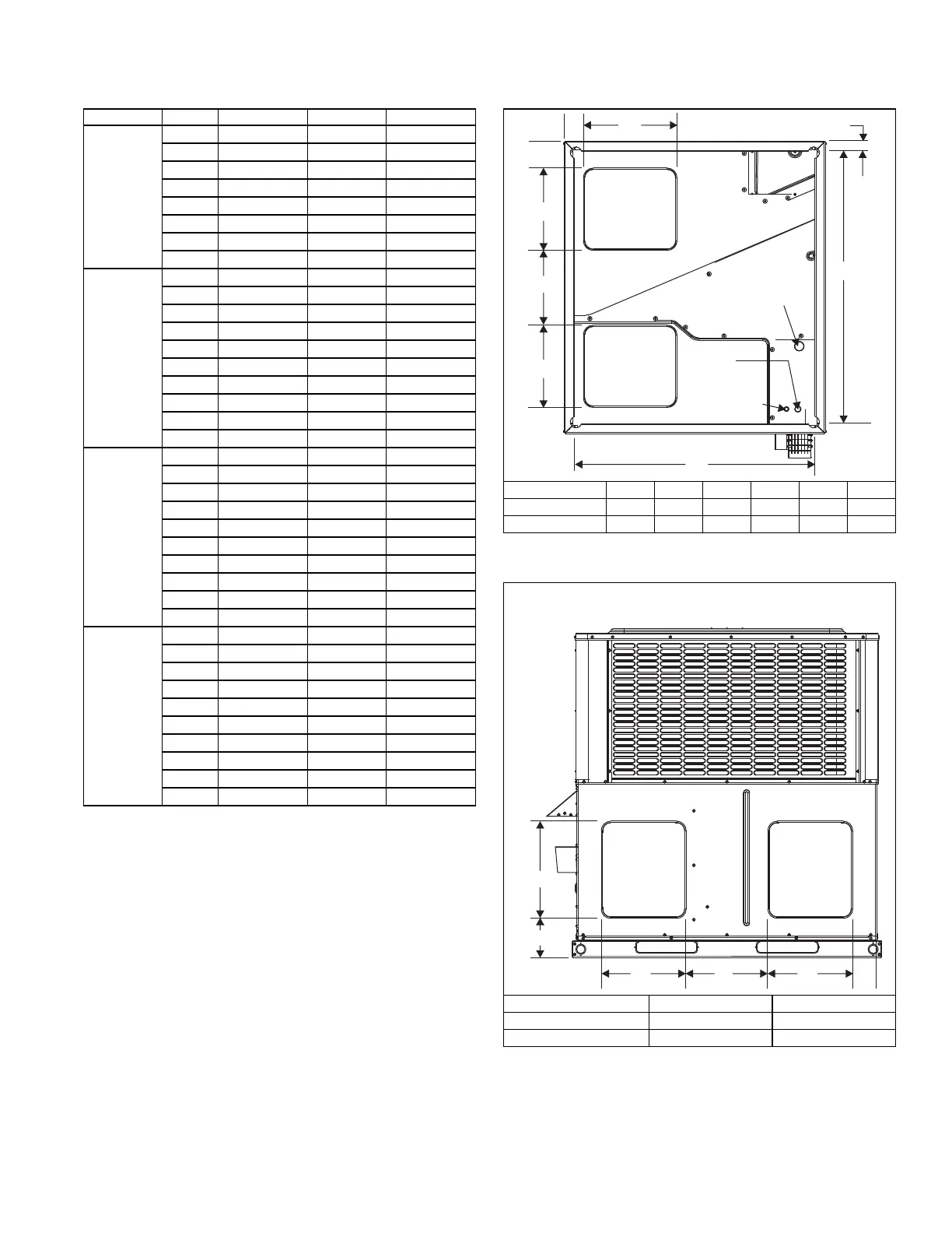
Coleman PCG4A36 - Additional Static Resistance; BOTTOM DUCT DIMENSIONS (Inches); REAR DUCT DIMENSIONS (Inches)

Coleman PCG4A36
18 pages
Print Icon
To Next Page IconTo Next Page
To Next Page IconTo Next Page
To Previous Page IconTo Previous Page
To Previous Page IconTo Previous Page
Loading...
5564041-CTG-A-1018
Johnson Controls Unitary Products 15
ADDITIONAL STATIC RESISTANCE
Size (Tons) CFM Wet Indoor Coil Economizer
1
1. The pressure drop through the economizer is greater for 100% outdoor air
than for 100% return air. If the resistance of the return air duct is less than
0.25 IWG, the unit will deliver less CFM during full economizer operation.
Filter pressure drop based on standard filter media tested at velocities not to
exceed 300 ft/min.
Filter/Frame Kit
A36 (3.0)
700 0.01 0.00 0.04
800 0.02 0.01 0.06
900 0.03 0.01 0.08
1000 0.04 0.01 0.10
1100 0.05 0.01 0.13
1200 0.06 0.02 0.16
1300 0.07 0.03 0.17
1400 0.08 0.04 0.18
A42 (3.5)
1100 0.02 0.02 0.04
1200 0.03 0.02 0.04
1300 0.04 0.02 0.05
1400 0.05 0.03 0.05
1500 0.06 0.04 0.06
1600 0.07 0.04 0.07
1700 0.07 0.04 0.08
1800 0.08 0.04 0.09
1900 0.09 0.05 0.10
2000 0.09 0.05 0.11
B48 (4.0)
1100 0.02 0.02 0.04
1200 0.03 0.02 0.04
1300 0.04 0.02 0.05
1400 0.05 0.03 0.05
1500 0.06 0.04 0.06
1600 0.07 0.04 0.07
1700 0.07 0.04 0.08
1800 0.08 0.04 0.09
1900 0.09 0.05 0.10
2000 0.09 0.05 0.11
B60 (5.0)
1100 0.02 0.02 0.04
1200 0.03 0.02 0.04
1300 0.04 0.02 0.05
1400 0.05 0.03 0.05
1500 0.06 0.04 0.06
1600 0.07 0.04 0.07
1700 0.07 0.04 0.08
1800 0.08 0.04 0.09
1900 0.09 0.05 0.10
2000 0.09 0.05 0.11
BOTTOM DUCT DIMENSIONS (Inches)
Model ABCDEF
36, 42 10 21.5 5 4.5 47.5 32
48, 60 14 13.5 5 3.5 47.5 42
REAR DUCT DIMENSIONS (Inches)
Model A B
36, 42 9.6 22
48, 60 13.6 14
$
'
´
&
$
%
$
6833/<
$,5'8&7
5(7851
$,5'8&7
)
(
´
9,(:/22.,1*83
$7%277202)81,7
+2/(´
ZLWK´JURPPHW
RSHQLQJIRUJDVSLSH
+2/(´
IRUKLJK
YROWDJH
+2/(´IRU
ORZYROWDJH

$
%
$

$

6833/<
$,5'8&7
5(7851
$,5'8&7
127(6HH)LJXUHWLWOHG³8QLW'LPHQVLRQV´IRUVLGHKROHVL]HVRI
HOHFWULFDODQGJDVOLQHV

Related product manuals