EasyManua.ls Logo

Comfee CVG30W9AST - Installation Preparation

Comfee CVG30W9AST
16 pages
Print Icon
To Next Page IconTo Next Page
To Next Page IconTo Next Page
To Previous Page IconTo Previous Page
To Previous Page IconTo Previous Page
Loading...
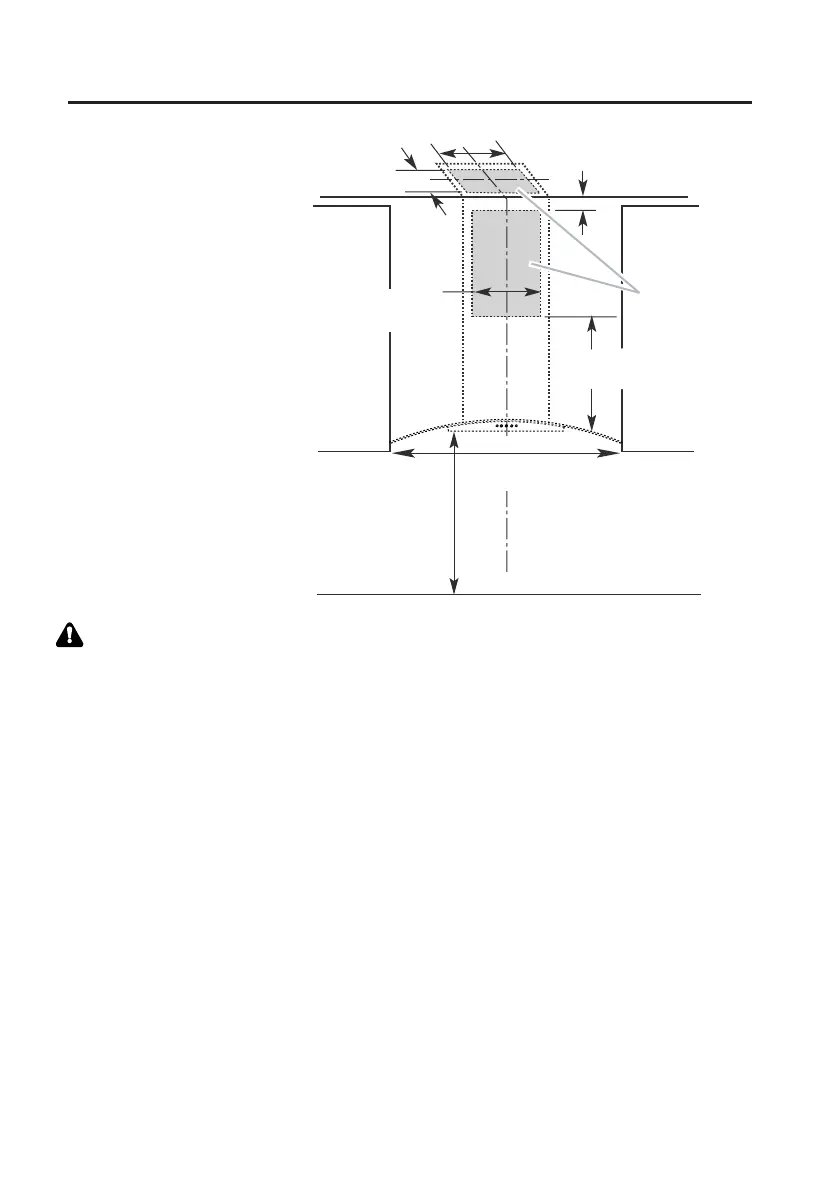
10.5"
9.49"
2" min.
Centerline
Side
cabinet
Side
cabinet
Vent and po
wer
supply cable
entry location
20" min.
30" or 36"
Cooking surface
10.5"
Vent system must terminate to the outdoors except for non-vented (recirculating)
installations.
Do not terminate the vent system in an attic or other enclosed area.
Do not use 4" laundry-type wall cap (plastic). Only use a metal exterior
exhaust vent.
Use metal vent only. Rigid metal vent is recommended for best performane.
All vent joints should be taped and sealed with 2"metal foil tape
The length of vent system and number of elbows should be kept to a minimum to
provide efficient performance.
For the Most Efficient and Quiet Operation:
Use no more than three 90° elbows.
Make sure there is a minimum of 24" of straight vent between the elbows if
more than 1 elbow is used.
Do not install 2 elbows together.
Use clamps to seal all joints in the vent system.
Use caulking to seal exterior wall or roof opening around the cap.
The size of the vent should be uniform.
CAUTION
Vents and electrical should
be installed in the gray
shaded areas to provide a
clean finished look
INSTALLATION PREPARATION
25.6''-29.53''
5

Related product manuals