EasyManua.ls Logo

Comflex Ultimate Series - OH & S and Correct Equipment Positioning

Default Icon
24 pages
Print Icon
To Next Page IconTo Next Page
To Next Page IconTo Next Page
To Previous Page IconTo Previous Page
To Previous Page IconTo Previous Page
Loading...
User Manual Careleda P/L M-03 WI-364rev0 Edited 26.02.2020 13 | P a g e
CAREFULLY READ AND UNDERSTAND INSTRUCTIONS BEFORE USING CHAIR
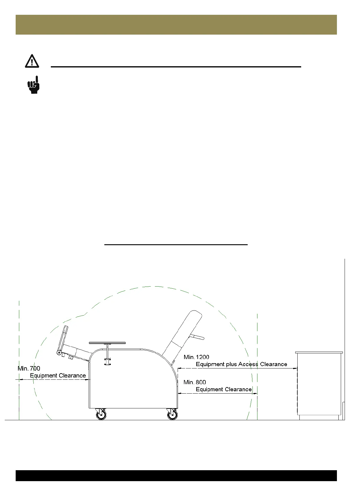
OH & S and Correct Equipment Positioning
To ensure the safe operation of this equipment, please allow the sufficient operating space around
the chair refer to the diagram below.
Sufficient space is required so that:
The functions of the chair can be used safely and without interference from surrounding
equipment.
Interference of surrounding equipment may cause serious damage to your equipment or safety
issues for the client or carer.
Failure to comply with the space requirements, in the event of an incident involving this equipment, may
void warranty.
NOTE: REMEMBER!! In any manoeuvre, the safety of the Client and Response is paramount. This is only a
guide and does not take the place or override your OH&S training or Client handling techniques. This must
be approved by those responsible persons in your organisation before use. E & OE
Side View Clearance Diagram
4. Client & Equipment Positioning
12.